注册 | 登录
今日更新:100
已为你搜索到以下结果 /没有搜到相关素材请加qq群704148082索取
多样精致恰好与时尚美发产生共鸣-CJ 工作室
2023-04-03 09:27:17
现代工业办公室
该项目是一个基于工作程序的教学空间,其中一部分被视为烙印其独特身份的表演舞台。活动是灵活的,并根据必要的程序不时重新组织,以丰富空间的多样性。该空间既简约又精致,恰好与美发的时尚前沿产生了共鸣。

办公室-金麦道设计素材网www.ycpic (2).jpg办公室-金麦道设计素材网www.ycpic (3).jpg

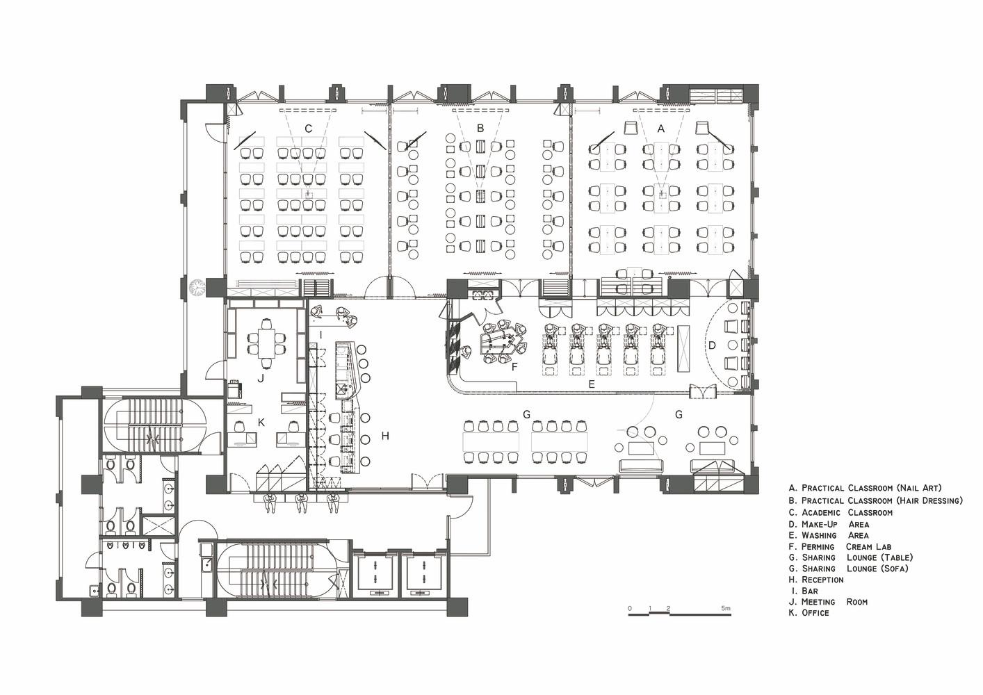
架构师提供的文本描述。 H 学院主要提供美发课程,包括理发、染色、烫发,此外还有化妆和美甲。该计划侧重于教学过程以及该计划的运作方式。教学包括学术和实践学习。更复杂的活动将在实践学习中进行,因此只有一个学术教室和两个实践教室。

办公室-金麦道设计素材网www.ycpic (4).jpg办公室-金麦道设计素材网www.ycpic (5).jpg办公室-金麦道设计素材网www.ycpic (6).jpg办公室-金麦道设计素材网www.ycpic (7).jpg办公室-金麦道设计素材网www.ycpic (8).jpg

美发程序通常分为两类,主要需要更长的时间,次要的只是暂时持续,例如剪发和洗发之间的差异。因此,小手术的空间可以在两个实践教室之间共享,进而形成每个实践教室的循环。

办公室-金麦道设计素材网www.ycpic (9).jpg办公室-金麦道设计素材网www.ycpic (10).jpg

在这种专门的共享关系中,在这两个教室之间嵌入了一个包括洗涤和烫发的实验室盒子。最终,内部存在一个单独的实验室盒子,并成为“盒子中的盒子”作为一个分层空间。

办公室-金麦道设计素材网www.ycpic (11).jpg办公室-金麦道设计素材网www.ycpic (12).jpg办公室-金麦道设计素材网www.ycpic (13).jpg办公室-金麦道设计素材网www.ycpic (14).jpg

“盒中之盒”是与多种含义有关的主要概念。首先,从教育的角度来看,这是一所技能型学校,比坐着听更好。为了强调这一特点,水洗和染色程序被特意展示给公众,作为教育界面。其次,在品牌层面上,盒子空间以黑色金属和灰色玻璃为框架,营造出低调神秘的氛围。

办公室-金麦道设计素材网www.ycpic (15).jpg办公室-金麦道设计素材网www.ycpic (16).jpg办公室-金麦道设计素材网www.ycpic (17).jpg办公室-金麦道设计素材网www.ycpic (18).jpg办公室-金麦道设计素材网www.ycpic (19).jpg

在投射灯光的照耀下,美发几乎可以与别致的精品相提并论。第三,在空间层面上,为了更容易被感知为一个舞台,实验室盒子设计有升降地板和深灰色的钢丝网天花板,用于高度变化。由于隐私保护,帷幕将暂时放下,直到时机合适。通过这样做,它也是一个舞台的象征,就好像它正在改变一个场景一样。

办公室-金麦道设计素材网www.ycpic (20).jpg办公室-金麦道设计素材网www.ycpic (21).jpg办公室-金麦道设计素材网www.ycpic (22).jpg办公室-金麦道设计素材网www.ycpic (23).jpg办公室-金麦道设计素材网www.ycpic (24).jpg

登录查看全部
多样精致恰好与时尚美发产生共鸣-CJ 工作室
素材ID号1004复制ID号
184
  • 上传时间: 2023-04-03 09:27:17
  • 文件大小: 7.52M
  • 素材标签: 现代工业办公室
  • 高清原图下载
  • 收藏
  • 分享
  • 他上传的材料
    028-86628548
  • 关于我们 网站协议 关于我们 联系我们 加入我们 业务拓展
  • 常见问题 上传要求 下载问题 充值支付 提现收益 帮助中心
  • 免责声明 本网站内容由用户自由上传,如权利人发现存在误传其作品情形,请及时与本站客服联系
  • 友情链接
  • 关注我们

    了解更多