注册 | 登录
今日更新:100
已为你搜索到以下结果 /没有搜到相关素材请加qq群704148082索取
富有创造力的员工提供舒适的氛围-工业办公室
2023-04-03 14:16:01
简约工业办公室
这个美丽而智能的空间,“不像办公室项目外观”,旨在为富有创造力的员工提供舒适和正确的氛围,让他们可以找到灵感、和谐和新的惊人想法。

办公室-金麦道设计素材网www.ycpic (2).jpg办公室-金麦道设计素材网www.ycpic (3).jpg办公室-金麦道设计素材网www.ycpic (4).jpg办公室-金麦道设计素材网www.ycpic (5).jpg办公室-金麦道设计素材网www.ycpic (6).jpg

架构师提供的文本描述。 PETSHOP公司的IT部门办公室位于圣彼得堡的契卡洛夫斯基大道上,位于50世纪60至20年的苏联工业建筑中。超过4米高的山脊天花板和混凝土柱,顶层和俯瞰彼得格勒一侧的巨大窗户 - 这些都是现代动态公司创意部门的良好空间介绍。

办公室-金麦道设计素材网www.ycpic (7).jpg办公室-金麦道设计素材网www.ycpic (8).jpg办公室-金麦道设计素材网www.ycpic (9).jpg

包豪斯(德绍的高等学校和20世纪前三分之一的建筑方向)的美学已成为风格的基础和灵感的主要来源。简单简洁的形式,功利主义的方法和功能主义的思想曾经在建筑中掀起了一场革命。现在我们将这种美学转移到室内设计中,但仅限于其装饰部分。现代纽约联合办公空间和办公空间的室内风格也对这种室内组合产生了很大的影响。在那里,在纽约,曾经的工业空间的室内设计早已超过了“同一个阁楼”。

办公室-金麦道设计素材网www.ycpic (10).jpg办公室-金麦道设计素材网www.ycpic (11).jpg办公室-金麦道设计素材网www.ycpic (12).jpg办公室-金麦道设计素材网www.ycpic (13).jpg办公室-金麦道设计素材网www.ycpic (14).jpg

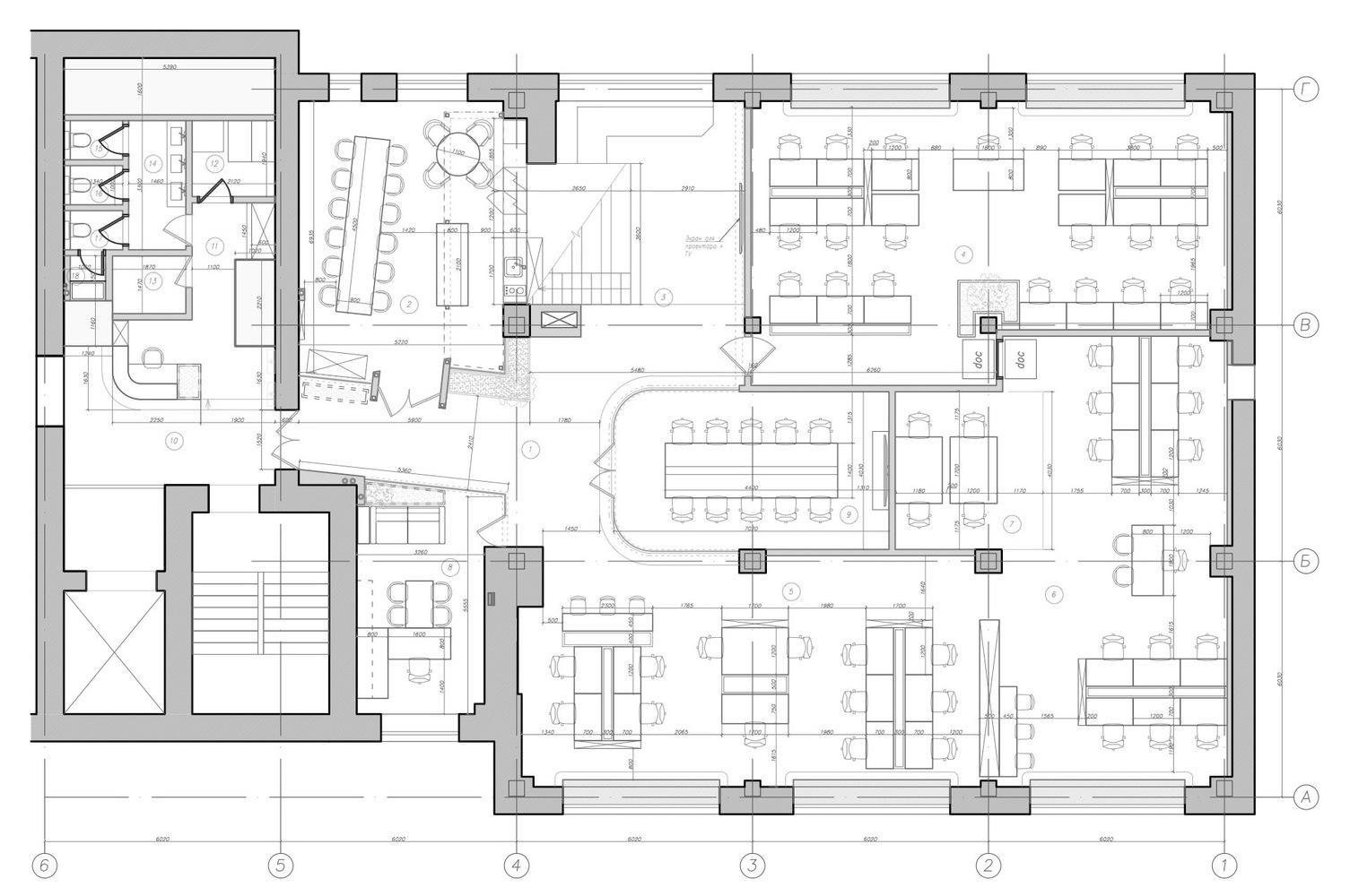
在办公空间规划中,最具代表性的会议室已成为主要对象和重点,接收简洁的圆形形式和“心脏”的中心位置,将其他开放空间分为两个“翼” - 平面设计师区(可容纳20人)和IT专家区(可容纳30人)。这些是干净,宽敞的工作空间,没有多余的物体:只有秩序,自由和许多活植物。植物,略带南方的动机 - 这个内饰的重要组成部分。植物支持室内略带灰尘的调色板,就像一张老照片一样。

办公室-金麦道设计素材网www.ycpic (15).jpg办公室-金麦道设计素材网www.ycpic (16).jpg办公室-金麦道设计素材网www.ycpic (17).jpg办公室-金麦道设计素材网www.ycpic (18).jpg办公室-金麦道设计素材网www.ycpic (19).jpg

第二个“关键”对象是圆形剧场,位于会议室附近。这是一个通用的演讲厅,适合短期会议,空闲时间,活动等。它是“重心”,是所有人的力量和聚集的地方。这个地方是为了企业精神。它的梯子(带客人座位)向上传导到夹层——第二层,可以在 PS 中工作、休息、玩耍......

办公室-金麦道设计素材网www.ycpic (20).jpg办公室-金麦道设计素材网www.ycpic (21).jpg办公室-金麦道设计素材网www.ycpic (22).jpg

夹层下方有一个厨房和一个供员工使用的午餐区,配有一张大单人桌和一个烹饪区:在这里可以与同事共进晚餐或举办自助餐招待会。浴室支持一个略显明显的南美阳光和丛林主题:墙壁的赤土色、枝形吊灯扇和带有 luk thung 和 bossa nova 的播放列表。

办公室-金麦道设计素材网www.ycpic (26).jpg办公室-金麦道设计素材网www.ycpic (27).jpg办公室-金麦道设计素材网www.ycpic (28).jpg办公室-金麦道设计素材网www.ycpic (29).jpg办公室-金麦道设计素材网www.ycpic (30).jpg

登录查看全部
富有创造力的员工提供舒适的氛围-工业办公室
素材ID号1013复制ID号
176
  • 上传时间: 2023-04-03 14:16:01
  • 文件大小: 6.81M
  • 素材标签: 简约工业办公室
  • 高清原图下载
  • 收藏
  • 分享
  • 他上传的材料
    028-86628548
  • 关于我们 网站协议 关于我们 联系我们 加入我们 业务拓展
  • 常见问题 上传要求 下载问题 充值支付 提现收益 帮助中心
  • 免责声明 本网站内容由用户自由上传,如权利人发现存在误传其作品情形,请及时与本站客服联系
  • 友情链接
  • 关注我们

    了解更多