注册 | 登录
今日更新:100
已为你搜索到以下结果 /没有搜到相关素材请加qq群704148082索取
轻盈面积反射给予空间柔和光线-moc办公室
2023-04-03 14:55:22
简约开放办公室
开放办公区是工作人员集中办公的场地,办公桌与天花造型对应,天花造型截面逐渐收窄而成轻盈的体态,它同时还是灯带的反光板,大面积的漫反射给予整个空间柔和的光线,以避免工作人员在长时间直射灯光下工作所引起的眼睛疲劳。

办公室-金麦道设计素材网www.ycpic (2).jpg

穿越的概念,是人使用空间的行为,是空间与时间始末的线性关系,是通向未来的动作。在面对现状狭长毛坯空间时,要设计出有别于传统隔间式办公室的想法便油然而生——这个空间应该有着强烈的指向性,单纯的线条构成收缩为一个远方的灭点,穿越其中,它带给使用者一段穿越的时空,一种未来感,而不只是一个办公工位。

办公室-金麦道设计素材网www.ycpic (3).jpg办公室-金麦道设计素材网www.ycpic (4).jpg办公室-金麦道设计素材网www.ycpic (5).jpg

这是一条通向未来的廊道——云计算、物联网、大数据、人工智能,这些与UnitedDATA这个企业紧密联系的关键词,将给下一个世代带来巨大变化。作为中国三大网络服务基站运营商之一,UnitedDATA所支撑的未来图景精彩而迷人。这个办公空间毋宁说是其作为华中片区武汉基站的配套办公室,还不如说是一种对未来将来的宣示。

办公室-金麦道设计素材网www.ycpic (6).jpg办公室-金麦道设计素材网www.ycpic (7).jpg办公室-金麦道设计素材网www.ycpic (8).jpg办公室-金麦道设计素材网www.ycpic (9).jpg办公室-金麦道设计素材网www.ycpic (10).jpg

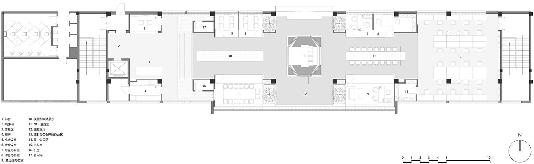
“未来之廊”的概念通过两条垂直相交的轴线空间诠释——入口门厅、前台接待区、休闲吧台区、NOC监控展示区、开放办公区、私密办公区,主轴上的空间私密性渐次提高,兼具展示、活动、办公多重功能。NOC作为“内外”的分界,联系着通向户外景观平台与员工休息区的副轴线空间。

办公室-金麦道设计素材网www.ycpic (11).jpg办公室-金麦道设计素材网www.ycpic (12).jpg办公室-金麦道设计素材网www.ycpic (13).jpg办公室-金麦道设计素材网www.ycpic (14).jpg办公室-金麦道设计素材网www.ycpic (15).jpg办公室-金麦道设计素材网www.ycpic (16).jpg办公室-金麦道设计素材网www.ycpic (17).jpg

NOC监控展示区作为轴线的交汇点,也是整个空间重要的展示节点。通过雷达状排列的16块显示屏,监控人员将可实时查看紧邻的上万平方米服务基站中的各种信息。同时,这如外形来物的形体被包裹在透明玻璃盒之中,作为重要的客户展示展示窗口。

办公室-金麦道设计素材网www.ycpic (18).jpg办公室-金麦道设计素材网www.ycpic (19).jpg办公室-金麦道设计素材网www.ycpic (20).jpg

办公室-金麦道设计素材网www.ycpic (21).jpg办公室-金麦道设计素材网www.ycpic (22).jpg办公室-金麦道设计素材网www.ycpic (23).jpg办公室-金麦道设计素材网www.ycpic (24).jpg

登录查看全部
轻盈面积反射给予空间柔和光线-moc办公室
素材ID号1016复制ID号
157
  • 上传时间: 2023-04-03 14:55:22
  • 文件大小: 6.86M
  • 素材标签: 简约开放办公室
  • 高清原图下载
  • 收藏
  • 分享
  • 他上传的材料
    028-86628548
  • 关于我们 网站协议 关于我们 联系我们 加入我们 业务拓展
  • 常见问题 上传要求 下载问题 充值支付 提现收益 帮助中心
  • 免责声明 本网站内容由用户自由上传,如权利人发现存在误传其作品情形,请及时与本站客服联系
  • 友情链接
  • 关注我们

    了解更多