注册 | 登录
今日更新:100
已为你搜索到以下结果 /没有搜到相关素材请加qq群704148082索取
开放共享及空间功能的可变丰富-简约办公室
2023-04-03 15:23:52
简约开放办公室
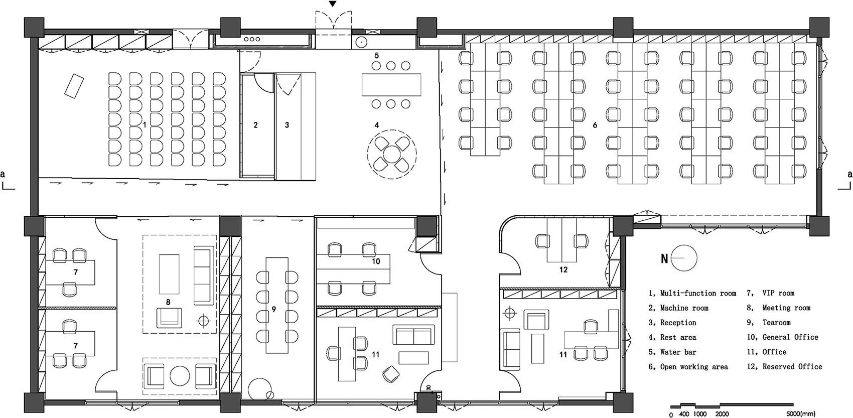
通常来讲,金融公司对空间的私密性非常看重。如何在保有足够私密性的同时兼顾空间的开放与共享,以及空间功能的可变与丰富,是此次百分金融办公室项目设计的重点。

办公室-金麦道设计素材网www.ycpic (6).jpg

首先,将空间依据功能,从相对私密的会客区,到开放的工作区域依次排开。四堵可推拉丝网印刷玻璃墙,实现了空间在开放与私密之间的按需转换。当推拉墙体半开状态,玻璃墙被赋予屏风属性,位置及数量可按需变化,形成丰富的空间状态;墙体完全关闭,空间被分割成数个独立的私密小型空间;推拉墙体完全打开时,大小空间相互嵌套、融合,形成自由流动的空间。

办公室-金麦道设计素材网www.ycpic (4).gif办公室-金麦道设计素材网www.ycpic (9).jpg办公室-金麦道设计素材网www.ycpic (10).jpg办公室-金麦道设计素材网www.ycpic (2).jpg

设置成方盒子形态的前台,既保留了迎客接待的属性,也强化了作为办公工位的安全感和亲切感。从多功能室延伸至水吧台,再至开放空间的前后贯穿的壁柜,打造深远且开放的空间状态。

办公室-金麦道设计素材网www.ycpic (2).gif办公室-金麦道设计素材网www.ycpic (3).gif办公室-金麦道设计素材网www.ycpic (3).jpg办公室-金麦道设计素材网www.ycpic (4).jpg办公室-金麦道设计素材网www.ycpic (5).jpg

高管与员工混坐的开放办公区,呈现安静且自由的形态。集移动办公、小型会议、项目路演、节日派对等多功能的多功能室,结合推拉墙的开启,可与洽谈区融为一体,打开更多可能。

办公室-金麦道设计素材网www.ycpic (7).jpg办公室-金麦道设计素材网www.ycpic (8).jpg办公室-金麦道设计素材网www.ycpic (11).jpg办公室-金麦道设计素材网www.ycpic (12).jpg办公室-金麦道设计素材网www.ycpic (13).jpg办公室-金麦道设计素材网www.ycpic (14).jpg办公室-金麦道设计素材网www.ycpic (15).jpg

登录查看全部
开放共享及空间功能的可变丰富-简约办公室
素材ID号1018复制ID号
152
  • 上传时间: 2023-04-03 15:23:52
  • 文件大小: 7.48M
  • 素材标签: 简约开放办公室
  • 高清原图下载
  • 收藏
  • 分享
  • 他上传的材料
    028-86628548
  • 关于我们 网站协议 关于我们 联系我们 加入我们 业务拓展
  • 常见问题 上传要求 下载问题 充值支付 提现收益 帮助中心
  • 免责声明 本网站内容由用户自由上传,如权利人发现存在误传其作品情形,请及时与本站客服联系
  • 友情链接
  • 关注我们

    了解更多