注册 | 登录
今日更新:100
已为你搜索到以下结果 /没有搜到相关素材请加qq群704148082索取
机动性是互联网公司的一个特点-简约办公室
2023-04-03 16:19:30
简约工业办公室
空间的主要特征是连续的铁管,它同样是办公室的入口处的扶手、房间中间的座位和桌子的结构,以及在办公室的后侧的锻炼区域。Onion把现有的水和电管道作为办公室天花板的装饰品,将所有的旧水管和新水管喷涂成白色。在Inteltion办公室,用于运动的物品还包括球形的橱柜手柄。

办公室-金麦道设计素材网www.ycpic (2).jpg办公室-金麦道设计素材网www.ycpic (3).jpg办公室-金麦道设计素材网www.ycpic (4).jpg

IT咨询公司想要改造办公室目的是为了与客户组织会议,面试公司的新员工,最重要的是,为社交活动提供空间。就设计而言,办公室综合症是Onion的关心的问题,用同样的身体姿势对着电脑或拿着笔工作几个小时都是不健康的。Onion的建议是为员工提供良好健康的设计。

办公室-金麦道设计素材网www.ycpic (5).jpg办公室-金麦道设计素材网www.ycpic (6).jpg

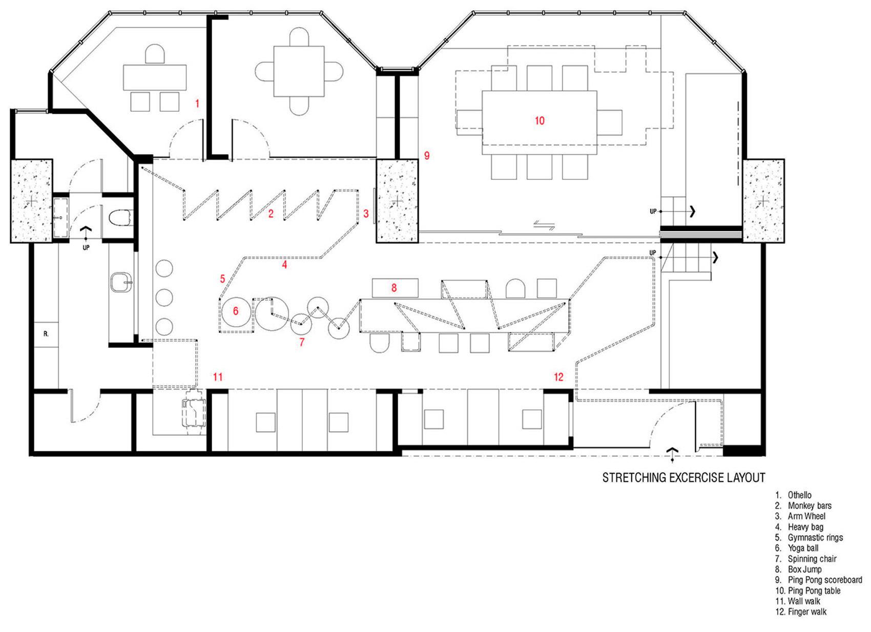
通过在曼谷的公共公园观察伸展运动,Onion开始了这个项目。老年人的伸展运动模式比特定的运动设备更可取,该装置应该简单,易于构建以及更有趣。  伸展运动装置的布置是 Inteltion 办公室的设计,这些装置按区域来布置,从容易到困难的练习,被命名为“手指行走”,“手臂轮”,“旋转椅子”和最困难的“猴棒”。

办公室-金麦道设计素材网www.ycpic (7).jpg办公室-金麦道设计素材网www.ycpic (8).jpg办公室-金麦道设计素材网www.ycpic (9).jpg

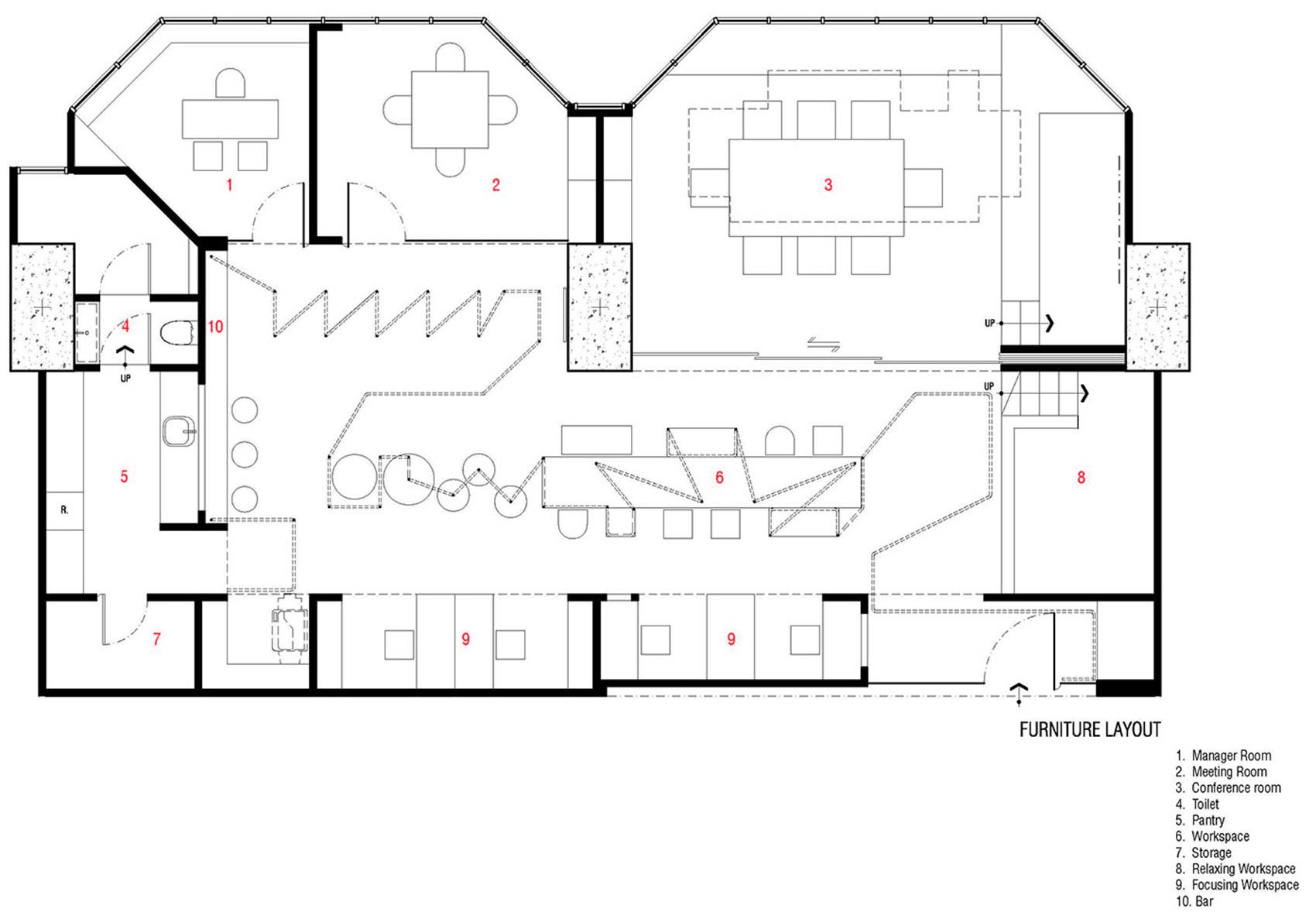
Inteltion Office是为国际通信咨询公司设计的170㎡的办公室改造项目。公司有60名员工,通常在客户的办公室工作,以维护计算机系统。当他们在等待新客户或新项目时,他们会出现在Inteltion的办公室,也就是说,没有必要为每个员工设计一个办公桌。每个员工都用笔记本电脑工作,机动性是互联网公司的一个特点。


办公室-金麦道设计素材网www.ycpic (10).jpg办公室-金麦道设计素材网www.ycpic (11).jpg

空间的主要特征是连续的铁管,它同样是办公室的入口处的扶手、房间中间的座位和桌子的结构,以及在办公室的后侧的锻炼区域。Onion把现有的水和电管道作为办公室天花板的装饰品,将所有的旧水管和新水管喷涂成白色。在Inteltion办公室,用于运动的物品还包括球形的橱柜手柄。为了身体的拉伸,它们的位置比正常的要高一些。

办公室-金麦道设计素材网www.ycpic (12).jpg办公室-金麦道设计素材网www.ycpic (13).jpg
会议桌可以转换成乒乓球桌,上面是乒乓球容器灯。旁边是一堵有乒乓球的墙,玩家在上面可以计算分数。文件柜是可移动的,当疲惫的时候,员工可以在它可上升的全是枕头的平台上小睡一下。奥赛罗游戏是办公室经理的放松方式,Onion放大了奥赛罗磁铁,把它们放在经理房间的铁墙上。
办公室-金麦道设计素材网www.ycpic (14).jpg办公室-金麦道设计素材网www.ycpic (15).jpg办公室-金麦道设计素材网www.ycpic (16).jpg

登录查看全部
机动性是互联网公司的一个特点-简约办公室
素材ID号1022复制ID号
166
  • 上传时间: 2023-04-03 16:19:30
  • 文件大小: 4.07M
  • 素材标签: 简约工业办公室
  • 高清原图下载
  • 收藏
  • 分享
  • 他上传的材料
    028-86628548
  • 关于我们 网站协议 关于我们 联系我们 加入我们 业务拓展
  • 常见问题 上传要求 下载问题 充值支付 提现收益 帮助中心
  • 免责声明 本网站内容由用户自由上传,如权利人发现存在误传其作品情形,请及时与本站客服联系
  • 友情链接
  • 关注我们

    了解更多