注册 | 登录
今日更新:100
已为你搜索到以下结果 /没有搜到相关素材请加qq群704148082索取
强烈塑造空间大气壮观直接感受-玻璃屋办公室
2023-04-04 09:29:30
现代建筑开放办公室
直到现在业主强烈的希望重新塑造该大楼,通过在其前面建造一个壮观的建筑,新形象和功能上支持该大楼。

场地:Sindhorn大楼建于1980年,这是一个80000多平方米的办公大楼,位于曼谷最美丽的道路之一,称为无线路,改路已经扩展好几次了。直到现在业主强烈的希望重新塑造该大楼,通过在其前面建造一个壮观的建筑,新形象和功能上支持该大楼。

办公室-金麦道设计素材网www.ycpic (2).jpg办公室-金麦道设计素材网www.ycpic (3).jpg办公室-金麦道设计素材网www.ycpic (4).jpg办公室-金麦道设计素材网www.ycpic (5).jpg办公室-金麦道设计素材网www.ycpic (6).jpg

办公室-金麦道设计素材网www.ycpic (7).jpg
办公室-金麦道设计素材网www.ycpic (8).jpg办公室-金麦道设计素材网www.ycpic (9).jpg办公室-金麦道设计素材网www.ycpic (10).jpg

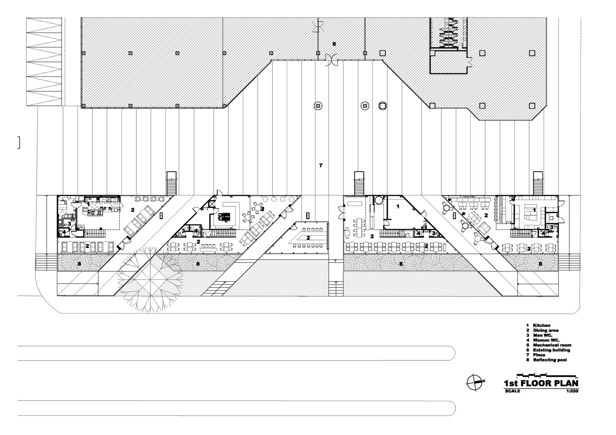
设计规划:这个被称为“Sindhorn玻璃屋”的新建筑的主要规划是4个带有阁楼及小雪茄吧的精品餐馆。还有就是在场地上有一棵大树需要保护。

办公室-金麦道设计素材网www.ycpic (11).jpg办公室-金麦道设计素材网www.ycpic (12).jpg办公室-金麦道设计素材网www.ycpic (13).jpg

分隔:所有美食餐厅都会将室内外空间分隔开来以创造更好的就餐氛围。此外,他们还会把户外餐饮广场组合在一起。

办公室-金麦道设计素材网www.ycpic (14).jpg办公室-金麦道设计素材网www.ycpic (15).jpg办公室-金麦道设计素材网www.ycpic (16).jpg办公室-金麦道设计素材网www.ycpic (17).jpg办公室-金麦道设计素材网www.ycpic (18).jpg办公室-金麦道设计素材网www.ycpic (19).jpg

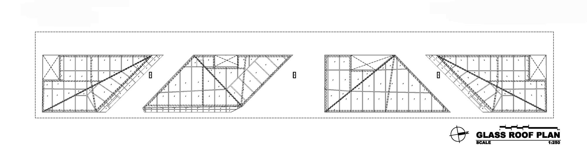
结构:这里采用了特殊的双跨结构,每个跨度长是25米,两端悬臂只要20米,这样就形成了一个90米长的屋顶。此外,这种主要结构设计为X形状,以将大树保留在场地上。

办公室-金麦道设计素材网www.ycpic (20).jpg办公室-金麦道设计素材网www.ycpic (21).jpg办公室-金麦道设计素材网www.ycpic (22).jpg办公室-金麦道设计素材网www.ycpic (23).jpg办公室-金麦道设计素材网www.ycpic (24).jpg办公室-金麦道设计素材网www.ycpic (25).jpg办公室-金麦道设计素材网www.ycpic (26).jpg办公室-金麦道设计素材网www.ycpic (27).jpg办公室-金麦道设计素材网www.ycpic (28).jpg办公室-金麦道设计素材网www.ycpic (29).jpg办公室-金麦道设计素材网www.ycpic (30).jpg办公室-金麦道设计素材网www.ycpic (31).jpg办公室-金麦道设计素材网www.ycpic (32).jpg办公室-金麦道设计素材网www.ycpic (33).jpg办公室-金麦道设计素材网www.ycpic (34).jpg办公室-金麦道设计素材网www.ycpic (35).jpg办公室-金麦道设计素材网www.ycpic (36).jpg办公室-金麦道设计素材网www.ycpic (37).jpg办公室-金麦道设计素材网www.ycpic (38).jpg办公室-金麦道设计素材网www.ycpic (39).jpg办公室-金麦道设计素材网www.ycpic (40).jpg办公室-金麦道设计素材网www.ycpic (41).jpg办公室-金麦道设计素材网www.ycpic (42).jpg办公室-金麦道设计素材网www.ycpic (43).jpg办公室-金麦道设计素材网www.ycpic (44).jpg办公室-金麦道设计素材网www.ycpic (45).jpg办公室-金麦道设计素材网www.ycpic (46).jpg办公室-金麦道设计素材网www.ycpic (47).jpg

登录查看全部
强烈塑造空间大气壮观直接感受-玻璃屋办公室
素材ID号1029复制ID号
190
  • 上传时间: 2023-04-04 09:29:30
  • 文件大小: 58.52M
  • 素材标签: 现代建筑开放办公室
  • 高清原图下载
  • 收藏
  • 分享
  • 他上传的材料
    028-86628548
  • 关于我们 网站协议 关于我们 联系我们 加入我们 业务拓展
  • 常见问题 上传要求 下载问题 充值支付 提现收益 帮助中心
  • 免责声明 本网站内容由用户自由上传,如权利人发现存在误传其作品情形,请及时与本站客服联系
  • 友情链接
  • 关注我们

    了解更多