注册 | 登录
今日更新:100
已为你搜索到以下结果 /没有搜到相关素材请加qq群704148082索取
黑色划分了空间白色一种精致美学-极简办公室
2023-04-06 10:27:57
现代极简办公室
来自建筑师。Skytech 办公室为生活在未来的人而建。室内的创新性反应了公司的商业态度,总是在渴望朝未来迈步。

办公室-金麦道设计素材网www.ycpic  (24).jpg办公室-金麦道设计素材网www.ycpic  (23).jpg办公室-金麦道设计素材网www.ycpic  (25).jpg

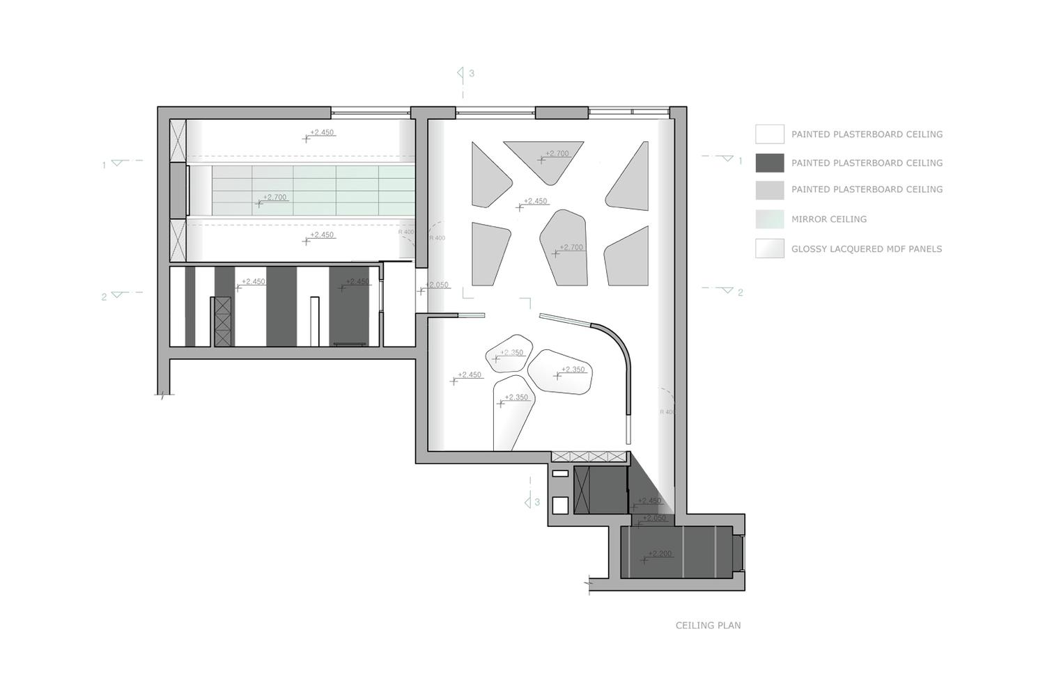
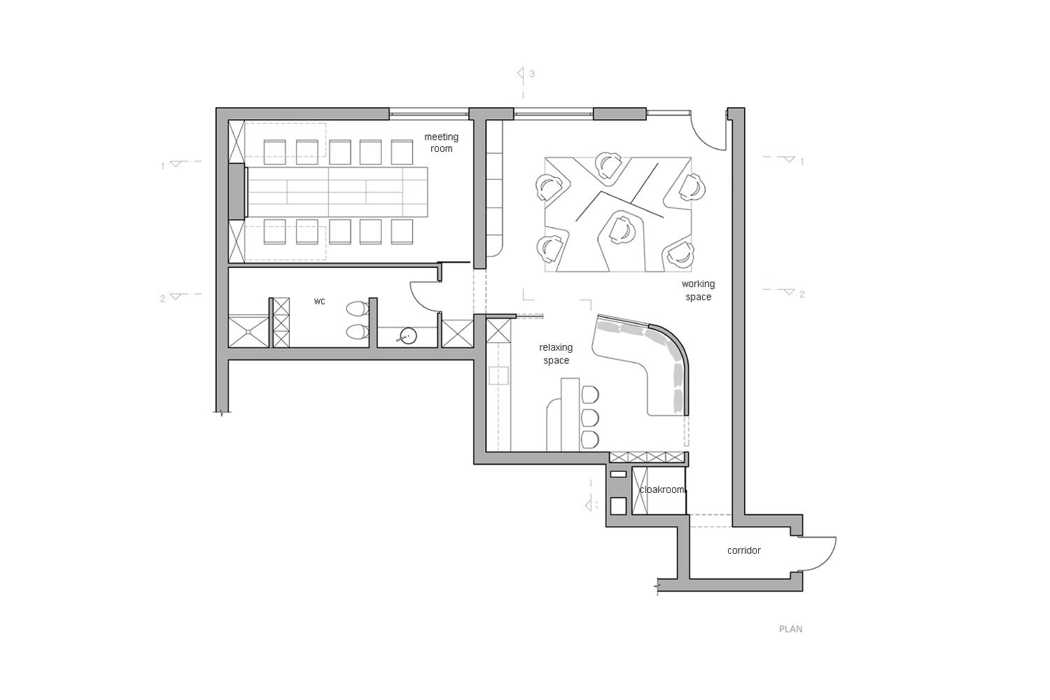
室内设计的主要目标是希望创造出功能性并且不同寻常的空间,成为一间起居办公室。办公室面积大约为95平方米,由走廊、休息区、六个工作区域、会议区(墙上还有床)以及厕所。整个区域由玻璃和石膏墙面划分,使得私人区域之间具有了更多的交流。

办公室-金麦道设计素材网www.ycpic  (27).jpg办公室-金麦道设计素材网www.ycpic  (26).jpg办公室-金麦道设计素材网www.ycpic  (6).jpg办公室-金麦道设计素材网www.ycpic  (7).jpg办公室-金麦道设计素材网www.ycpic  (8).jpg办公室-金麦道设计素材网www.ycpic  (9).jpg

室内的色彩和柔和的氛围受到了公司个人化氛围的影响。主体的白色使得空间中具有了一种精确的美学,黑色的区域强调了空间中的形状,绿色点亮了整个办公室空间。

办公室-金麦道设计素材网www.ycpic  (10).jpg办公室-金麦道设计素材网www.ycpic  (11).jpg办公室-金麦道设计素材网www.ycpic  (12).jpg办公室-金麦道设计素材网www.ycpic  (13).jpg
这座反传统的室内设计让办公室完全颠覆了传统的乏味的氛围。
办公室-金麦道设计素材网www.ycpic  (14).jpg办公室-金麦道设计素材网www.ycpic  (15).jpg办公室-金麦道设计素材网www.ycpic  (16).jpg办公室-金麦道设计素材网www.ycpic  (17).jpg办公室-金麦道设计素材网www.ycpic  (18).jpg

几何形状的划分、家具和装饰使得房间具有了一种未来感。

办公室-金麦道设计素材网www.ycpic  (19).jpg办公室-金麦道设计素材网www.ycpic  (20).jpg办公室-金麦道设计素材网www.ycpic  (21).jpg办公室-金麦道设计素材网www.ycpic  (22).jpg

办公室-金麦道设计素材网www.ycpic  (1).jpg办公室-金麦道设计素材网www.ycpic  (2).jpg办公室-金麦道设计素材网www.ycpic  (3).jpg办公室-金麦道设计素材网www.ycpic  (4).jpg办公室-金麦道设计素材网www.ycpic  (5).jpg

登录查看全部
黑色划分了空间白色一种精致美学-极简办公室
素材ID号1062复制ID号
267
  • 上传时间: 2023-04-06 10:27:57
  • 文件大小: 11.15M
  • 素材标签: 现代极简办公室
  • 高清原图下载
  • 收藏
  • 分享
  • 他上传的材料
    028-86628548
  • 关于我们 网站协议 关于我们 联系我们 加入我们 业务拓展
  • 常见问题 上传要求 下载问题 充值支付 提现收益 帮助中心
  • 免责声明 本网站内容由用户自由上传,如权利人发现存在误传其作品情形,请及时与本站客服联系
  • 友情链接
  • 关注我们

    了解更多