注册 | 登录
今日更新:100
已为你搜索到以下结果 /没有搜到相关素材请加qq群704148082索取
未来空间重新定义了私密与开放-现代办公室
2023-04-06 14:59:24
现代工业办公室
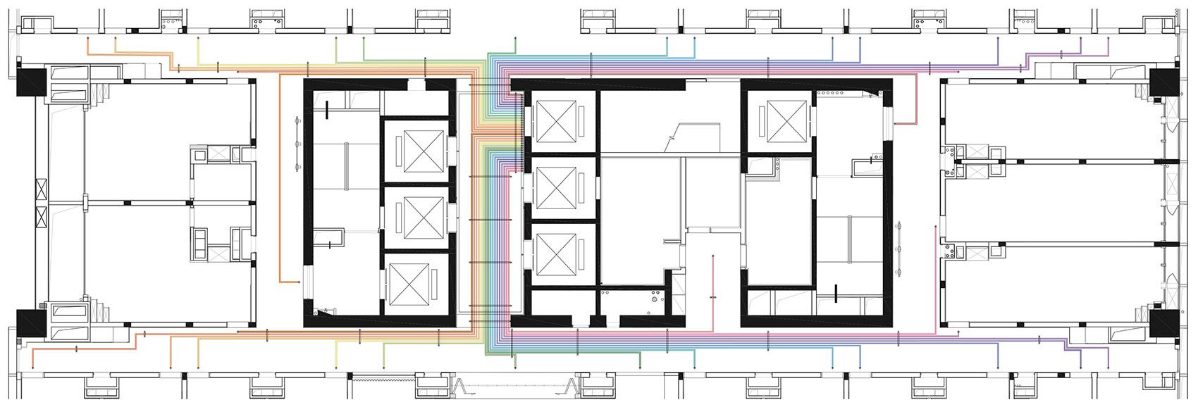
日趋成熟的高速网络环境及终端科技,在重新定义着传统意义上的“私密”与“开放”。“彩带”即为“无色”空间里的视觉点缀,也是带领“到访者”最快速的到达“目的地”的导视系统。

办公室-金麦道设计素材网www.ycpic  (6).jpg办公室-金麦道设计素材网www.ycpic  (7).jpg

建筑工作组“黑家设计”携手创意地产品牌“兆阳地产”倾力打造针对年轻人的全新立体社群-佛山兆阳O立方青年联合体。“创想空间”位于这座超高层建筑的顶层,也是青年联合体计划的重要组成部分。

办公室-金麦道设计素材网www.ycpic  (8).jpg办公室-金麦道设计素材网www.ycpic  (9).jpg办公室-金麦道设计素材网www.ycpic  (10).jpg办公室-金麦道设计素材网www.ycpic  (11).jpg

工作与生活,一个老生常谈的话题。生产手段的改变及效率的提高借助高速网络的介入,使我们“工作”与“生活”的界限变得越来越模糊。被“碎片化”的时间要求单一空间不仅要具备功能的灵活多变,甚至要求各种生活及工作场景同时存在于其中。

办公室-金麦道设计素材网www.ycpic  (12).jpg办公室-金麦道设计素材网www.ycpic  (13).jpg办公室-金麦道设计素材网www.ycpic  (14).jpg

办公室-金麦道设计素材网www.ycpic  (15).jpg办公室-金麦道设计素材网www.ycpic  (16).jpg

日趋成熟的高速网络环境及终端科技,在重新定义着传统意义上的“私密”与“开放”。物理上的“私密”及网络上的“开放”渐渐成为年轻人们的新常态,生活如此,工作更是。

办公室-金麦道设计素材网www.ycpic  (17).jpg办公室-金麦道设计素材网www.ycpic  (18).jpg办公室-金麦道设计素材网www.ycpic  (19).jpg

“效率”永远都是组织一个工作场景的核心,如何诠释“效率”则成为了营造各类工作场景的关键。“彩带”即为“无色”空间里的视觉点缀,也是带领“到访者”最快速的到达“目的地”的导视系统。

办公室-金麦道设计素材网www.ycpic  (20).jpg办公室-金麦道设计素材网www.ycpic  (21).jpg

不同的材料的“密度”在同一光环境下塑造出截然不同的空间氛围。

办公室-金麦道设计素材网www.ycpic  (22).jpg办公室-金麦道设计素材网www.ycpic  (23).jpg

办公室-金麦道设计素材网www.ycpic  (24).jpg办公室-金麦道设计素材网www.ycpic  (25).jpg办公室-金麦道设计素材网www.ycpic  (26).jpg

办公室-金麦道设计素材网www.ycpic  (27).jpg办公室-金麦道设计素材网www.ycpic  (28).jpg办公室-金麦道设计素材网www.ycpic  (29).jpg办公室-金麦道设计素材网www.ycpic  (30).jpg办公室-金麦道设计素材网www.ycpic  (31).jpg

登录查看全部
未来空间重新定义了私密与开放-现代办公室
素材ID号1073复制ID号
277
  • 上传时间: 2023-04-06 14:59:24
  • 文件大小: 8.12M
  • 素材标签: 现代工业办公室
  • 高清原图下载
  • 收藏
  • 分享
  • 他上传的材料
    028-86628548
  • 关于我们 网站协议 关于我们 联系我们 加入我们 业务拓展
  • 常见问题 上传要求 下载问题 充值支付 提现收益 帮助中心
  • 免责声明 本网站内容由用户自由上传,如权利人发现存在误传其作品情形,请及时与本站客服联系
  • 友情链接
  • 关注我们

    了解更多