注册 | 登录
今日更新:100
已为你搜索到以下结果 /没有搜到相关素材请加qq群704148082索取
探索人与自然-场馆
2023-10-06 10:13:51
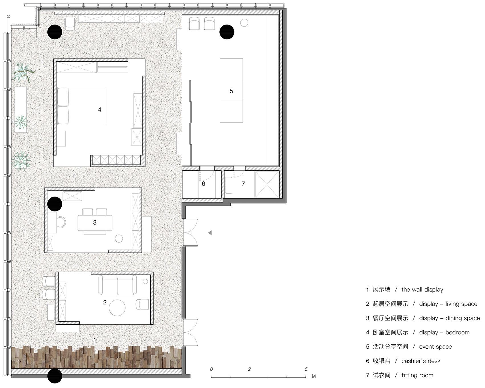
现代室内场馆
创造出与周围自然景观和谐共生的空间。

00.jpg

展览还探讨了建筑设计师在设计过程中对于人与人、人与环境的关注。青山周平的设计充满人文关怀,他考虑到建筑对于人们生活的影响,注重创造舒适、宜居的空间。他关注建筑与城市文化记忆的对话,通过设计来传承和展示历史与现代的交融。


0.jpg1.jpg2.jpg3.jpg4.jpg5.jpg6.jpg7.jpg8.jpg11.jpg

通过展览,人们可以更深入地了解到建筑设计背后所蕴含的精神,即建筑师对于人与自然、人与环境的关怀和尊重。展览呼吁人们在日常生活中关注建筑与自然的连接,以及人与人之间的和谐共处,从而实现人与自然的和谐共生。

12.jpg18.jpg19.jpg20.jpg25.jpg

登录查看全部
探索人与自然-场馆
素材ID号1130复制ID号
112
  • 上传时间: 2023-10-06 10:13:51
  • 文件大小: 10.27M
  • 素材标签: 现代室内场馆
  • 高清原图下载
  • 收藏
  • 分享
  • 他上传的材料
    028-86628548
  • 关于我们 网站协议 关于我们 联系我们 加入我们 业务拓展
  • 常见问题 上传要求 下载问题 充值支付 提现收益 帮助中心
  • 免责声明 本网站内容由用户自由上传,如权利人发现存在误传其作品情形,请及时与本站客服联系
  • 友情链接
  • 关注我们

    了解更多