注册 | 登录
今日更新:100
已为你搜索到以下结果 /没有搜到相关素材请加qq群704148082索取
酿造之旅啤酒-博物馆
2023-10-07 09:42:27
现代博物馆室内
造一只器皿,让历史一饮而尽。

1.jpg

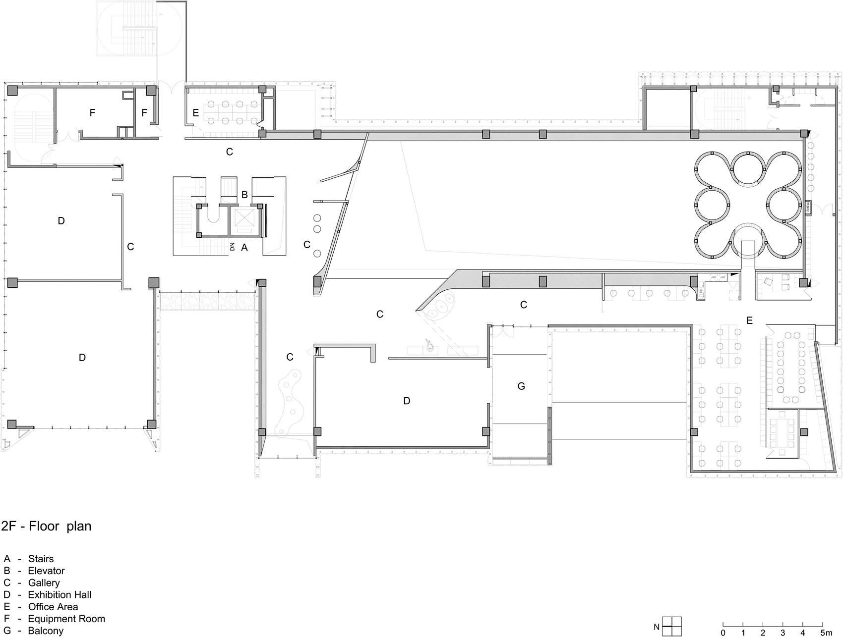
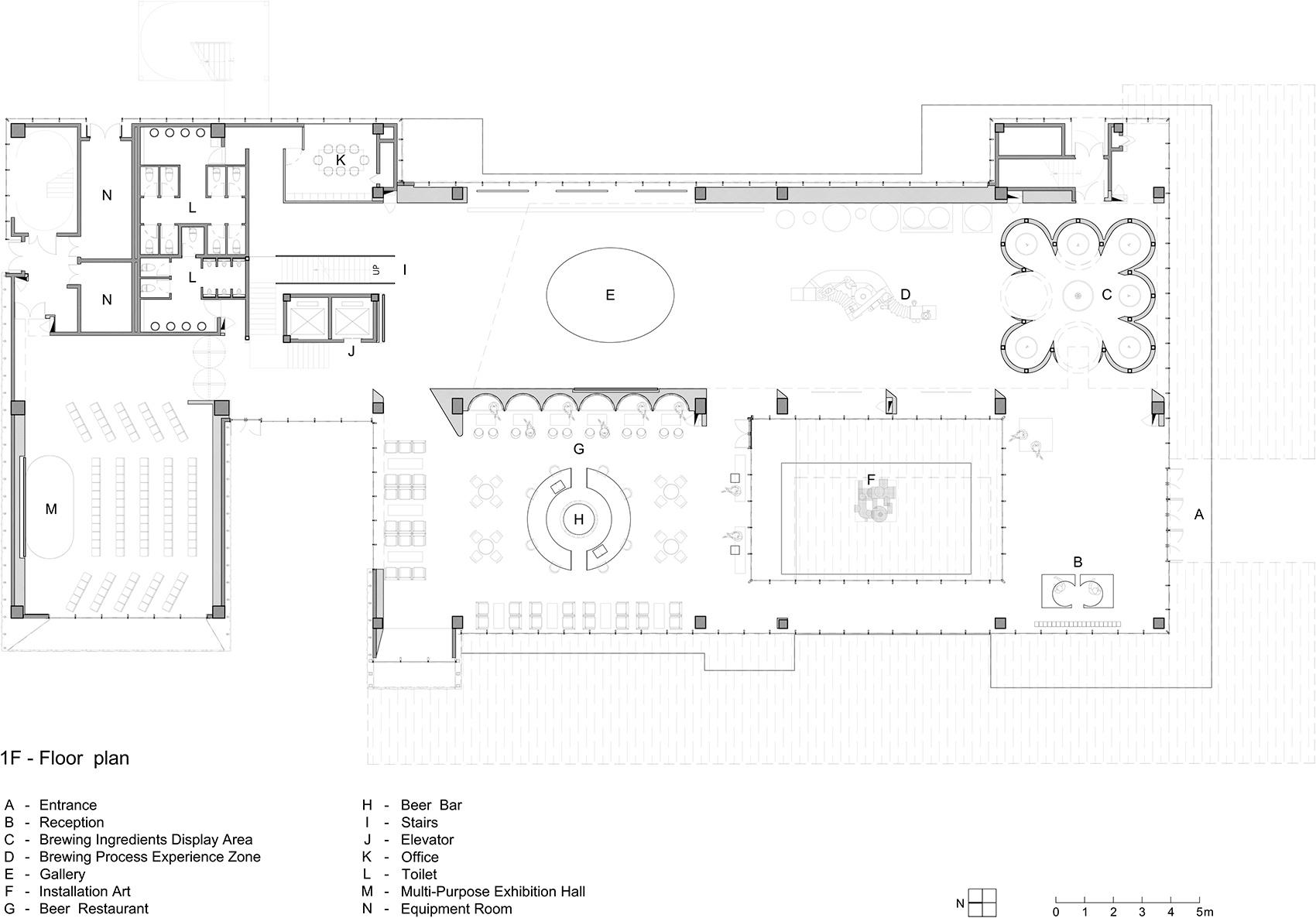
啤酒博物馆酿造之旅是一座现代化的啤酒博物馆,通过建筑设计将酿酒机械和啤酒饮用过程中的环节融入展示空间,创造出与传统博物馆不同的参观体验。

2.jpg3.jpg4.jpg4a.jpg4b.jpg5.jpg7.jpg7a.jpg8.jpg9.jpg10.jpg11.jpg
12.jpg13.jpg14.jpg15.jpg

设计灵感来自于啤酒酿造的过程和器具,通过突破线性展列的方式,让观者能够感受自身缩小如原料分子流动其中,从旁观转变为参与。

16.jpg19.jpg20.jpg21.jpg22.jpg23.jpg24.jpg25.jpg26.jpg27.jpg28.jpg29.jpg

建筑造型将压抑与释放相结合,强化观者在展览中的体验记忆。

30.jpg31.jpg32.jpg36 (33).jpg36 (34).jpg36 (35).jpg

登录查看全部
酿造之旅啤酒-博物馆
素材ID号1135复制ID号
162
  • 上传时间: 2023-10-07 09:42:27
  • 文件大小: 8.15M
  • 素材标签: 现代博物馆室内
  • 高清原图下载
  • 收藏
  • 分享
  • 他上传的材料
    028-86628548
  • 关于我们 网站协议 关于我们 联系我们 加入我们 业务拓展
  • 常见问题 上传要求 下载问题 充值支付 提现收益 帮助中心
  • 免责声明 本网站内容由用户自由上传,如权利人发现存在误传其作品情形,请及时与本站客服联系
  • 友情链接
  • 关注我们

    了解更多