注册 | 登录
今日更新:100
已为你搜索到以下结果 /没有搜到相关素材请加qq群704148082索取
晶锥化石馆-博物馆
2023-10-08 09:54:46
现代博物馆场馆
整个项目的材料低调朴素不失优雅。

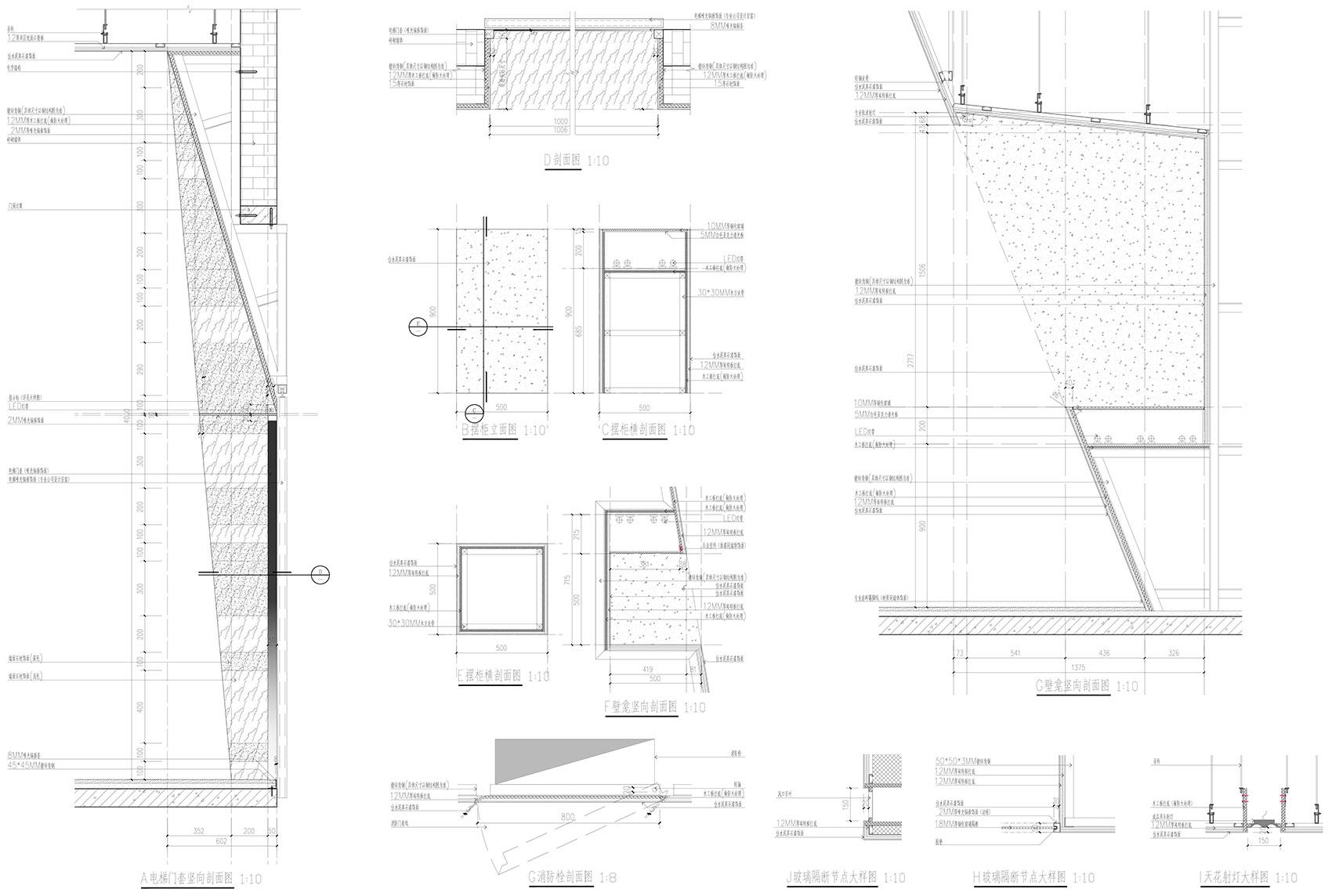
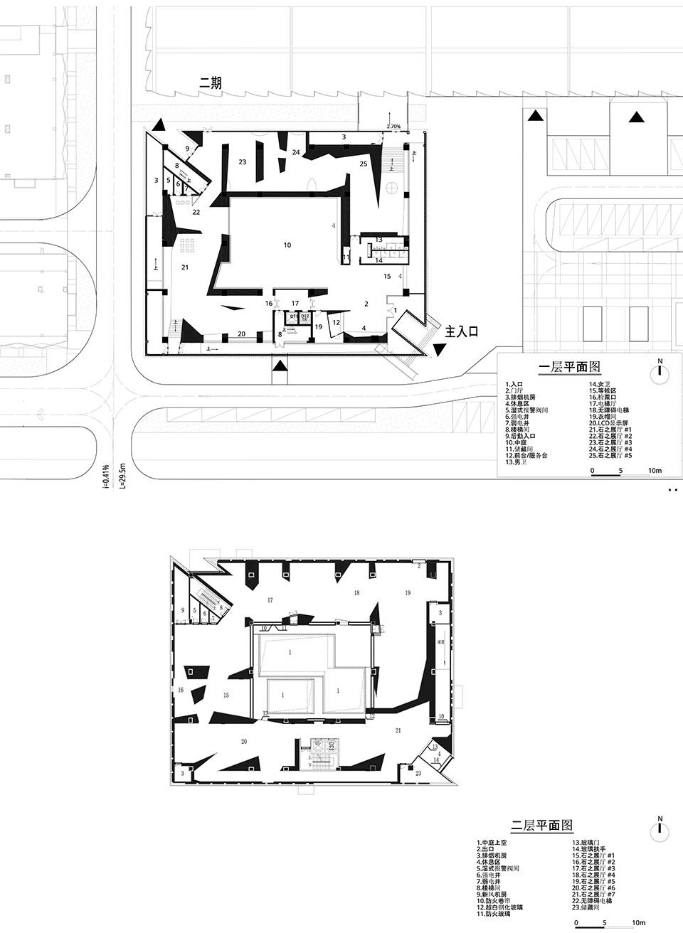
英良石材自然历史博物馆的业主希望在集团总部的办公楼里引入一个博物馆用于展示化石的历史和研究化石的自然科学。设计师通过将石材的原始形态——晶体结构引入设计中,利用三个相互穿插的晶体和横向的晶体,在中庭中形成一个个化石展厅,将光线、展览功能交织在一起。空间中没有多余的装饰,墙壁被重新创造,带来平静冷峻的洞穴般的气氛,同时承载了办公楼层的反光板功能,隔离了公共和私密两个分区。由于墙体使用了大量倾斜的表面构成,所以采用了三维坐标系的方法进行标注,确保每个线条的精度。整个项目的材料低调朴素,为的是凸显空间中的光源对空间形体的塑造,为这些来自远古的化石提供了合适的展览环境。
1.jpg2.jpg3.jpg4.jpg5.jpg6.jpg7.jpg8.jpg9.jpg10.jpg11.jpg12.jpg13.jpg14.jpg15.jpg16.jpg17.jpg18.jpg19.jpg20.jpg21.jpg22.jpg23.jpg24.jpg25.jpg26.jpg27.jpg28.jpg29.jpg30.jpg

登录查看全部
晶锥化石馆-博物馆
素材ID号1144复制ID号
208
  • 上传时间: 2023-10-08 09:54:46
  • 文件大小: 9.69M
  • 素材标签: 现代博物馆场馆
  • 高清原图下载
  • 收藏
  • 分享
  • 他上传的材料
    028-86628548
  • 关于我们 网站协议 关于我们 联系我们 加入我们 业务拓展
  • 常见问题 上传要求 下载问题 充值支付 提现收益 帮助中心
  • 免责声明 本网站内容由用户自由上传,如权利人发现存在误传其作品情形,请及时与本站客服联系
  • 友情链接
  • 关注我们

    了解更多