注册 | 登录
今日更新:100
已为你搜索到以下结果 /没有搜到相关素材请加qq群704148082索取
黑暗中的仪式-健身房
2023-11-06 17:02:59
室内健身房场馆
以“绝不妥协”和“火力燃烧”为代名词。

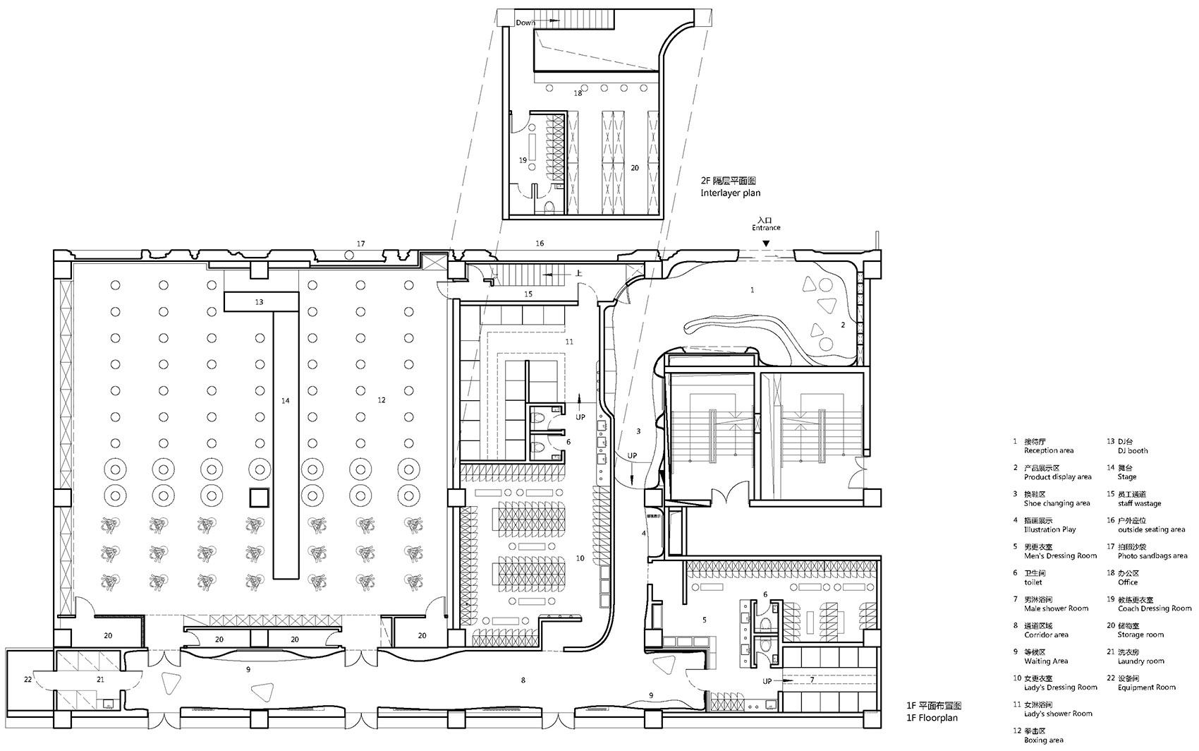
CROX闊合设计以凿开都市水泥丛林的厚墙为出发点,创造了一个充满仪式感的空间序列,包括异地洞穴、火红更衣间和盗梦操房。B-monster上海概念店外观像一个巨大的水泥块,上面凿开大小不一的裂口,不仅丰富了造型,还拉近了人与墙之间的距离。最大的破洞是大门,象征着探险的入口。


1.jpg1a.jpg2.jpg3.jpg3a.jpg

一旦进入店内,体验者仿佛置身于万年前的原始洞穴LASCAUX CAVE。店内收藏了纽约街头涂鸦艺术家Alexander Kaletski的作品,呼应着人类绘画文明的起源地,形成了摩登与原始的海派交融。在转弯处,阳光透过中庭的洞口照射进来,为体验者带来不同的感受。随着期待的增加,体验者走进红色的试衣间,兴奋感逐渐升温,空气中弥漫着神秘而躁动的氛围。

4.jpg5.jpg6.jpg7.jpg8.jpg9.jpg

登录查看全部
黑暗中的仪式-健身房
素材ID号1151复制ID号
173
  • 上传时间: 2023-11-06 17:02:59
  • 文件大小: 3.04M
  • 素材标签: 室内健身房场馆
  • 高清原图下载
  • 收藏
  • 分享
  • 他上传的材料
    028-86628548
  • 关于我们 网站协议 关于我们 联系我们 加入我们 业务拓展
  • 常见问题 上传要求 下载问题 充值支付 提现收益 帮助中心
  • 免责声明 本网站内容由用户自由上传,如权利人发现存在误传其作品情形,请及时与本站客服联系
  • 友情链接
  • 关注我们

    了解更多