注册 | 登录
今日更新:100
已为你搜索到以下结果 /没有搜到相关素材请加qq群704148082索取
跨越时空的咖啡之旅-咖啡馆
2023-11-15 11:16:26
室内咖啡馆场馆
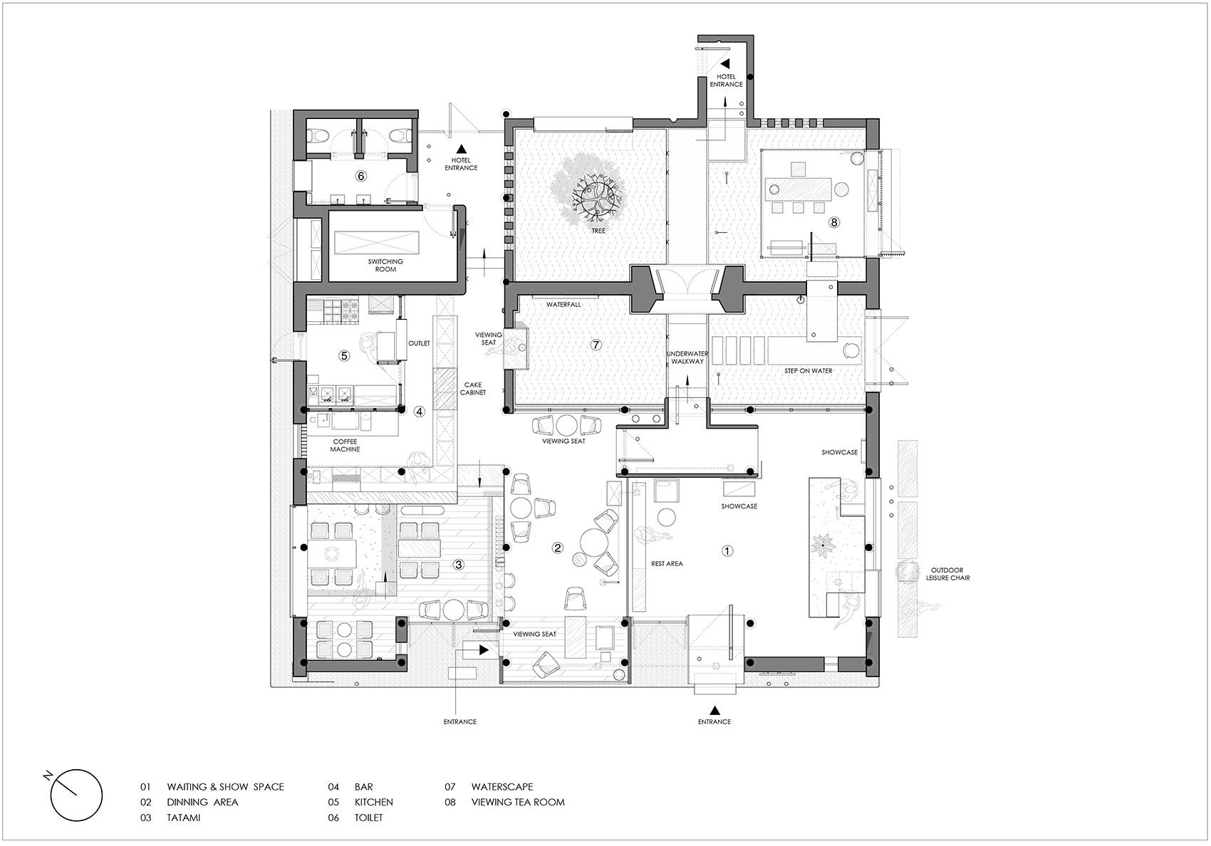
设计中兼顾整体风格一致和独立美学空间的多样性。

更新后的入口处采用细木格栅窗和原木落地玻璃窗,营造轻简温暖的氛围。

2.jpg3.jpg1.jpg

艺术展示区兼具接待、艺术沙龙和展厅功能,与咖啡区相互延展。


6.jpg7.jpg13.jpg14.jpg

半开放式的水吧方便咖啡师与客人交流,顶部空间重构展现独特的几何秩序美。

15.jpg16.jpg17.jpg

设计中融入了狭长的混凝土通道和下沉式江南庭院,营造出强烈的“穿越”感和雅致的氛围。

21.jpg22.jpg23.jpg24.jpg

整体设计展现了中西交响曲般的艺术与咖啡之旅。

25.jpg26.jpg27.jpg28.jpg29.jpg

登录查看全部
跨越时空的咖啡之旅-咖啡馆
素材ID号1156复制ID号
205
  • 上传时间: 2023-11-15 11:16:26
  • 文件大小: 8.09M
  • 素材标签: 室内咖啡馆场馆
  • 高清原图下载
  • 收藏
  • 分享
  • 他上传的材料
    028-86628548
  • 关于我们 网站协议 关于我们 联系我们 加入我们 业务拓展
  • 常见问题 上传要求 下载问题 充值支付 提现收益 帮助中心
  • 免责声明 本网站内容由用户自由上传,如权利人发现存在误传其作品情形,请及时与本站客服联系
  • 友情链接
  • 关注我们

    了解更多