¥充值
VIP
注册 |
登录
今日更新:100
建筑案例
景观案例
室内案例
大师作品
民宿专篇
无数据
NO.3
首页/全球案列/幽竹雅舍-民宿
已为你搜索到以下结果
/没有搜到相关素材请加qq群704148082索取
幽竹雅舍-民宿
2023-12-14 17:19:02
民宿
室内
建筑
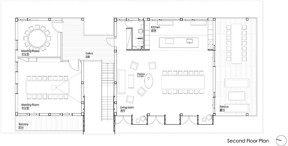
自然与建筑的对话。
采用现代建筑技术,结合传统建筑元素,打造具有独特魅力的建筑作品。
通过“盒子”的概念,将建筑空间划分为多个独立而又相互连接的区域。
通过平台和游泳池等元素,将建筑与自然环境相融合,创造出一个舒适、宜人的居住空间。
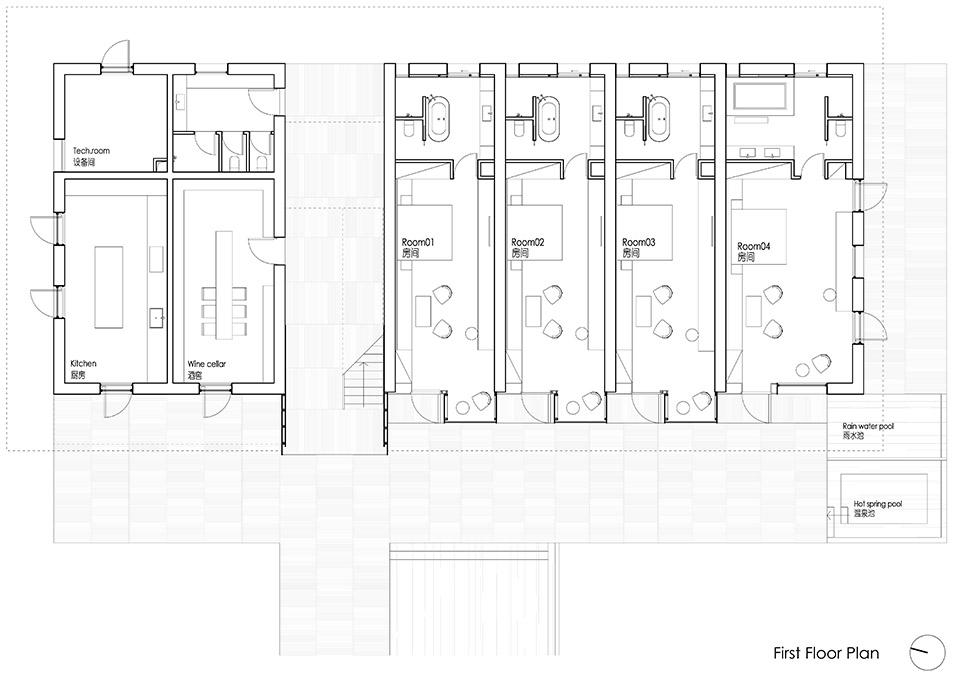
采用厚重的夯土建造底层,二层采用简洁轻盈的实木铺设,形成一种独特的建筑风格。
屋顶采用木椽与钢结构的组合结构,创造自由阔达的空间体验。
登录查看全部
上一篇:
时空回廊-民宿
下一篇:
荆竹新貌-民宿
幽竹雅舍-民宿
素材ID号1204
复制ID号
关注他
166
上传时间:
2023-12-14 17:19:02
文件大小:
9.42M
素材标签:
民宿
室内
建筑
高清原图下载
收藏
分享
他上传的材料
更多
浅谈景观设计神经中枢—平面图绘制策略
德国历史博物馆-贝律铭大师作品
茂名保利天寰售楼部-白色的纯粹空间
FUTURE KALE办公空间
苏州金地浅山风华售楼部
模型
建筑SU模型
景观SU模型
室内SU模型
其他SU模型
图库
建筑图库
景观图库
室内图库
文本
建筑文本
景观文本
室内文本
设计资源
CAD图纸
PS分层图
材质贴图
案例
建筑案例
景观案例
室内案例
大师作品
民宿专篇
设计
材料研发
设施研发
装置研发
雕塑设计
民宿研发
设计服务
028-86628548
关于我们
网站协议
关于我们
联系我们
加入我们
业务拓展
常见问题
上传要求
下载问题
充值支付
提现收益
帮助中心
免责声明
本网站内容由用户自由上传,如权利人发现存在误传其作品情形,请及时与本站客服联系
友情链接
关注我们
了解更多
成都金麦道园林景观设计咨询有限公司 COPYRIGHT @ 2022 ALL RIGHTS RESERVED
蜀ICP备2021020856号
技术支持:诺比信