注册 | 登录
今日更新:100
已为你搜索到以下结果 /没有搜到相关素材请加qq群704148082索取
北京小喜民宿十号院 原榀建筑事务所-酒店民宿
2024-01-10 19:11:26
小喜民宿原榀建筑事务所酒店民宿
【酒店民宿】北京小喜民宿十号院 原榀建筑事务所

小喜民宿位十号院于北京怀柔九渡河二道关,离黄花城水长城约六公里。二道关长城始建于南宋,是北京长城段的一处重要关隘,气势雄伟。古老的长城从村庄穿过,村落中多处可见烽火台和城墙遗址,别具特色。1.jpg

小喜民宿是由多个院子组成的系列民宿,分散于二道关的村落之中,其中十号院与西侧的九号院(亦由原榀建筑设计)、南侧的八号院形成一个小的民宿聚落。十号院的基地呈长方形,原为L型布置的两栋民居,早已破败凋敝。老房子为北方民居常见的砖木结构,至今百年历史。

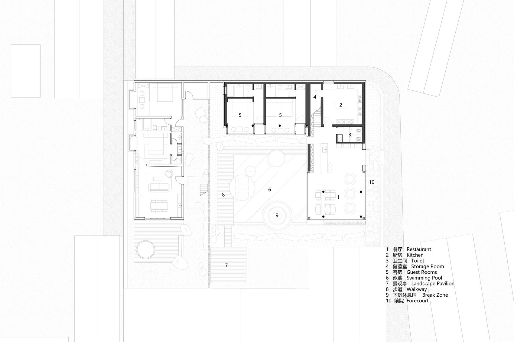
十号院的基地面积并不大,业主希望将其改造为公共餐厅和两间客房,公共餐厅为小喜民宿的所有客人使用,可容纳30人就餐。如何应对场地的限制,如何处理公共和私密空间二者的关系,成为我们优先考量的问题。

2.jpg5.jpg6.jpg7.jpg8.jpg9.jpg10.jpg


3.jpg4.jpg十号院在原有的宅基地范围内改造,东侧改造为餐厅,北侧改造为民宿,并将两个方向的房屋连接成一个整体。餐厅的东北角抬高为两层,作为多功能室使用,并制造出一处远眺的空间。院落分为两处,东侧的院子尺度狭长,作为入口前院,以交通功能为主。西侧的院子布置了一个大型的水池,以休憩功能为主,水池中穿插布置了圆形树池、舞台和下沉休息区,既与九号院的窗洞和泡池呼应,水池外布置了步道、休息厅,形成了多样化的趣味空间,让每个人都能找到属于自己的安静角落。11.jpg12.jpg13.jpg14.jpg15.jpg16.jpg17.jpg18.jpg19.jpg20.jpg21.jpg22.jpg23.jpg24.jpg


登录查看全部
北京小喜民宿十号院 原榀建筑事务所-酒店民宿
素材ID号1231复制ID号
138
  • 上传时间: 2024-01-10 19:11:26
  • 文件大小: 10.10M
  • 素材标签: 小喜民宿原榀建筑事务所酒店民宿
  • 高清原图下载
  • 收藏
  • 分享
  • 他上传的材料
    028-86628548
  • 关于我们 网站协议 关于我们 联系我们 加入我们 业务拓展
  • 常见问题 上传要求 下载问题 充值支付 提现收益 帮助中心
  • 免责声明 本网站内容由用户自由上传,如权利人发现存在误传其作品情形,请及时与本站客服联系
  • 友情链接
  • 关注我们

    了解更多