注册 | 登录
今日更新:100
已为你搜索到以下结果 /没有搜到相关素材请加qq群704148082索取
蜜悦波西塔诺-酒店民宿
2024-01-10 22:10:49
蜚声设计蜜悦波西塔诺酒店民宿
【酒店民宿】蜚声设计|蜜悦波西塔诺

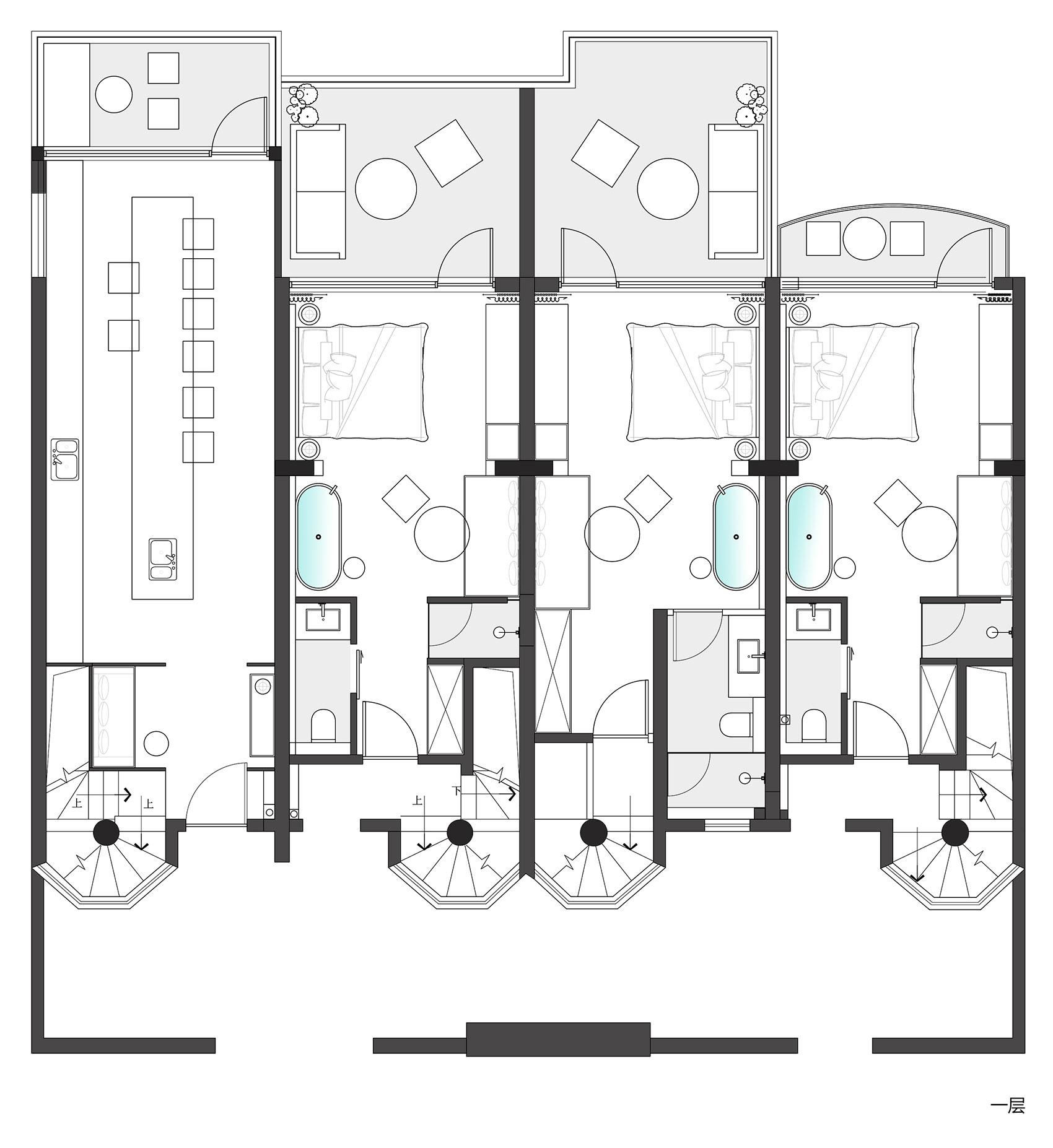
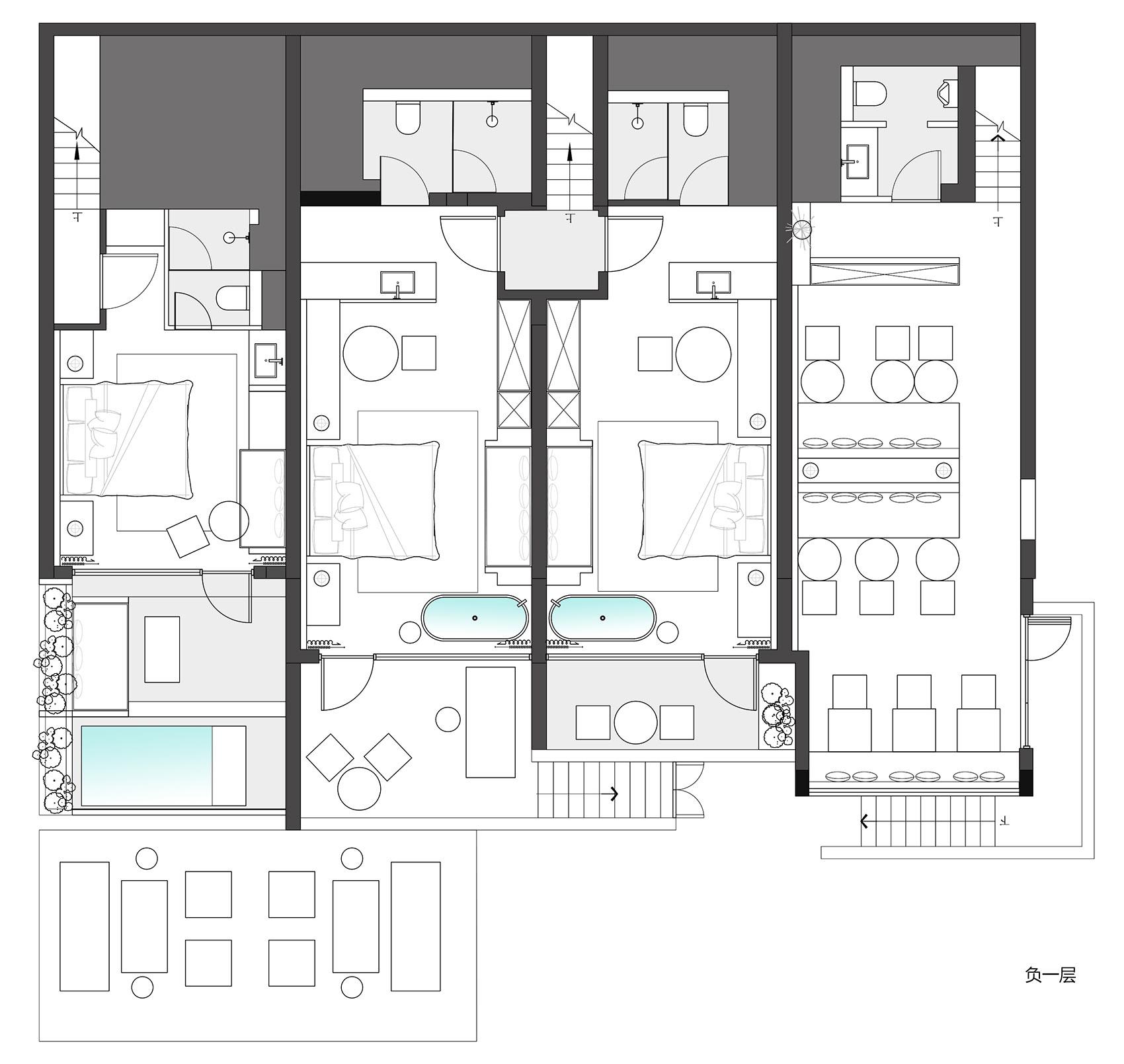
000.jpg00.jpg0.jpg0a.jpg0b.jpg1.jpg1a.jpg1b.jpg1c.jpg

“大理风光在苍洱,苍洱风光在双廊”,进入秋季的大理双廊镇,收敛了盛夏的热情与活力,换上了温婉气质的外衣,于风花雪月中谱写小桥流水,古道人家。

人文环境的熏陶下,给了蜚声设计不一样的灵感与悸动。蜚声将现代与古朴相互融合,将空间的舒适与宽阔更多地让渡给使用者,在双廊古镇鳞次栉比的小楼中,营造出和而不同的建筑秩序。

3.jpg4.jpg5.jpg6.jpg7.jpg8.jpg9.jpg10.jpg11.jpg12.jpg13.jpg保留了白族建筑的飞檐翘角,蜚声将整个建筑的外立面进行了改造。整栋楼的外墙,由向内的砖瓦的封闭,改为向外的玻璃的通透。在保留建筑形体与空间结构的同时,使得人的视野得以贯穿整个空间,达成室外室内再到室外的三重对话与互动。14.jpg15.jpg16.jpg17.jpg18.jpg19.jpg20.jpg21.jpg22.jpg23.jpg24.jpg25.jpg26.jpg27.jpg28.jpg37.jpg38.jpg39.jpg40.jpg40a.jpg41.jpg42.jpg43.jpg

登录查看全部
蜜悦波西塔诺-酒店民宿
素材ID号1235复制ID号
158
  • 上传时间: 2024-01-10 22:10:49
  • 文件大小: 10.74M
  • 素材标签: 蜚声设计蜜悦波西塔诺酒店民宿
  • 高清原图下载
  • 收藏
  • 分享
  • 他上传的材料
    028-86628548
  • 关于我们 网站协议 关于我们 联系我们 加入我们 业务拓展
  • 常见问题 上传要求 下载问题 充值支付 提现收益 帮助中心
  • 免责声明 本网站内容由用户自由上传,如权利人发现存在误传其作品情形,请及时与本站客服联系
  • 友情链接
  • 关注我们

    了解更多