注册 | 登录
今日更新:100
已为你搜索到以下结果 /没有搜到相关素材请加qq群704148082索取
上海乡里宿-酒店民宿
2024-01-13 17:22:53
酒店民宿时上建筑空间上海乡里宿
【酒店民宿】时上建筑空间设计:上海乡里宿

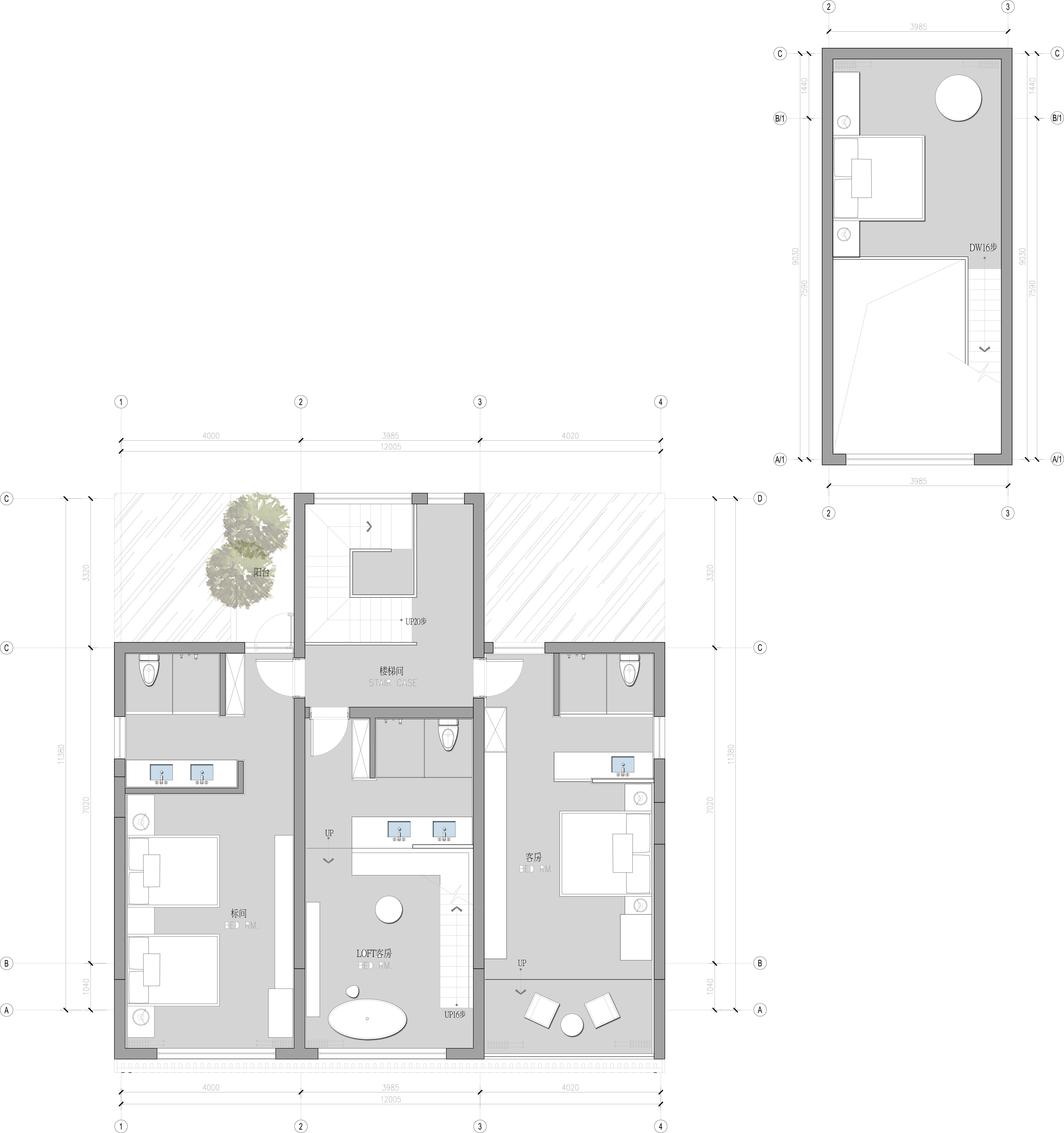
1.jpg青西郊野公园位于青浦区大莲湖畔,这里河网交错,星罗密布,遍布奇花异草,周边更有“水上森林”之称的独特景观。乡里宿由时上建筑主持改造设计,共有三幢建筑,依水而建,与水为邻。设计师从莲花的名字发散出水目、溪客、莲境作为每一幢独立建筑的名字。游客乘上江南水乡的小船,便能慢悠悠地到达另一幢建筑里。2.jpg3.jpg4.jpg20 (1).jpg20 (2).jpg20 (3).jpg为了统一村落白墙黑瓦的建筑风貌,设计师在建筑外立面增加一道道格栅,将原本的建筑包裹,在美观的同时能够保护内部空间的隐私性。20 (4).jpg20 (5).jpg20 (6).jpg20 (7).jpg20 (8).jpg20 (9).jpg20 (10).jpg20 (11).jpg20 (12).jpg20 (13).jpg20 (14).jpg20 (15).jpg20 (16).jpg49.jpg50 (1).jpg50 (2).jpg50 (3).jpg

在溪客内,临近水系用玻璃打造出了一个无边泳池,配合瀑布墙与卡座,度假感十足。扑入池中,畅游于此,尽情释放天性。

50 (4).jpg50 (5).jpg50 (6).jpg50 (7).jpg50 (8).jpg50 (9).jpg50 (10).jpg50 (11).jpg50 (12).jpg50 (13).jpg50 (14).jpg50 (15).jpg50 (16).jpg50 (17).jpg50 (18).jpg50 (19).jpg50 (20).jpg50 (21).jpg60 (1).jpg60 (2).jpg60 (3).jpg60 (4).jpg60 (5).jpg60 (6).jpg60 (7).jpg60 (8).jpg60 (9).jpg60 (10).jpg60 (11).jpg60 (12).jpg60 (13).jpg60 (14).jpg60 (15).jpg60 (16).jpg70 (1).jpg70 (2).jpg70 (3).jpg70 (4).jpg80.jpg81.jpg餐厅2楼.jpg餐厅一楼.jpg咖啡.jpg2-gigapixel-scale-4_00x.jpg三幢一楼.jpg3-gigapixel-scale-4_00x.jpg6-gigapixel-scale-4_00x.jpg14-gigapixel-scale-4_00x.jpg19.jpg20-gigapixel-scale-4_00x.jpg乡里宿门头-022.jpg

登录查看全部
上海乡里宿-酒店民宿
素材ID号1255复制ID号
210
  • 上传时间: 2024-01-13 17:22:53
  • 文件大小: 69.58M
  • 素材标签: 酒店民宿时上建筑空间上海乡里宿
  • 高清原图下载
  • 收藏
  • 分享
  • 他上传的材料
    028-86628548
  • 关于我们 网站协议 关于我们 联系我们 加入我们 业务拓展
  • 常见问题 上传要求 下载问题 充值支付 提现收益 帮助中心
  • 免责声明 本网站内容由用户自由上传,如权利人发现存在误传其作品情形,请及时与本站客服联系
  • 友情链接
  • 关注我们

    了解更多