古托雷克纳工作室-普拉瓦勒总部办公室
2023-03-23 11:13:58
工业室内办公室
在招待会上,公众受到天花板上的装置的欢迎,该装置由黑色教堂组成,其设计是通过参数化过程(通过计算算法生成几何形状)获得的,指的是将帽子扔向空中的手势,典型的毕业庆典。




项目团队提交的说明。 PRAVALER是一家活跃在教育领域的金融科技公司,其新总部项目旨在加强品牌的DNA,创造一个年轻,富有创造力和技术的环境。选择品牌的主要颜色以及一些涉及教育领域的物品,以在物理空间中翻译公司的价值观。例如,在招待会上,公众受到天花板上的装置的欢迎,该装置由黑色教堂组成,其设计是通过参数化过程(通过计算算法生成几何形状)获得的,指的是将帽子扔向空中的手势,典型的毕业庆典。仍然在这种环境下,长凳的设计,由垂直切割的OSB面板组成,创造了一个满和空的游戏,一端略有倾斜,指的是一排书架支撑在架子上。为了满足客户的需求,所有团队和呼叫中心共享同一楼层,提供团队之间的会议和交流,在此之前一直分开,而会议室和更多的集体区域位于楼上。布局设计基于协作文化,激发了替代的工作方式。





传统的工作台穿插着由沙发、扶手椅、豆袋和看台组成的休息室,面向立面并打开视野,打断了桌子的连续外观。在休息室旁边,封闭的会议室占据了楼板的中央空间,并有两个完整的玻璃面,从而确保了布景内的一定渗透性。黑板面板散落在墙上,允许沿着整个平板进行非正式会议。提出了一个沉思的观点,以最大限度地利用城市天际线和皮涅罗斯河的景色。植被是员工福祉的基本要素,存在于大多数环境中。玻璃会议室由一个架子系统所包围,该系统接收植物和带有长凳的家具,花盆标记了板的一侧,允许员工从平板上的任何地方定期查看植被,实现Biophilia的基本原则之一。


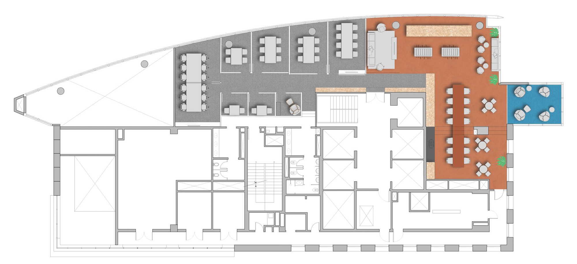
建筑的核心衬有OSB木细木工,具有功能性,接收储物柜,打印机和咖啡点。在这个中央细木工的顶部提出了一个LED面板,除了显示数字以刺激参与和承诺以实现公司发展的结果外,还通过实时可视化的数据讲述学生的成功故事。这个在整个集体环境中展开的 Led 面板承载了公司的数字本质。木材的中性色调,灰色地毯地板和涂成深灰色的明显平板被品牌的主要颜色打破,出现在划分休息室的地板切口,会议室的彩色玻璃和工作站的椅子上,用PRAVALER的颜色定制。照明系统识别工作平台、流通,并使环境均匀。二楼部分被减压和欢乐的空间占据,设有游戏休息室、演示看台、储藏室和休息室,建议在俯瞰城市的第二个视角。













橙色乙烯基地板,品牌色彩鲜艳,突出了俏皮的区域,而定向刨花板储藏室的细木工则温暖了环境。架子上摆放着让空间健康、视觉舒适的植物,以及沿着立面延伸的织物窗帘布料。各种大小的会议室占据了楼板的另一部分,也允许访客和顾客直接进入咖啡区。无论是在企业家具还是装饰家具中,国家家具的选择都是优先考虑的。在集体区域和休息室中,提出了豆袋和阳台椅等轻便件,旨在实现空间所需的灵活性,允许根据需要进行多次重新布置。所有项目选择都以寻求更可持续的解决方案为指导,对环境的影响更小。




登录查看全部