氛围热情欢迎每个人-阅读和工作空间
2023-03-23 14:48:04
图书馆室内办公室
非营利机构,免费共享阅读和工作场所、建筑营造、阶梯座、楼梯、蓝色白色木色。

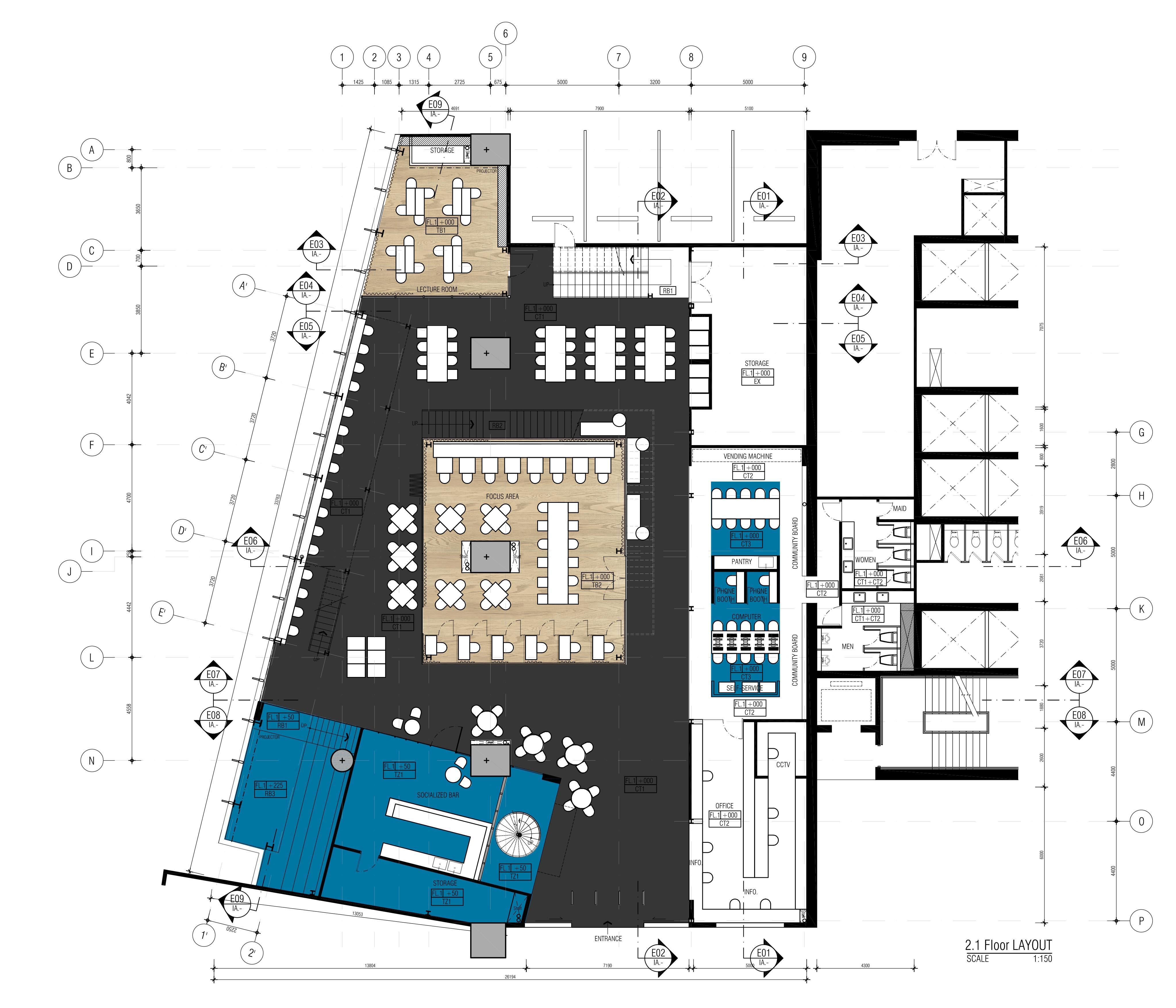
地产开发商Golden Land计划在朱拉隆功大学(Chulalongkorn University)旁建造一处新的商业购物中心Samyan Mitrtown。为了回馈社会,在购物中心的二楼开设了一个名为Samyan Co-op的非盈利教育机构,为当地社区提供一个容纳500人的阅读和工作空间,每天24小时免费向公众开放。本案交由当地的建筑公司onion设计团队打造。



设计团队首先开始调研与Samyan Co-op有相似功能的现有场所,比如图书馆、联合办公、学习中心、大学里的公共空间和咖啡馆等。研究小组还向公众提出了一系列问题,由此推断出确实有潜在的客户群体他们希望有一个可以改变阅读和工作环境的空间。由于每个人都有自己的工作习惯,因此设计团队决定设计一些不同的空间场景,去适应每个人的风格。









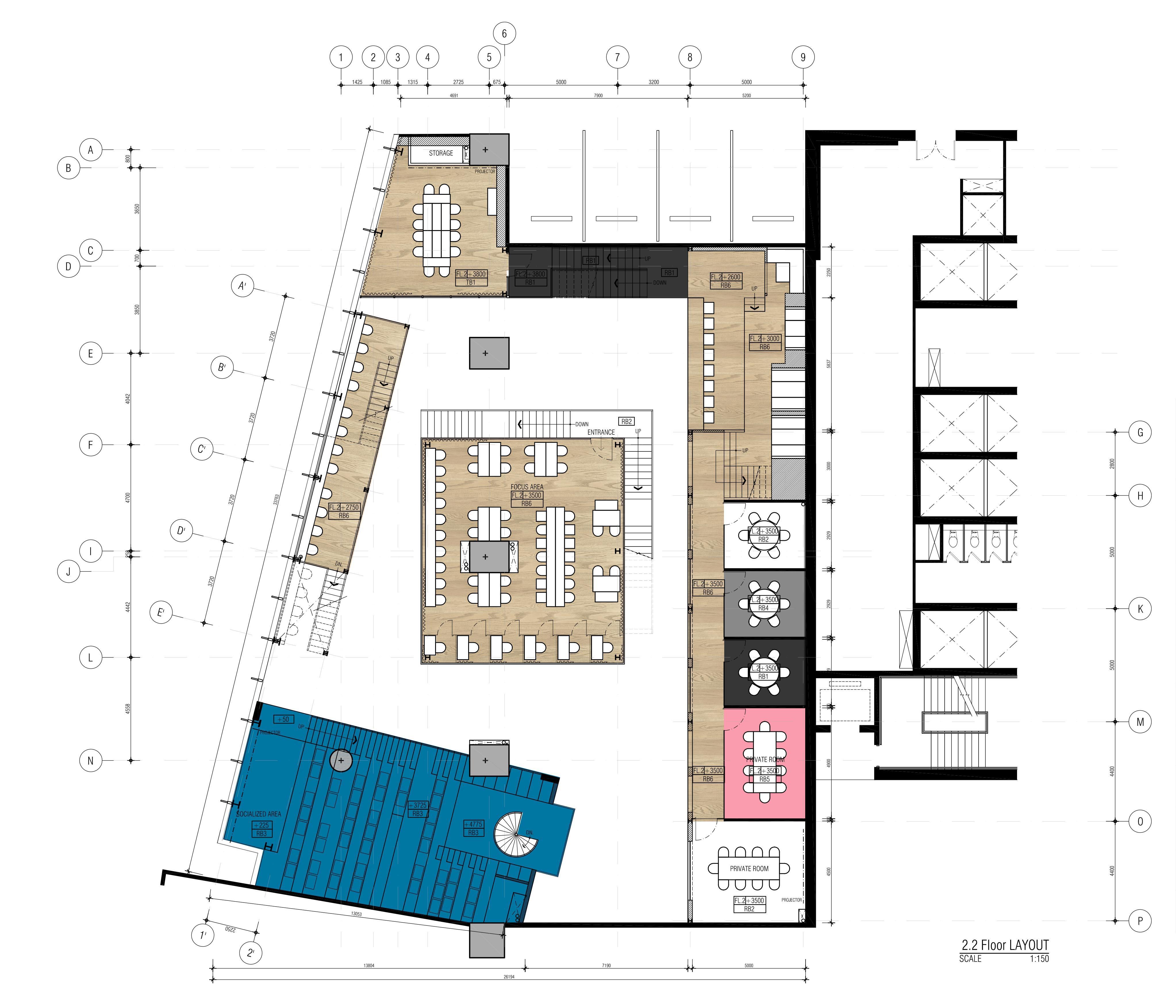
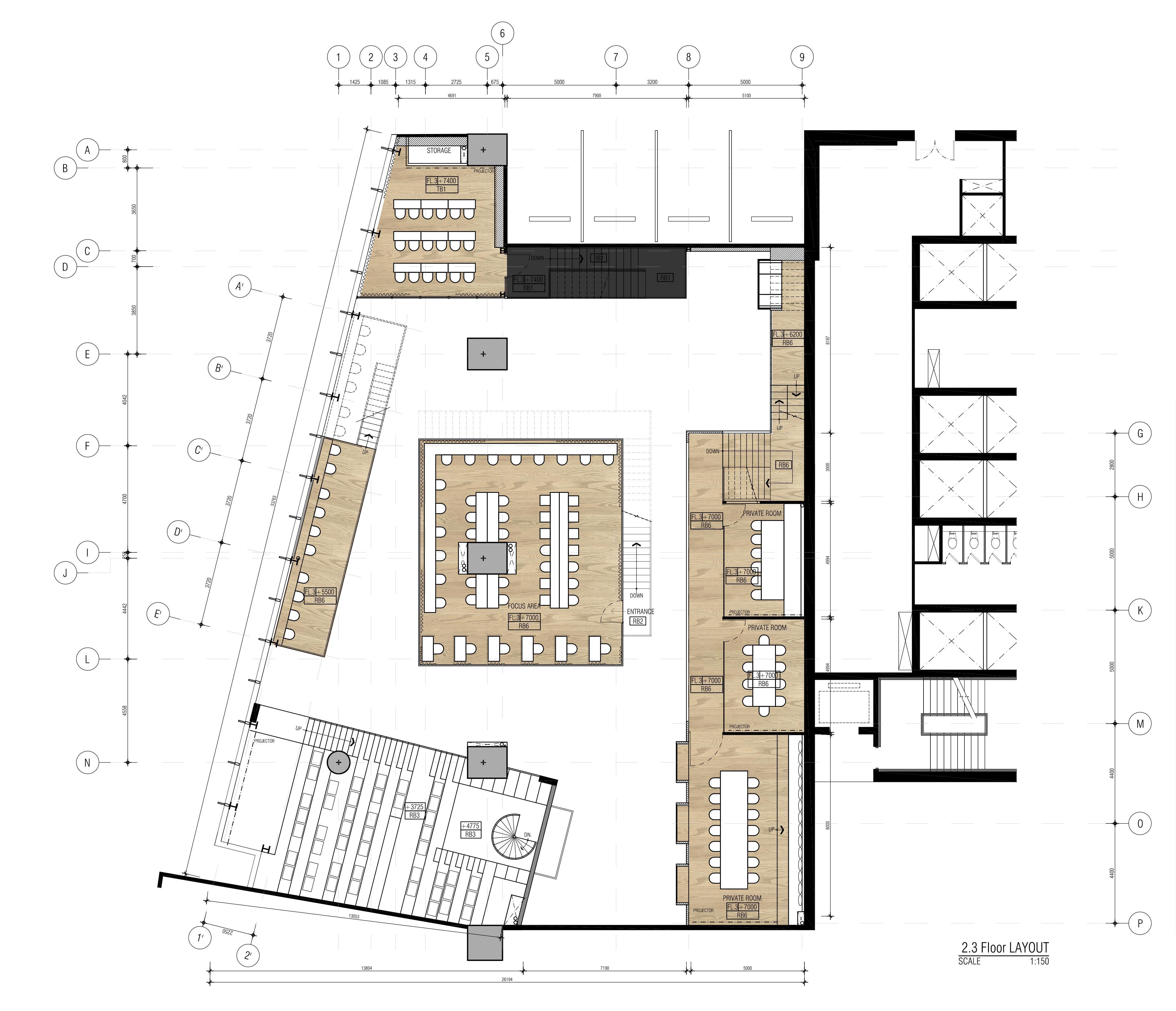
在进行了初步的研究之后,设计团队决定在购物中心内创建5个独立的“建筑体”,但相互之间能通过视线建立起连接。场地的中心规划了一处 “安静的建筑体”,周边采用透明玻璃将其围合。由于Samyan是一个免费场所,任何人都可以在任何时间(无论白天还是黑夜)自由进入,这样的设计旨在创建非正式的氛围热情欢迎每个人的到来。





设计师将醒目的蓝色咖啡吧设于入口处,同色的休闲咖啡座椅随意的散放于周边,营造休闲的氛围。咖啡空间又与看台式阶梯座巧妙相连,构成一个大型多功能时尚休闲区域。
此外,设计师还非常注重各建筑之间的动线元素的考量,以营造充满动感和社交互动的生态空间。同时,通过缜密的动线规划,工作和阅读空间变得更加私密。Samyan Co-op自2019年9月20日起开始营业,并一直保持着满员的预定量。这也让大家非常惊讶,竟然这么多人选择在家以外的空间工作。Samyan Co-op就像是一个没有书的图书馆,因其开放、友好、明亮的建筑规划为所有人提供免费教育。






















登录查看全部