整个空间的序曲是入口长达20米的通道,使用了黑色镜面不锈钢搭配大面积的绿植墙,柔软与刚硬并举,让每一个进入办公空间内的员工,有一种登台演出前的兴奋。欲扬先抑之后,便是豁然开朗的一个白色透光挑高中庭,这里便是我们称之为“教堂”的空间,配上金色的楼梯,给人一种无形的神圣感;两翼暗色休闲空间,如酒吧般激情惬意;四层办公空间都有不同的颜色搭配,如游乐园般充满愉悦和活力;四扇开向中庭空间的窗洞,让人可以驻足,可以眺望,也可以再旁边沙发上发呆,或者冥想。








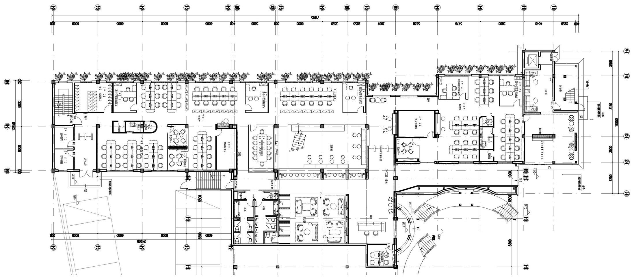
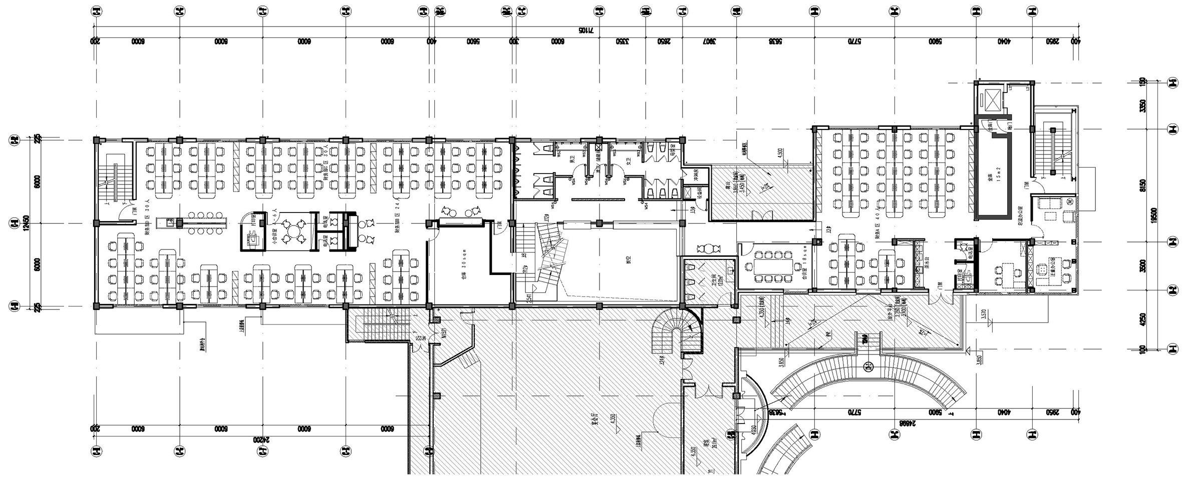
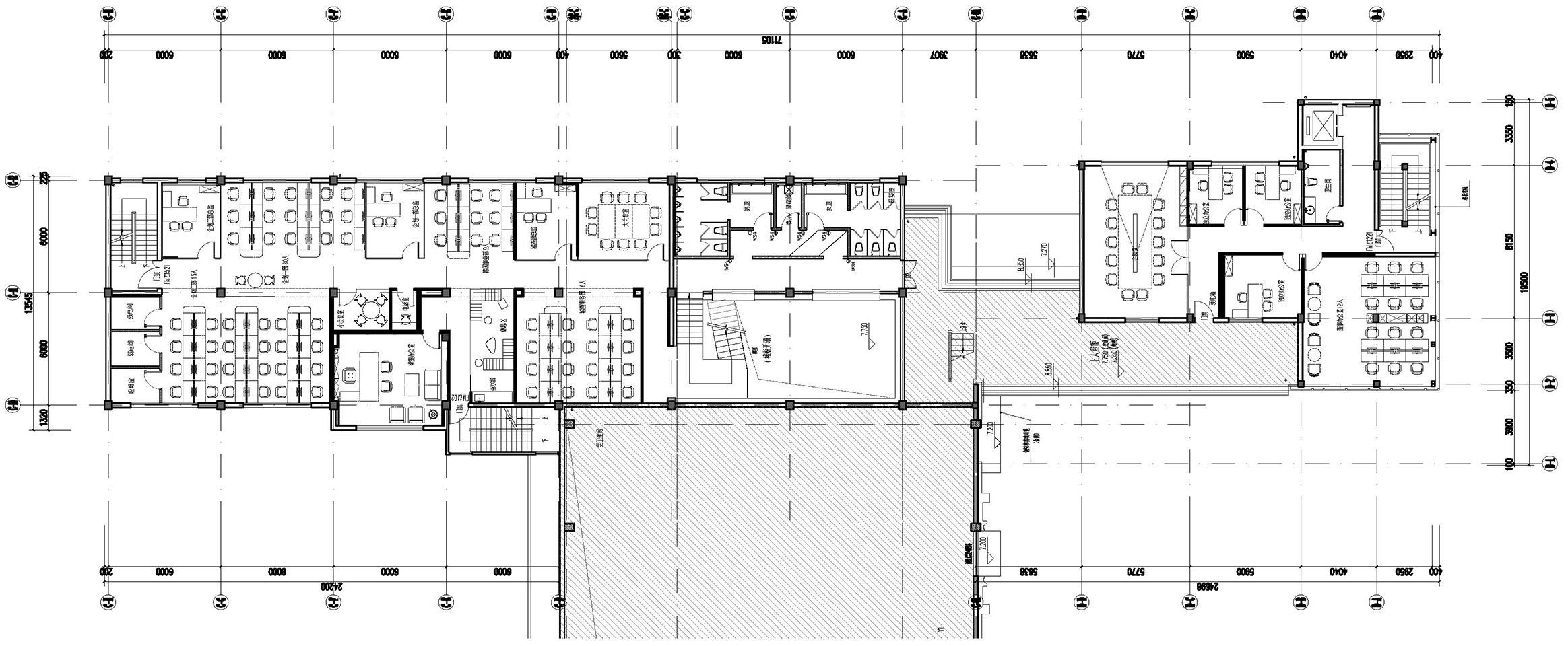
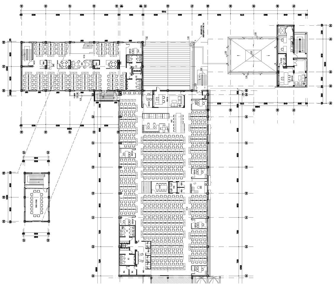
该厂房始建于1966年,最早为上海东风木材厂使用,由于原始图纸严重缺失,房屋内部经过多次改造,结构体系较为复杂。整栋建筑最初的形态是由北向南三栋独立建筑组合而成,最北面的四层老厂房,中间三层的歇山式屋顶老厂房及最南边四层裙房组成,由于三栋老建筑原始使用功能的差异,导致楼板及层高的差别,但作为整体办公楼使用,要在空间及楼层的梳理上通过设计避免这些先天性不足,这对于设计提出了非常大挑战。


为了达到最佳的办公环境,设计团队重新梳理的原先的楼板关系,使之形成半层的空间组织关系,同时,为了打破原有厂房建筑横竖矩阵一般呆板的柱网布局,拆除了原有中间部位的部分楼板,将其上下贯通形成一个高三层的中庭空间,并在这里设计了金色楼梯将整个办公室的上下交通动线汇聚到中庭,担负了出入公司必经的交通枢纽的角色,通过金色楼梯走去二、三、四层办公区。除了交通需要,中庭空间是整个空间的精神主导,为了营造微妙的神圣感,在设计上,四周采用冲孔铝板结合独特的背发光的打光方式,呈现了丰富而有趣的空间构成和层次感,光影之间呈现一种梦幻的仪式感。






而不同层面窗洞,错层的视线交流,使之完全变身为整体空间的视觉焦点和活动中心。在公司举行重大活动的时候这里的大台阶可以作为主要的舞台,楼上的员工可以通过特意设计的黑色“窗洞”一同参与。你可以走上木质平台,另外一侧设计师巧妙的设计了一个半高的吧台桌面,透过矮墙的高度实现了两个功能区域之间物理和心理层面的交流。


纵观整个设计,都在尝试对传统的办公方式带来改变,创造一个崭新愉悦的工作体验。依据场地的条件,以及体现企业文化和对员工的关怀,优先保证各个部门拥有最佳的采光、通风和视野,员工办公区域设置在靠窗的位置,不同部门与部门之间原则上根据楼层和柱位进行划分。



其余的功能区块,如洽谈区、小会议室、打印室以及电话亭等,也没有按照普通的做法排列在靠墙的位置,而是看似随意的点缀在大空间的中间,这是有意的将原本规整的空间利用这些辅助功能加以划分,尽可能的消除开放式办公环境带来的私密性的缺失,使得办公环境动静结合。





对于通常会被忽略的卫生间,设计师也没有放过,同样运用了纯度很高的色块并且结合大面积的白色瓷砖营造出非常明快的氛围。值得一体的是灰色和黑色马赛克以及黄铜的点缀为这样的空间增添了一份时髦优雅的感觉。就连黄铜洗水池是设计师为了这空间设计并且定制的。












