在这个空间里,设计师希望有剥离的时间概念,有氤氲的回忆故事,有沁润的温度和流淌的艺术气息,还要有超越潮流之外的感性认知。
建筑的美感与深邃在于空,容纳着万境。于安静、朴质的建筑空间感受阳光、感受幸福,这就是设计的真正意义。
理性不会唱歌,直觉才会-伦佐.皮亚诺
美学更多时候依赖于视觉和情感上的吸引力,而不是特定的风格或来源。
冬日的下午,暖暖的阳光斜斜地透过玻璃窗照射进来,室内一片金黄,此时,空间的气质和韵味随着光影的变幻悠然而生。

该项目是国际超模刘雯在宁波的工作室,室内设计由设计师王践操刀。设计之初,设计师于空旷的建筑内闲坐了许久,试着与空间对话,倾听它的诉说,静静地享受这温暖又静谧的时光,寻找内心最真实的感动,设计也由心灵的感动而展开。
建筑主体是由两幢独立的三层建筑组成,安静地矗立于江边公园内,分别有两步独立的楼梯,通过一层的门厅和二层的露台进行连接,另外还有一个院子,一个天井和一个水边的亲水平台。东西两面江水环绕,循环互通,尤其西南侧比较开阔,有着充足的日照和自然景观。


安静、内敛的纯粹之美
设计师从江南水乡的本土文化出发,尊重场地精神,融合当代极简美学,最终决定遵从自己内心最真实的感受,希望依托于自然营造一派纯粹之美,重新构建出一种秩序,用场所之爱,去营造安静、内敛、舒适的体验感知。



人与自然、建筑的和谐共生
无法改变建筑外立面的表皮设计和空间架构,但可以解放门窗,解放一切疏离自然和阳光的阻挡,设计师巧妙利用廊道搭建出过渡的“灰空间”。
大量使用折叠、隐藏式的门窗,让室外的绿地、花园、平台都能成为室内的一景。模糊建筑内外部的界限,使室内室外形成一个自然有机的整体。将自然的变化引入室内,让气候、温度、色彩、气味这些充满变量的因素来创造室内的生命力,与人和建筑共生。

安静、朴质、阔达的生活气息
生命力,是美学真正的意义。
如果结构是一个命题的话,你就不要试着去改变它,你要做的,就是解题,去寻找到最合适的答案。

光,最美的心灵感动
人对于环境的感受来自于自然层级、物理层级、心理层级叠加的综合体验。设计师希望空间中要有绚丽的阳光,用与自然的契合和艺术的氛围来唤醒生命的真正力量。空间中的美不仅仅只是反应出当下的景象,而更应该是未来的景象。不是刻意被赋予的,而是它自行生长的姿态,充满动感的交替、转换,循环,传承。

探索自然的艺术感知
模糊边界,是为了建立起与自然的衔接,从而趋近设计的本质。脱离了自然,我们将失去最真实的情感。空间是具有逻辑性和形态性的,刻意模糊掉这种形态性,就是希望观赏者或者使用者产生特别的知觉意义。模糊掉空间关系,转换心理场景,同时旨在探索另一种感知的边界。

设计师大量使用常见的基础建材,水泥、钢板、玻璃、涂料,尊重材料,不改变它的天然属性,赋予材质新的表现形式。将这些建材的色度、纯度、尺度控制在一定的范围内,是为了凸显光于建筑内的艺术感观。

光无形,所以无界
空间物理边界的模糊,实现了与光线的交互,让阳光发挥出了最大的价值,所有的材料都被阳光赋予了新的状态和生命,拥有了光影、温度、色彩、虚实等动态变化。光的意义,让抽象的空间被感知。影的存在,让光的刻画更生动。因为光无形,所以空间无界。


“优雅的极致是呈现精神的自由,自由是最深刻的人性需要。”设计师王践如是说。自由是需要平衡的,设计师选择用安静来平衡自由的关系。极少主义的白色隐藏着最丰富的情感,也预示着空间的无限扩张和无所不能的包容性。白色不仅仅是一种颜色,更是光与影、虚与实达到融合的最佳媒介。




当所有色彩都失去魅力的时候,唯有白色,能够统一所有弥散不定的创意,覆盖一切不稳定的主客观因素。
克制设计的主观性,把空间功能的定义和选择权交给使用者,以多重选择的模糊性反对非黑即白的明确性,靠相邻空间局部关联的小秩序实现若即若离的关系。让人的需求变化在与人的相互适应中有不断被开发的动态生成过程。而这个过程是自由的,变换的,且充满未知和惊喜。



极简,无限可能
空间做得太满,就会扼杀想象力和空间的可能性。设计师认为:生活是无法被设计的,只可以被描述。极少主义的手法不仅体现在空间的物质层面,更在于模糊掉人的心理边界,为空间所承载的生活方式提供探索未来的无限可能。始终坚持以空间与人的情感链接为主导,让人更加平和,向内寻求空间所代表的人和内心的关系。
设计师创造出来的美学空间或艺术作品,要通过使用者或欣赏者的审美再创造,才能发挥它的美学价值。这又是另一种意义上的平衡。




令人陶醉的自然光影
空间并非几何形体的具体容器,而是在诸多诗意形象和心灵意象的建筑中形成的独特生存状态。
简单的色彩、利落的线条、柔软的质感、模糊的边界,都呈现出从感官到精神一种安静而自然的体验,空间被当做一个值得让人去经历和感受的存在和能够自我循环给养的生命体。它能融入框架以外的世界,亦能让置身其中的使用者深信不疑。环境、空间、纹理、工艺和光线的动态并列,与环境和谐共处。







设计表现欲望的控制,空间侵略性的退让,对人和生命存在的尊重,只平静地呈现一种状态,描述一种关系,构建一种生活场景。设计被净化为其本质,追求的是一种将自然和人文元素融入空间的哲学。



人居于舍,舍居于景。
林语堂说,他梦中的院子是“宅中有园,园中有屋,屋中有院,院中有树,树上见天,天中有月!”












在这个空间里,设计师希望有剥离的时间概念,有氤氲的回忆故事,有沁润的温度和流淌的艺术气息,还要有超越潮流之外的感性认知。
建筑的美感与深邃在于空,容纳着万境。于安静、朴质的建筑空间感受阳光、感受幸福,这就是设计的真正意义。
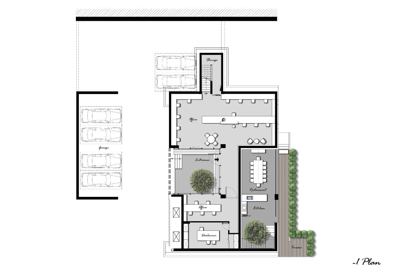
平面图


