梁智德曾说,“艺术需要个性,而修行却只能不断放下自我,设计恰好介于两者之间,放下是对规则和外在大千世界的谦卑,拿起就是个性创意的舒张,个中的平衡可能需要我们一辈子去参悟。”
中国艺术创造的空间不是现实的空间,而是一种“灵的境界”。
——宗白华
2013年,建筑专业出身,具有扎实美学功底和传统人文素养的梁智德,在广州一个静谧的园区内,创办了本则设计,其初心理念是:以源远流长的文化为起始,溯源、传承、创新,唤醒民族对本土文化的自信。
在他看来,“虚实相生”是“灵境”的一种理想表达,真正高明的设计师,要懂得留白,像国画一样,从笔墨描摹的画面空间导向生气勃发的情意空间,创造更为深远的想象。本则设计的办公室正是这样的一个空间——融文化与自然于一室,以为数不多的意向,实现了“天地与我并生,万物与我同一”的自由境地。




本则设计原办公室
原本则设计的办公室位于现址楼上,设计之初“本则”二字已融入整个环境之中,设计中不经意中透出的简远空灵,看似静默无痕的设计修辞,极富深味的细节和美学立意。

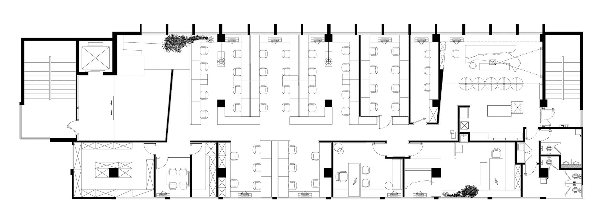
办公室现址立体平面图
绿色块代表绿色景观布置位置
在新办公室的设计中,本则设计延续了这份初心,把庭院景观沿着内部流线渗透到空间的每一个角落之中,营造出办公室的内部“园林”,做到移步换景的效果,也从真正意义上打造出充满灵性和诗意的办公空间。
“为了体现本则设计的发展历程,我们将原办公室的平面布局图做成了挂墙模型,一来致意本则设计在过往岁月中的奋斗时光;再者,也不断提醒我们勿忘初心,做一个真正意义上的文化传承者;于设计,故与新所构成的张力关系——别故致新,以故为新,空间上别离,但精神上传承,寓意非凡。”



新办公室设计中,沿着一束明净的光进入黑白分明的空间,我们可一探其究竟,一睹其本源。
在这里,透过背后灯光的折射,“本则”二字投影在木墙之上,跨过旁边的这扇门,步入另一个精神境域。 “本”字一横为平衡,一竖为破立,以本为则,不破不立,即本则“尊重传统,立意营造,寻求本源”的理论之源,由此入,亦由此出,抽象与具象,浑然相融。





黑色寓意浩渺无垠的星空、艺术灯象征日月星辰的光影,苔藓和碎石铺就了层峦叠嶂,夭矫蜿蜒的迎客松则指向了四季的繁茂丰硕和旺盛的生命力,一只翠鸟鸣于其中,颇有“鸟鸣春涧中”的意蕴,素雅中更添鲜活的生命气息。
每前进一步,精神的景深也随之升华一步。青烟袅袅,琴声环绕,在细节上植入了山间田野的生活乐趣,将自然色彩与人文、室内完美的融合,让整个空间充满宁静怡人的气息。










办公空间排布灵动而富有节奏,黑白之间,绿植的加入形成平衡稳定的导视效果,设计师把憧憬的自然场景浓缩在一起,增添了空间情韵,让心底潜藏已久的自然情感记忆再度鲜活,时有阳光漫撒,诗意横生。





此处,设计师特意营造一个舒适畅快的共享空间,既满足了工作中的实际所需,也为日常休息时相互学习、交流、情感沟通等提供了一个富有生活滋味的重要场所,恰如是:青色入眼帘,松下思方在,谈笑间,虽不见鸿儒,亦无愿为白丁。



在蔚为大观的中国传统建筑艺术中,本则设计取一点——古建斗拱标准部件,以代表源远流长的传统文化的起始,这也象征着追溯本源,立意营造。
飘渺的烟袅袅升腾,人在其间,感受到另一“虚无”空间的存在,正是“空”间的原形,从视觉感官延展至思维感官,使原本紧凑的空间中增加一道新的空间,丰富了原有的空间涵意。


办公室中的植物虽经过巧匠的经营,但自然的生命也在其中随性地生长。 梁智德曾说,“艺术需要个性,而修行却只能不断放下自我,设计恰好介于两者之间,放下是对规则和外在大千世界的谦卑,拿起就是个性创意的舒张,个中的平衡可能需要我们一辈子去参悟。”
