注册 | 登录
今日更新:100
已为你搜索到以下结果 /没有搜到相关素材请加qq群704148082索取
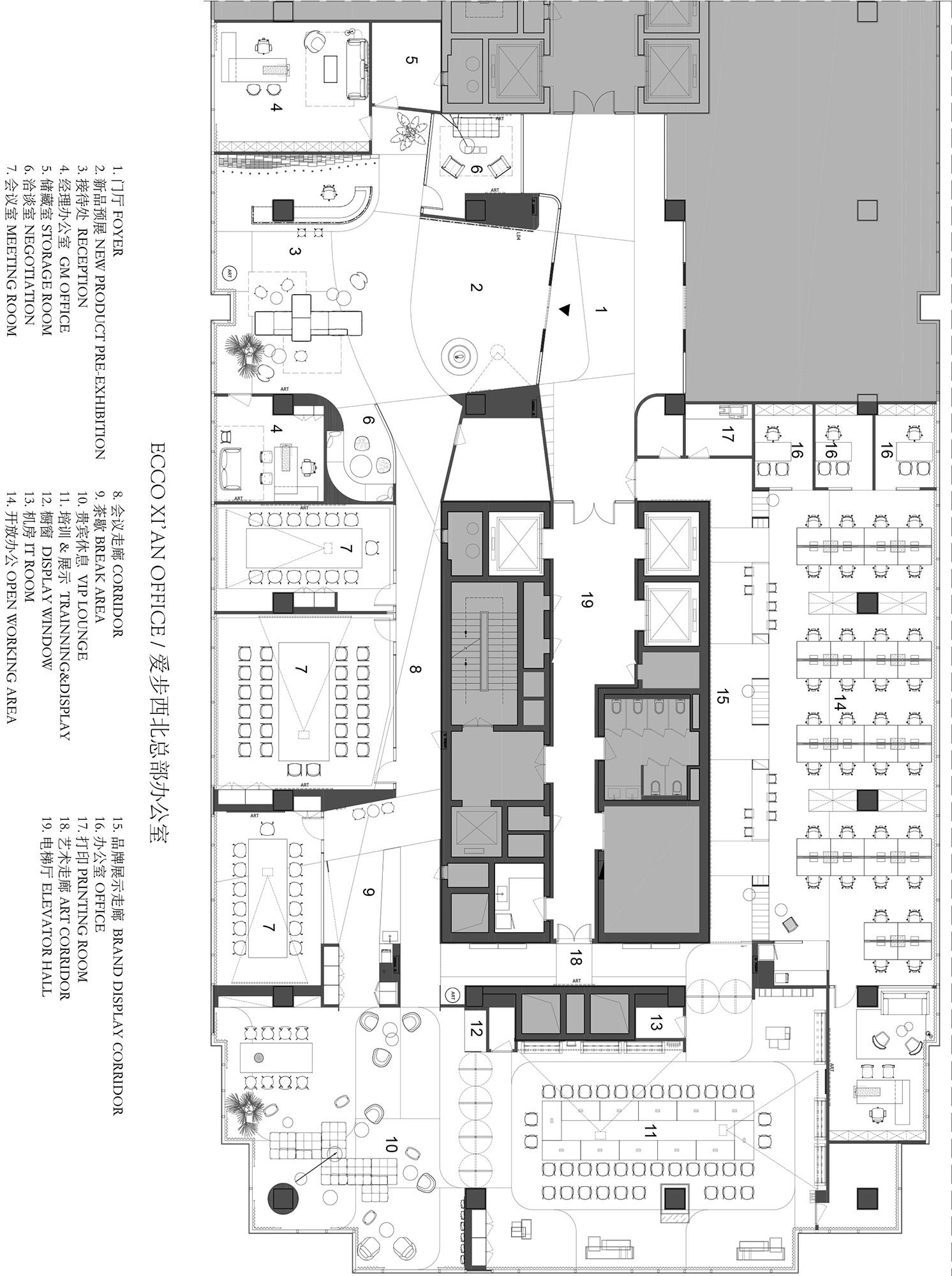
用皮革创造空间律动-ECCO总部办公室
2023-03-28 11:19:52
现代艺术办公室
设计单位 红山设计HONG Designworks 项目地点 陕西西安 项目面积 1344平方米 建成时间 2020年3月

自然运动变化,周而复始,循环往复。设计师将其延伸至场景的设计中,展露自然纯粹的本质,在这为丹麦品牌设计的办公空间,创造出与品牌理念相融合的动态场景,让自然的气质、律动的节奏和持久积极的生活状态凝聚其中。

办公室-金麦道设计素材网www.ycpic (1).jpg

业主品牌的标识墙以纯粹的白色与暗光呈现,独立放置于空间一侧。设计师提炼西安斑驳古老的有形文化遗产——城墙,同时辅以品牌精神中的“皮革创新”,为接待区打造一面皮砖墙,以不同的颜色的皮砖对应皮料制作的不同阶段,同时和西安城墙的历史变迁联系起来。

设计师用波澜起伏的墙面律动感和创新的中西方元素连接吸引访客的目光,墙面内置皮砖样式的礼品盒,可以让客人取出并拿走,以弥补无法带回西安城墙砖的遗憾。

材料拼贴以差异化的平面色块和质感的碰撞融合,形成立体多元的空间,突破传统空间整体性色彩带来的单一感,呈现颠覆性的视觉效果,为人与空间的日常互动增添乐趣。

接待区旁预留了相对隐秘的休息区,在简洁的架构下连通整体又彰显个性。悬挂的皮制艺术品以陕西皮影的皮革为设计灵感,同时融入业主品牌的皮料辅助完成,在小场景的氛围充盈着现代美学的气息,凸显丹麦和西安本土文化的融合。

办公室-金麦道设计素材网www.ycpic (1).gif办公室-金麦道设计素材网www.ycpic (2).jpg办公室-金麦道设计素材网www.ycpic (3).gif办公室-金麦道设计素材网www.ycpic (4).gif办公室-金麦道设计素材网www.ycpic (4).jpg

接待区以开放式格局容纳等候区,在不同角度和距离之间形成多层次的视觉画面。墙面上悬挂的照片取材自业主丹麦工厂旁的麦田,既反映了品牌文化,又为空间增添了自然元素,让来访者感受专属品牌的空间气质。

办公室-金麦道设计素材网www.ycpic (5).jpg

体块穿插下的空间生成许多叠加的部分,透过材料拼贴自然带动空间节奏,并营造反差场景。

办公室-金麦道设计素材网www.ycpic (5).gif办公室-金麦道设计素材网www.ycpic (6).jpg办公室-金麦道设计素材网www.ycpic (7).jpg

移步至会议室区域,墙面装饰的一块块皮影艺术装置由非物质文化遗产传承人亲自打造。而蚀刻的铝制艺术品则展现了品牌内含的自然与环保理念。
办公室-金麦道设计素材网www.ycpic (8).jpg办公室-金麦道设计素材网www.ycpic (9).jpg

设计师划分会议室外部空间来打造茶歇区,以亮黄色凸显功能区域,顶部天花的半封闭设计给予露天歇息的氛围。横向悬空的木制桌面内置了钢结构,增强稳定性的同时隐藏于墙面之中,用于分隔不同行径路线。

办公室-金麦道设计素材网www.ycpic (10).jpg办公室-金麦道设计素材网www.ycpic (11).jpg办公室-金麦道设计素材网www.ycpic (12).jpg

贵宾休息区的风格与接待区相呼应。设计师以传统制鞋用具——楦头为灵感打造了背景墙面,这一专属的艺术作品不仅成为视线的焦点,并激发来访者想要深入了解制鞋工艺的好奇心。

办公室-金麦道设计素材网www.ycpic (14).jpg办公室-金麦道设计素材网www.ycpic (15).jpg

设计师借景展现西安本土文化,在贵宾休息区窗边可以远眺古时用于迎接宾客的永宁门,让客人感受到尊贵的待客之道。

办公室-金麦道设计素材网www.ycpic (16).jpg办公室-金麦道设计素材网www.ycpic (17).jpg办公室-金麦道设计素材网www.ycpic (18).jpg办公室-金麦道设计素材网www.ycpic (19).jpg办公室-金麦道设计素材网www.ycpic (20).jpg办公室-金麦道设计素材网www.ycpic (21).jpg办公室-金麦道设计素材网www.ycpic (22).jpg办公室-金麦道设计素材网www.ycpic (23).jpg

设计创造自由且舒适的开放办公区,以多元化的办公和色彩组合为员工创作提供源源不断的活力因子,让人与空间的律动感达到平衡。内部分隔的办公室利用透明的玻璃门与外部形成互动,在设计上降低空间的活跃度,以更沉稳的氛围匹配应用场景。

办公室-金麦道设计素材网www.ycpic (24).jpg办公室-金麦道设计素材网www.ycpic (25).jpg办公室-金麦道设计素材网www.ycpic (26).jpg办公室-金麦道设计素材网www.ycpic (27).jpg办公室-金麦道设计素材网www.ycpic (28).jpg办公室-金麦道设计素材网www.ycpic (29).jpg办公室-金麦道设计素材网www.ycpic (30).jpg办公室-金麦道设计素材网www.ycpic (31).jpg办公室-金麦道设计素材网www.ycpic (32).jpg办公室-金麦道设计素材网www.ycpic (33).jpg

办公室-金麦道设计素材网www.ycpic (35).jpg办公室-金麦道设计素材网www.ycpic (36).jpg办公室-金麦道设计素材网www.ycpic (37).jpg

自然律动,是品牌设计的灵感源泉,给予不断创新的动力。灵感不停留于表面,而用打破常规的设计创造极度舒适的体验。自然的内涵与品牌的理念被设计师以创新的手法重新解构,成为品牌办公空间富有生命力的价值沉淀。

办公室-金麦道设计素材网www.ycpic (39).jpg办公室-金麦道设计素材网www.ycpic (40).jpg

登录查看全部
用皮革创造空间律动-ECCO总部办公室
素材ID号909复制ID号
163
  • 上传时间: 2023-03-28 11:19:52
  • 文件大小: 20.57M
  • 素材标签: 现代艺术办公室
  • 高清原图下载
  • 收藏
  • 分享
  • 他上传的材料
    028-86628548
  • 关于我们 网站协议 关于我们 联系我们 加入我们 业务拓展
  • 常见问题 上传要求 下载问题 充值支付 提现收益 帮助中心
  • 免责声明 本网站内容由用户自由上传,如权利人发现存在误传其作品情形,请及时与本站客服联系
  • 友情链接
  • 关注我们

    了解更多