注册 | 登录
今日更新:100
已为你搜索到以下结果 /没有搜到相关素材请加qq群704148082索取
唯有思维无拘仍有无限之可能-盒子办公室
2023-03-28 13:36:18
现代纹理办公室
想象需要包容,恰如造境需要空间,唯有思维无拘,即便身处果壳之中,仍有无限之可能。

己盒概念,与其说是工作室,不如称之为一种暂且落定的复合想象,一段自由意志的曲章,亦或是一个崭新的起点。

办公室-金麦道设计素材网www.ycpic (2).jpg

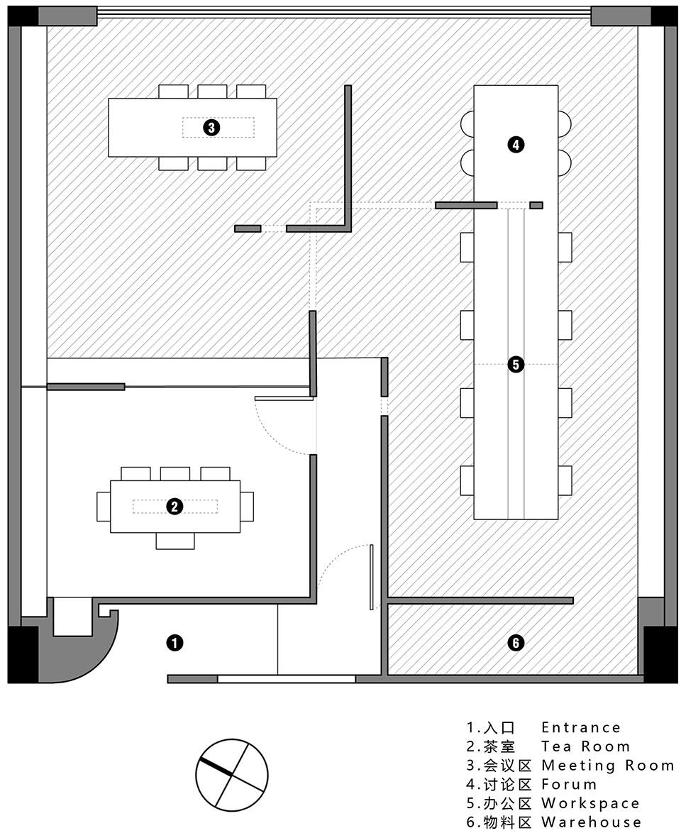
在这个空间里,设计师利用内建筑的手法,力求解决办公场地内所需要的交通、构造及空间等问题。区域间的私密性与开放性,把人、物、空间通过设计组织成各种灵活的场景,将每个单元空间融合在一起,形成一个没有束缚的办公场所。整体空间以盒子作为主要框架,隔墙从盒子中穿插而出,与会议区的半围合矮墙,形成不同交汇的边界。

办公室-金麦道设计素材网www.ycpic (1).jpg办公室-金麦道设计素材网www.ycpic (3).jpg

粗胚混泥土作为顶面基调,结合清晰的材料和结构,元素之间看似孤立,却有着无限的张力。通过原始的粗犷与细腻的形态相互交叠,既对立而又不失协调。借用传统园林的透视、借景的手法,使得各个区域隔而不绝,身处其中可以感受到属于这个空间的独特的纵深感和层次感。

办公室-金麦道设计素材网www.ycpic (4).jpg办公室-金麦道设计素材网www.ycpic (5).jpg办公室-金麦道设计素材网www.ycpic (6).jpg办公室-金麦道设计素材网www.ycpic (7).jpg办公室-金麦道设计素材网www.ycpic (8).jpg办公室-金麦道设计素材网www.ycpic (9).jpg

空间的中心点设计了镜面不锈钢装置,在不同角度反射不一样的空间,将每个单元空间更好的融合在一起。盒子上方,利用剩余高度设置了休息区,巧妙地为无用之地创造了功能。办公桌与隔墙相互咬合,形成两个独立功能区域,机箱内嵌在桌面之内,保证了台面的整洁。想象需要包容,恰如造境需要空间,唯有思维无拘,即便身处果壳之中,仍有无限之可能。

办公室-金麦道设计素材网www.ycpic (10).jpg办公室-金麦道设计素材网www.ycpic (11).jpg办公室-金麦道设计素材网www.ycpic (12).jpg办公室-金麦道设计素材网www.ycpic (13).jpg办公室-金麦道设计素材网www.ycpic (14).jpg办公室-金麦道设计素材网www.ycpic (15).jpg办公室-金麦道设计素材网www.ycpic (16).jpg办公室-金麦道设计素材网www.ycpic (17).jpg办公室-金麦道设计素材网www.ycpic (18).jpg办公室-金麦道设计素材网www.ycpic (18).jpg

登录查看全部
唯有思维无拘仍有无限之可能-盒子办公室
素材ID号912复制ID号
166
  • 上传时间: 2023-03-28 13:36:18
  • 文件大小: 3.47M
  • 素材标签: 现代纹理办公室
  • 高清原图下载
  • 收藏
  • 分享
  • 他上传的材料
    028-86628548
  • 关于我们 网站协议 关于我们 联系我们 加入我们 业务拓展
  • 常见问题 上传要求 下载问题 充值支付 提现收益 帮助中心
  • 免责声明 本网站内容由用户自由上传,如权利人发现存在误传其作品情形,请及时与本站客服联系
  • 友情链接
  • 关注我们

    了解更多