注册 | 登录
今日更新:100
已为你搜索到以下结果 /没有搜到相关素材请加qq群704148082索取
极具艺术感染力的视觉盛宴-现代办公室
2023-03-29 10:02:42
现代工业办公室
规避视觉死角的L形展区设计,和展厅内预留的大量空间,充分展现了石材的美,也为观者创造了诸多自由体验的场景。此次颠覆传统的尝试中,本案设计的两大任务得到了完美解决,更带来了一场极具艺术感染力的视觉盛宴。

办公室-金麦道设计素材网www.ycpic (4).jpg办公室-金麦道设计素材网www.ycpic (3).jpg

近年来,随着人们环保意识的增强,岩板逐渐受到关注。德利作为石材定制品牌,除了天然大理石,也以先进的技术打造了成熟的岩板产品线。大理石和岩板如何在一个空间中平等对话,便成了展厅设计的首要任务。

二则,传统的销售场景中,常以一个个独立的空间强化产品的风格属性,有序但无趣。打破固化的知觉印象,弱化商业攻击性是设计的第二大任务。设计师便是带着这两大任务着手展厅设计的。

办公室-金麦道设计素材网www.ycpic (5).jpg办公室-金麦道设计素材网www.ycpic (6).jpg办公室-金麦道设计素材网www.ycpic (7).jpg办公室-金麦道设计素材网www.ycpic (12).jpg办公室-金麦道设计素材网www.ycpic (11).jpg

大理石是大自然的产物,设计师希望营造一个自然、开放的空间去承托展品,不论是设计,还是选材,皆以此为出发点。

办公室-金麦道设计素材网www.ycpic (8).jpg

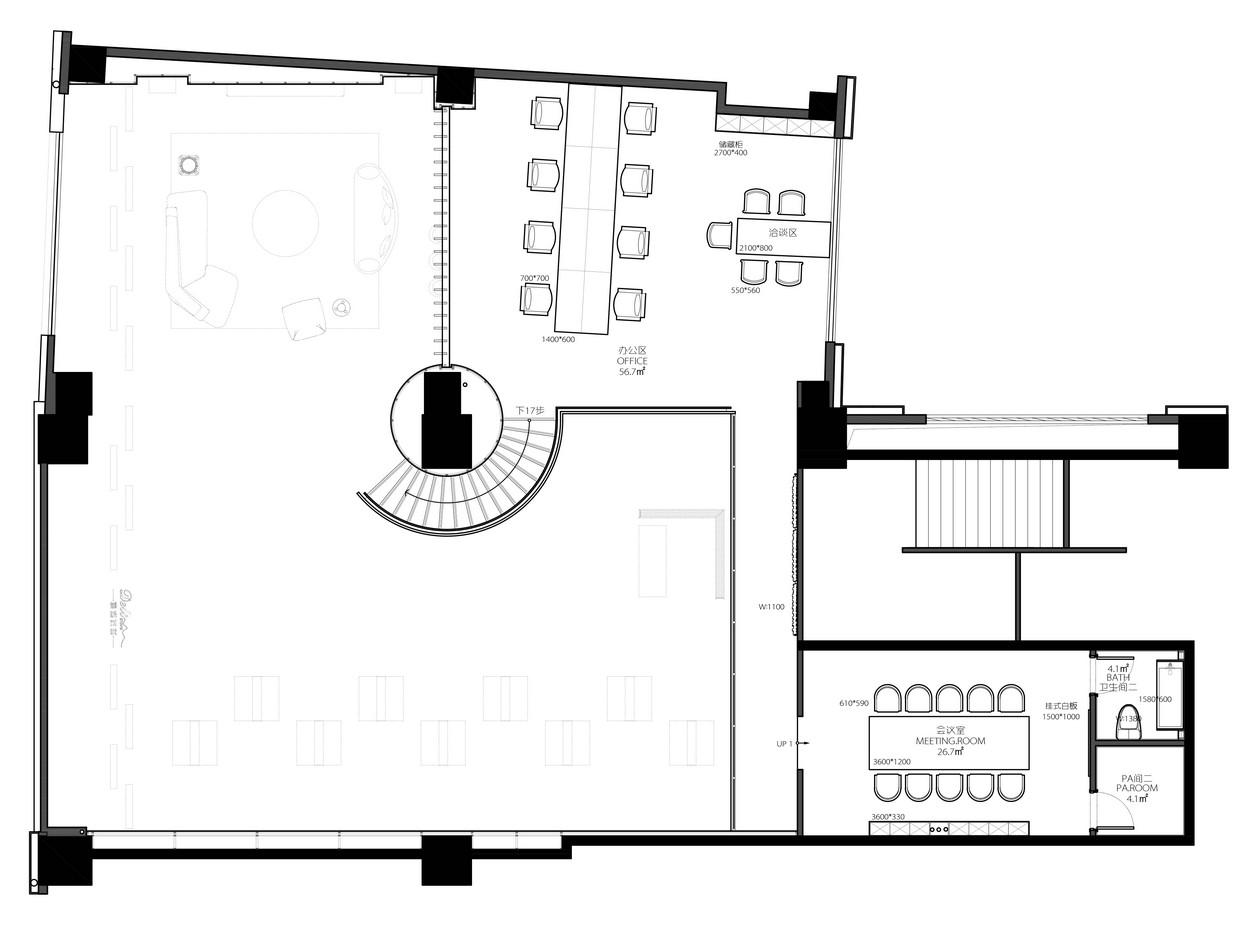
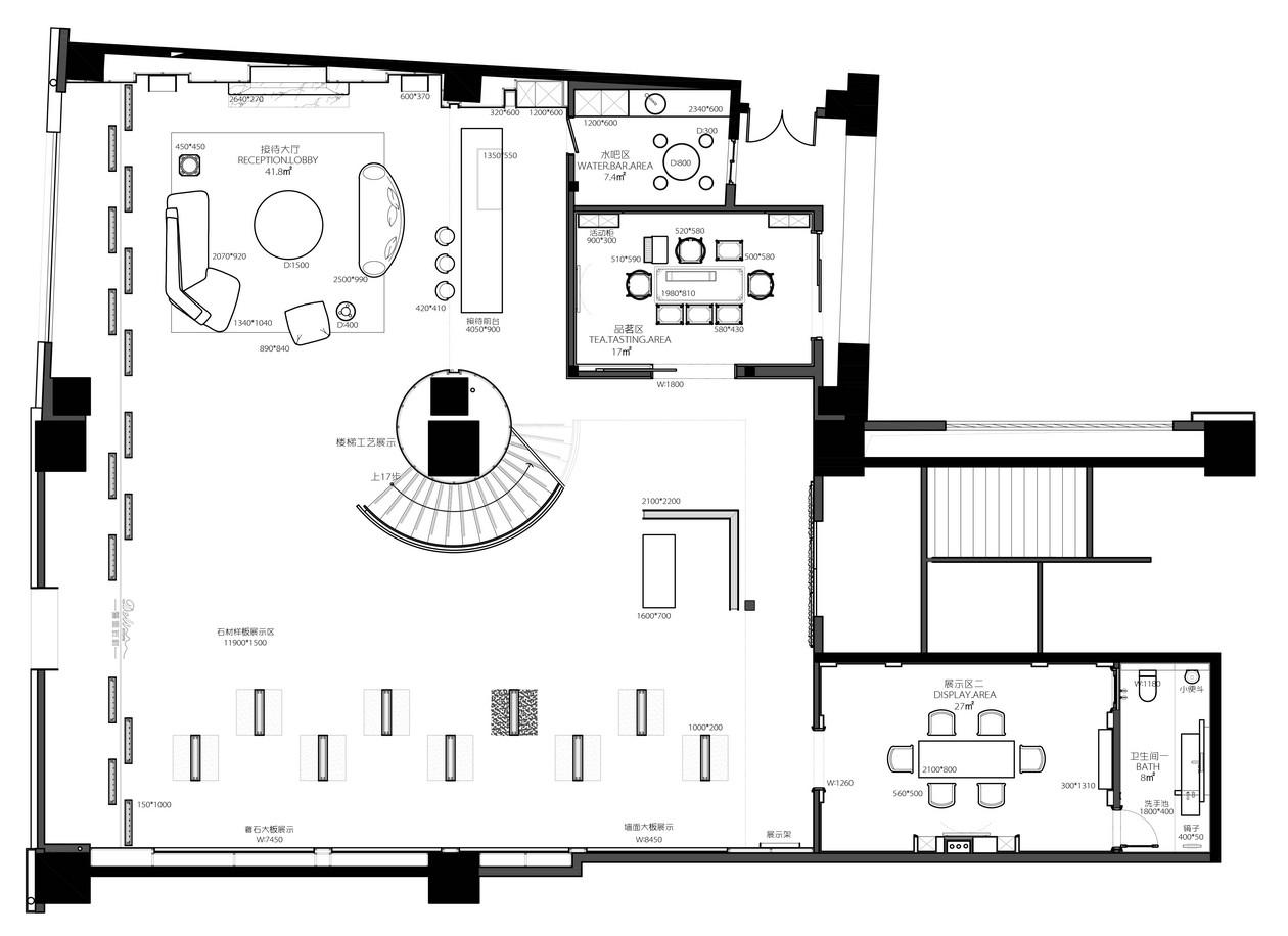
原始的建筑结构正中有一个方柱,设计师顺势将其修饰成圆柱,结合旋转楼梯形成轴心,连接展区与办公区,让空间开阔大气而又不至于一览无余,简单中的微妙转折,时刻更新着观者的视觉感受。

办公室-金麦道设计素材网www.ycpic (9).jpg办公室-金麦道设计素材网www.ycpic (10).jpg


办公室-金麦道设计素材网www.ycpic (13).jpg办公室-金麦道设计素材网www.ycpic (14).jpg办公室-金麦道设计素材网www.ycpic (15).jpg

空间氛围营造的难度,在于如何处理杂乱、过低的消防管和排污管。基于整体成本控制的考量,设计师采用了木质的几何体块在开放的天顶绵延展开,呼应倒转、起伏的山脉,既是对原有空间局限性的消解,也让自然主题更为明朗化。

办公室-金麦道设计素材网www.ycpic (16).jpg办公室-金麦道设计素材网www.ycpic (17).jpg办公室-金麦道设计素材网www.ycpic (24).jpg办公室-金麦道设计素材网www.ycpic (23).jpg
在地面,则选用了特殊水纹的花岗岩营造江河流淌之态。天为峰,地为水,而承接天与地的大理石和岩板为林,设计师打造了一个名为「峰林与海」的艺术馆,也是一个在传统销售场景环伺中标新立异的销售中心。
办公室-金麦道设计素材网www.ycpic (22).jpg办公室-金麦道设计素材网www.ycpic (21).jpg办公室-金麦道设计素材网www.ycpic (20).jpg办公室-金麦道设计素材网www.ycpic (19).jpg
办公室-金麦道设计素材网www.ycpic (18).jpg

登录查看全部
极具艺术感染力的视觉盛宴-现代办公室
素材ID号930复制ID号
160
  • 上传时间: 2023-03-29 10:02:42
  • 文件大小: 9.01M
  • 素材标签: 现代工业办公室
  • 高清原图下载
  • 收藏
  • 分享
  • 他上传的材料
    028-86628548
  • 关于我们 网站协议 关于我们 联系我们 加入我们 业务拓展
  • 常见问题 上传要求 下载问题 充值支付 提现收益 帮助中心
  • 免责声明 本网站内容由用户自由上传,如权利人发现存在误传其作品情形,请及时与本站客服联系
  • 友情链接
  • 关注我们

    了解更多