注册 | 登录
今日更新:100
已为你搜索到以下结果 /没有搜到相关素材请加qq群704148082索取
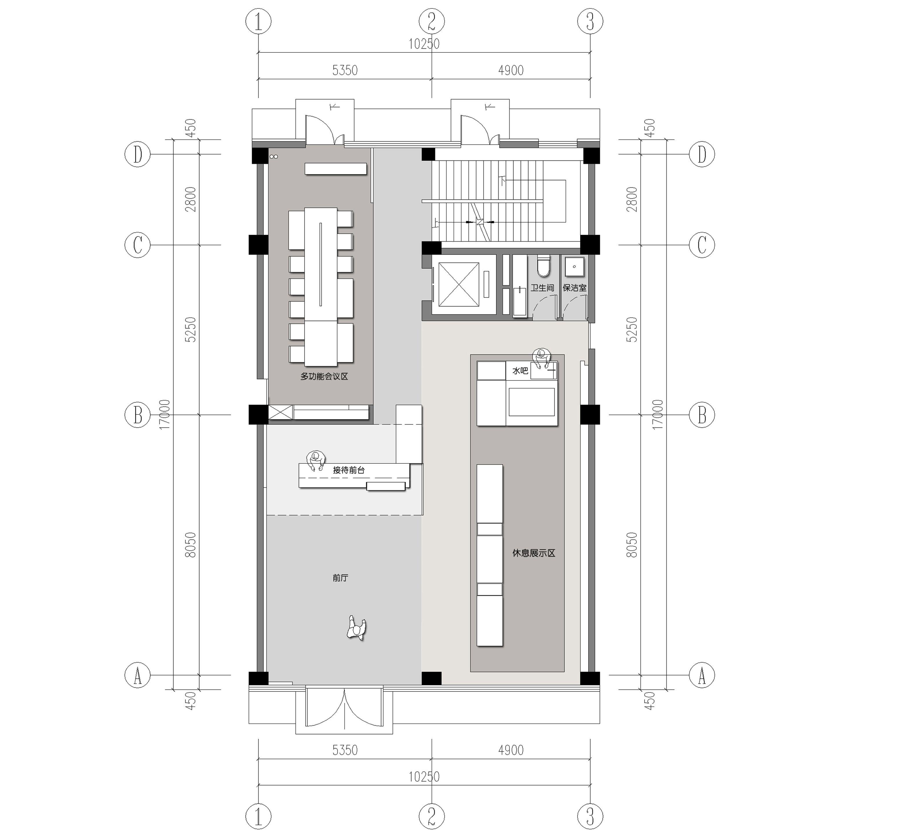
空间之间相互交融又相对独立-简约办公室
2023-03-29 16:39:56
简约开放办公室
在这次设计中我们预构建出一个开放、社群、高效、感性的办公空间,我们运用体块的空间穿插来改变动线关系和空间关系,从而让空间之间相互交融又相对独立,这也是我们对当下办公空间设计中一些思考的呈现。

办公室-金麦道设计素材网www.ycpic (3).jpg办公室-金麦道设计素材网www.ycpic (4).jpg办公室-金麦道设计素材网www.ycpic (5).jpg

在这次设计中我们预构建出一个开放、社群、高效、感性的办公空间,我们运用体块的空间穿插来改变动线关系和空间关系,从而让空间之间相互交融又相对独立,这也是我们对当下办公空间设计中一些思考的呈现。

办公室-金麦道设计素材网www.ycpic (6).jpg办公室-金麦道设计素材网www.ycpic (7).jpg办公室-金麦道设计素材网www.ycpic (8).jpg

一层设计中我们将二层的楼板部分去除,用活体绿植墙进行上下贯穿,增加一二层的互动关系,突出结构的空间特性。

办公室-金麦道设计素材网www.ycpic (9).jpg办公室-金麦道设计素材网www.ycpic (10).jpg

在办公家具的设计上我们考虑满足日常功能的基础上,尽量拓展其在不同使用状态下的更多可能性。工位吊灯的研发我们把磁吸灯灯槽进行改良与工位结合形成了现在的工位吊灯,内嵌的泛光源和点光源可根据不同使用者的喜好来进行更换。


办公室-金麦道设计素材网www.ycpic (11).jpg办公室-金麦道设计素材网www.ycpic (12).jpg办公室-金麦道设计素材网www.ycpic (13).jpg

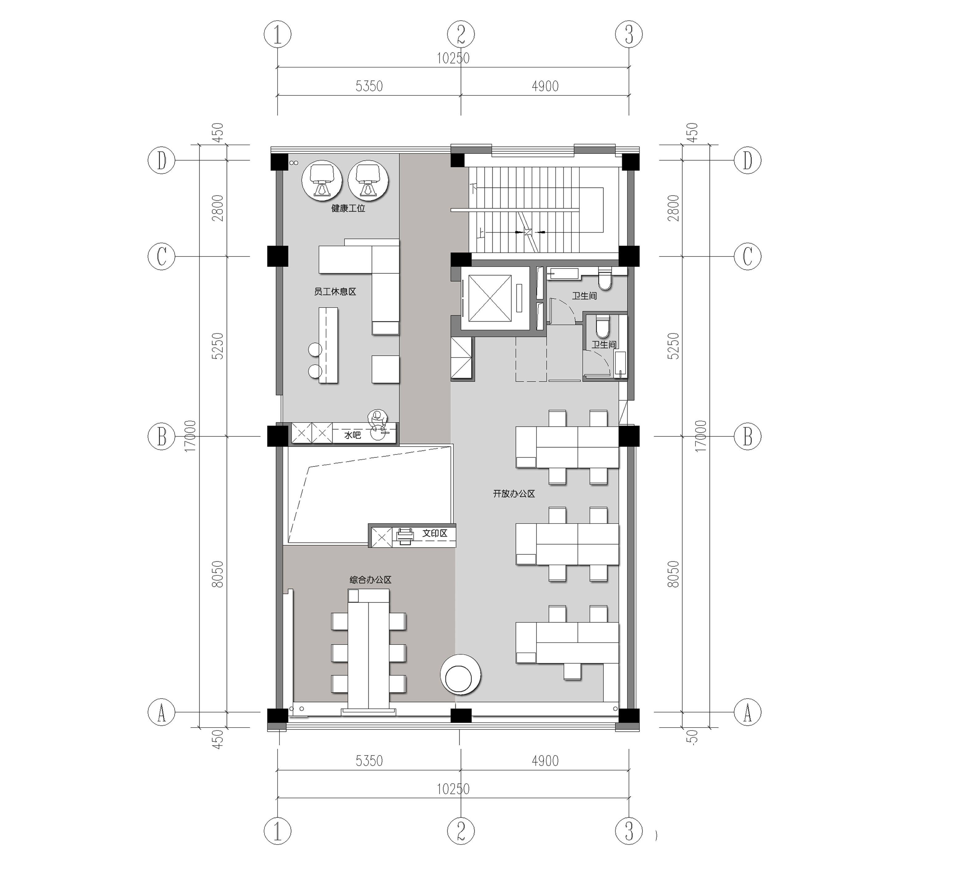
二层为敞开办公区,休息区健康办公工位的植入也点明我们愉悦办公的设计理念


办公室-金麦道设计素材网www.ycpic (14).jpg办公室-金麦道设计素材网www.ycpic (15).jpg办公室-金麦道设计素材网www.ycpic (16).jpg办公室-金麦道设计素材网www.ycpic (17).jpg办公室-金麦道设计素材网www.ycpic (18).jpg

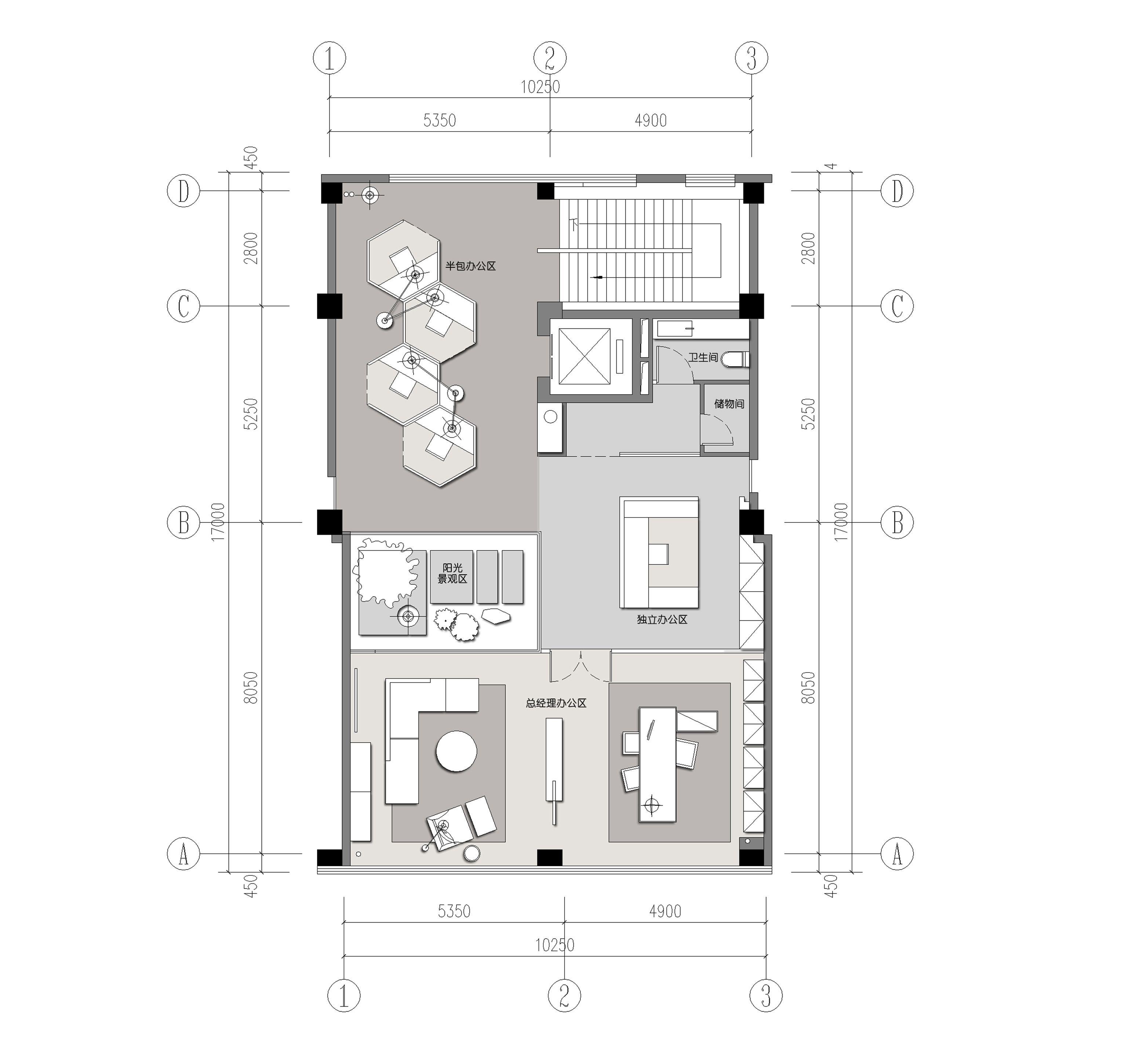
三层将原露台进行封闭,延展出景观区和总经理室休息区,顶面自然光线的引入将在室内形成不同的光影效果。


办公室-金麦道设计素材网www.ycpic (19).jpg办公室-金麦道设计素材网www.ycpic (20).jpg办公室-金麦道设计素材网www.ycpic (21).jpg

办公室-金麦道设计素材网www.ycpic (22).jpg办公室-金麦道设计素材网www.ycpic (23).jpg办公室-金麦道设计素材网www.ycpic (24).jpg

办公室-金麦道设计素材网www.ycpic (25).jpg办公室-金麦道设计素材网www.ycpic (26).jpg办公室-金麦道设计素材网www.ycpic (27).jpg办公室-金麦道设计素材网www.ycpic (28).jpg办公室-金麦道设计素材网www.ycpic (29).jpg

登录查看全部
空间之间相互交融又相对独立-简约办公室
素材ID号951复制ID号
140
  • 上传时间: 2023-03-29 16:39:56
  • 文件大小: 29.28M
  • 素材标签: 简约开放办公室
  • 高清原图下载
  • 收藏
  • 分享
  • 他上传的材料
    028-86628548
  • 关于我们 网站协议 关于我们 联系我们 加入我们 业务拓展
  • 常见问题 上传要求 下载问题 充值支付 提现收益 帮助中心
  • 免责声明 本网站内容由用户自由上传,如权利人发现存在误传其作品情形,请及时与本站客服联系
  • 友情链接
  • 关注我们

    了解更多