已为你搜索到以下结果 /没有搜到相关素材请加qq群704148082索取
新生与过去共鸣亦充满未知-侘寂办公室
2023-03-29 17:37:11
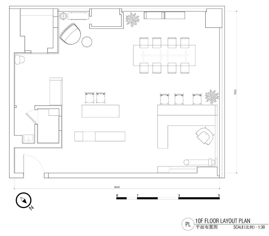
侘寂纹理办公室
未来,充满期许,亦在矛盾与冲突中充满着未知。


我们希望这是一个与我们共生的空间,彼此感知,共存…

每个人都有曾经的故事,空间亦如是。我们刻意保留了部分原有场所的表皮痕迹,让它述说着自己的故事。通过设计的打磨,呈现出新的表情。



我们希望通过场所展现出一种张力:新与旧,坚硬与柔和,粗糙与精细,明亮与昏暗,如我们的缩影,在矛盾与冲突去不断感知过去与未来。

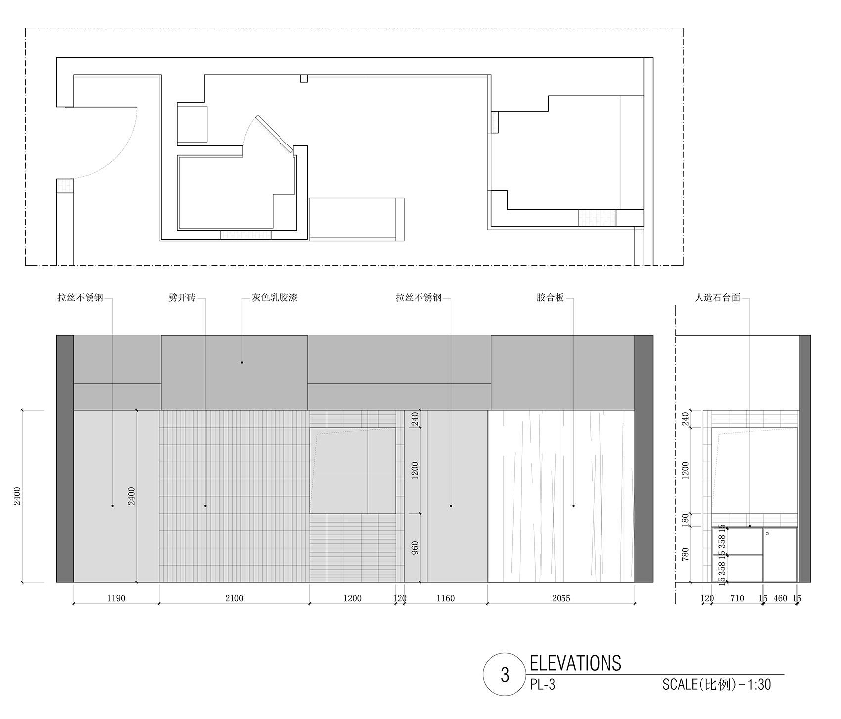
砖最为普通廉价的外墙劈开砖,我们希望通过铺贴方式的变化去重新发现它的价值与表情。

墙设计师铲除原墙面表皮的乳胶漆,刻意打磨出斑驳的肌理,让空间将它过往的故事娓娓道来。

木在有限的时间与造价的控制下,设计选择了常用于基层的胶合板,让其既作为基层材质,又作为饰面材质使用,在合理控制时间与造价的前提下,亦展现出其独温润的天然纹理与自然力量,糅合了新与旧所带来的冲突感。




金属硬冷的不锈钢,与粗糙的劈开砖,柔软的木质形成强烈的对比,映射出对未来的期许,对过去的共鸣。
光刻意降低整体空间的照度,强调室内温暖的重点照明,通过强烈的明暗对比,暗示出在矛盾与冲突中对未知的好奇与探求。








登录查看全部
新生与过去共鸣亦充满未知-侘寂办公室
素材ID号955复制ID号
147 上传时间: 2023-03-29 17:37:11 文件大小: 4.99M 素材标签: 侘寂纹理办公室
高清原图下载