注册 | 登录
今日更新:100
已为你搜索到以下结果 /没有搜到相关素材请加qq群704148082索取
细致地将未来感借由符号阐述-现代办公室
2023-03-30 10:24:02
开放艺术办公室
现代科技的发展与进步,使得人对空间维度的认知与认同愈加多元。则灵艺术坚持以用户对幸福的憧憬和美好想象为思考之源,设计尝试以形写意,喻意化形,突破科技、人文与自然的固有边界意识,游走于虚与实、光与影之间,细致地将未来感借由符号阐述一一实现,展呈出一个大胆、自由、开放、繁茂共生的科技办公新业态。

华讯方舟集团有限公司成立于1992年,是全球高速移动宽带网络通信行业的领军企业,为国内著名的移动宽带网络设备及相关增值业务供应商,是专注于空间通讯应用技术和移动宽带网络技术研发的国家级高新技术企业。
办公室-金麦道设计素材网www.ycpic (2).jpg办公室-金麦道设计素材网www.ycpic (1).jpg

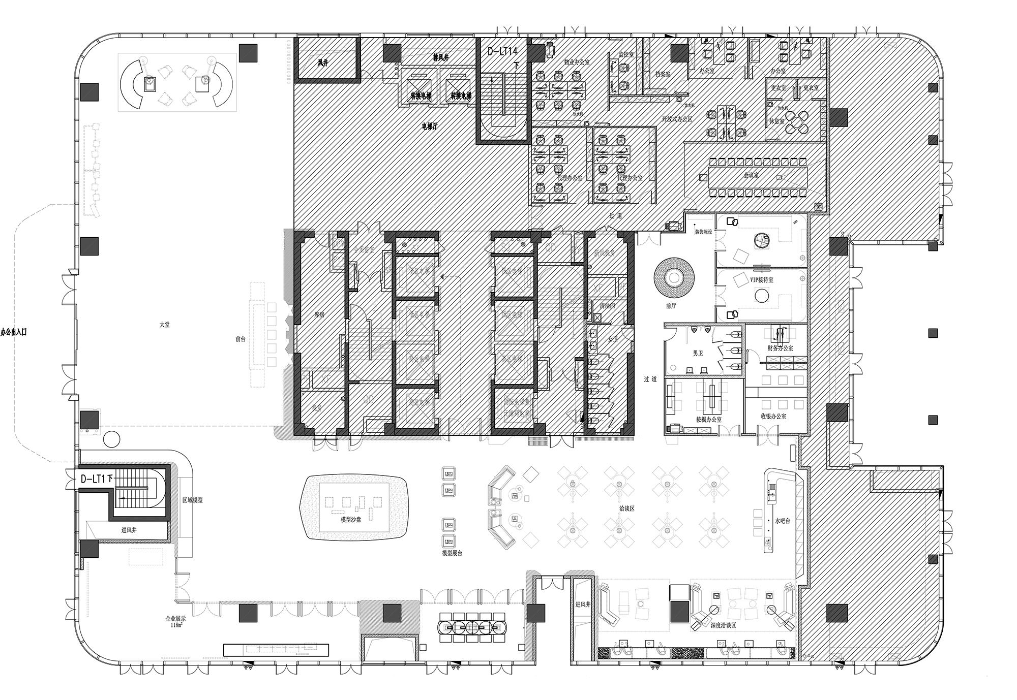
项目落址于深圳市宝安区铁仔山公园东麓,作为一个集接待中心、办公展示区、商务配套于一体的综合体,是中国乃至全球具有代表性的科创产业示范区。知名室内设计公司则灵艺术担纲“中国天谷·深圳”接待中心与办公中心示范区的软装设计。


办公室-金麦道设计素材网www.ycpic (3).jpg办公室-金麦道设计素材网www.ycpic (5).jpg办公室-金麦道设计素材网www.ycpic (6).jpg

则灵艺术于概念阶段就摒弃了传统办公思维方式,从产业园4.0时代的“云概念”着点、铺线、连面,探索科技、自然、人文之间的边界与外延,尝试在办公空间设计领域实现科技与自然的纯粹结合,以品质为先,打造出一个极具未来感、高度人性化的现代、高效、绿色的科技创新产业地标。


办公室-金麦道设计素材网www.ycpic (11).jpg办公室-金麦道设计素材网www.ycpic (12).jpg

在天谷接待中心,则灵艺术解构科技与人文、自然的边界,与集团秉承的“天人合一”理念一脉相承,设计俯拾星芒的诗意,明媚清澈地精呈品质,传递人文关怀。

办公室-金麦道设计素材网www.ycpic (14).jpg办公室-金麦道设计素材网www.ycpic (16).jpg办公室-金麦道设计素材网www.ycpic (17).jpg办公室-金麦道设计素材网www.ycpic (18).jpg

洽谈区、水吧台齐整有序的排列,构筑出一个自由开放的场域,空间整体以大幅纯净的白色调营造强烈的视觉感,设计借助简洁凝练的艺术语言,运用几何线条营造不拘一格、活力流动的至高质感,延展出空间流线型的视觉纵深体验,诠释科技元素与空间融合交汇的氛围,清澈而纯粹。

办公室-金麦道设计素材网www.ycpic (19).jpg办公室-金麦道设计素材网www.ycpic (20).jpg

水吧台的设计延续了以几何线条取胜、以层次砌合凸显视觉的手法,大小几何协调而统一,灯饰呈有序垂坠之姿,颗颗分明的露珠凌空定格,晶莹剔透,纳入不同角度的空间缩影,自微末而窥一隅之变景。

办公室-金麦道设计素材网www.ycpic (21).jpg办公室-金麦道设计素材网www.ycpic (22).jpg

深度洽谈区呈半私密围合状摆陈,以氤氲水墨蓝地毯为界区隔于其他功能分区,黑白蓝三色均衡分布,烘托出柔和沉静的舒适氛围,一个沉浸式的深谈空间场景搭建完成。

办公室-金麦道设计素材网www.ycpic (23).jpg办公室-金麦道设计素材网www.ycpic (24).jpg办公室-金麦道设计素材网www.ycpic (25).jpg

“一个具有未来感的空间,其间想象力和创造力是流动的,因此我们选择了浪漫的设计叙事,从大框架到小细节,漫谈宇宙与个人、已知与未知、具象与意象糅而不杂的美学营造,探讨科技在不同维度的边界与过渡,功能服务当下的需求,美陈折射未来的缩影”,设计师说。

办公室-金麦道设计素材网www.ycpic (26).jpg办公室-金麦道设计素材网www.ycpic (28).jpg办公室-金麦道设计素材网www.ycpic (29).jpg办公室-金麦道设计素材网www.ycpic (30).jpg办公室-金麦道设计素材网www.ycpic (31).jpg办公室-金麦道设计素材网www.ycpic (32).jpg

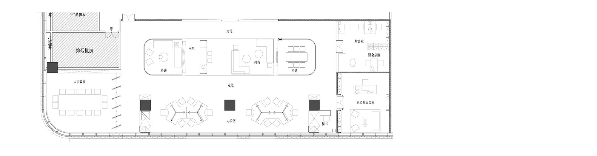
华讯方舟天谷大厦二层办公空间,是华讯方舟集团作为科技巨擘对未来先进办公模式的集成探索,旨在为品牌赋能,为员工实现生活与工作的愉悦感。设计提取有机的设计语言,打造高效、智能、愉悦的办公生态。

办公室-金麦道设计素材网www.ycpic (33).jpg办公室-金麦道设计素材网www.ycpic (34).jpg办公室-金麦道设计素材网www.ycpic (35).jpg办公室-金麦道设计素材网www.ycpic (36).jpg办公室-金麦道设计素材网www.ycpic (37).jpg办公室-金麦道设计素材网www.ycpic (38).jpg办公室-金麦道设计素材网www.ycpic (39).jpg办公室-金麦道设计素材网www.ycpic (40).jpg办公室-金麦道设计素材网www.ycpic (41).jpg办公室-金麦道设计素材网www.ycpic (43).jpg办公室-金麦道设计素材网www.ycpic (44).jpg

以线为材料,其千丝万缕以延伸、辐射、穿插、交织的姿态,又经黑与白、明与暗的调和,装进一幅艺术装置中,透过栩栩如生的意象表达,得窥纷繁缭乱信息网络的一角,科技的符号自视觉冲击力中漫溢出来。

办公室-金麦道设计素材网www.ycpic (45).jpg办公室-金麦道设计素材网www.ycpic (46).jpg办公室-金麦道设计素材网www.ycpic (47).jpg办公室-金麦道设计素材网www.ycpic (48).jpg办公室-金麦道设计素材网www.ycpic (49).jpg办公室-金麦道设计素材网www.ycpic (50).jpg办公室-金麦道设计素材网www.ycpic (52).jpg办公室-金麦道设计素材网www.ycpic (54).jpg办公室-金麦道设计素材网www.ycpic (55).jpg办公室-金麦道设计素材网www.ycpic (56).jpg办公室-金麦道设计素材网www.ycpic (57).jpg

办公室-金麦道设计素材网www.ycpic (58).jpg办公室-金麦道设计素材网www.ycpic (59).jpg办公室-金麦道设计素材网www.ycpic (60).jpg办公室-金麦道设计素材网www.ycpic (61).jpg

登录查看全部
细致地将未来感借由符号阐述-现代办公室
素材ID号960复制ID号
118
  • 上传时间: 2023-03-30 10:24:02
  • 文件大小: 96.02M
  • 素材标签: 开放艺术办公室
  • 高清原图下载
  • 收藏
  • 分享
  • 他上传的材料
    028-86628548
  • 关于我们 网站协议 关于我们 联系我们 加入我们 业务拓展
  • 常见问题 上传要求 下载问题 充值支付 提现收益 帮助中心
  • 免责声明 本网站内容由用户自由上传,如权利人发现存在误传其作品情形,请及时与本站客服联系
  • 友情链接
  • 关注我们

    了解更多