注册 | 登录
今日更新:100
已为你搜索到以下结果 /没有搜到相关素材请加qq群704148082索取
空间并非填充物体的容器是居所-洛伊办公室
2023-03-30 13:54:33
简约元素办公室
空间并非填充物体的容器,而是人类意识的居所。我们所要关心的不是房屋形式或舒适与否的分析,我们想要研究的实际上是很简单的形象,就是幸福空间的形象。

001前厅.jpg002前厅.jpg

如何让工作与生活的界限在一个空间里消融,如何使共事的人与人之间回归简单朴实的交流,是南宁格洛伊办公室的设计诉求。这与超级平常崇尚"容易被忽视却能真正改变生活"的简约理念不谋而合。他们提取自然、简单、色彩、童趣等关键词,构建了一个具多功能和情感联结的办公生态。 格洛伊项目面积500m2,建筑层高5.09m,超级平常团队遵从了结构顾问的建议,计算出最轻薄又坚固的楼板搭建两层空间,并优化结构柱与墙体的位置布局,创造出敞亮通透的空间且达到使用面积的最大化。

003接待前区.jpg004前台.jpg005前台细节.jpg

不加修饰的白净墙面和大面积的落地门窗为通高的公共空间奠定简洁的基调,红黄蓝色块穿插跳跃于地毯、家具和配饰,色系之间的微妙转换恰到好处,赋予纯白空间丰富的表情却不觉凌乱。

006开放办公区.jpg007公区细节.jpg

永生苔藓绿墙充当巨幅挂画,更为空间注入大自然鲜活的生命力。 灵动开敞的空间使用方式满足了员工对固定工位或共享工位的自由选择,精心考量布置的沟通交流区域将室内弱化成一个环境背景,人作为空间的核心释放自己的能量,重获孩提时的好奇无惧。

008公区.jpg009公区.jpg010公区.jpg011公区.jpg012公区.jpg013公区.jpg014脑力激荡.jpg

从全世界搜罗而来的现代家具经典之作分布在五百平米的空间中,其卓绝的工艺水平与永恒的美学价值成为当下的灵感源,驱动每个人细微的内心感触和真实的情绪表达。 室内的灯光设计不乏亮点,公共区域以桌上灯照明解决超高层高照明问题,顶部大角度轨道射灯注重防眩,多层蜂窝网让每一个座位都感受不到炫光。所有独立办公室天花未做任何灯具,仅靠上下发光落地灯来解决照明,创造最柔和的环境光,即使长时间工作也不致视觉疲劳。  

015公区.jpg016办公桌细节.jpg

简约是在无形中弱化各种繁琐,但每一个细小局部都深思熟虑。超级平常以基于基本形式的整合设计,表达和影响产品与空间、空间与人以及人与人之间的多种可能性,让平常变得非比寻常。

017会议室.jpg018会议室.jpg019会议室.jpg020会议室地面细节.jpg

021二层走廊.jpg022二层走廊.jpg023二层办公室.jpg024二层办公室.jpg025二层脑力激荡.jpg

026二层中空装置.jpg027二层CEO办公室.jpg028CEO办公室.jpg029CEO办公室.jpg030CEO办公室.jpg031CEO办公室.jpg032CEO办公室.jpg033CEO办公室.jpg034CEO办公室.jpg

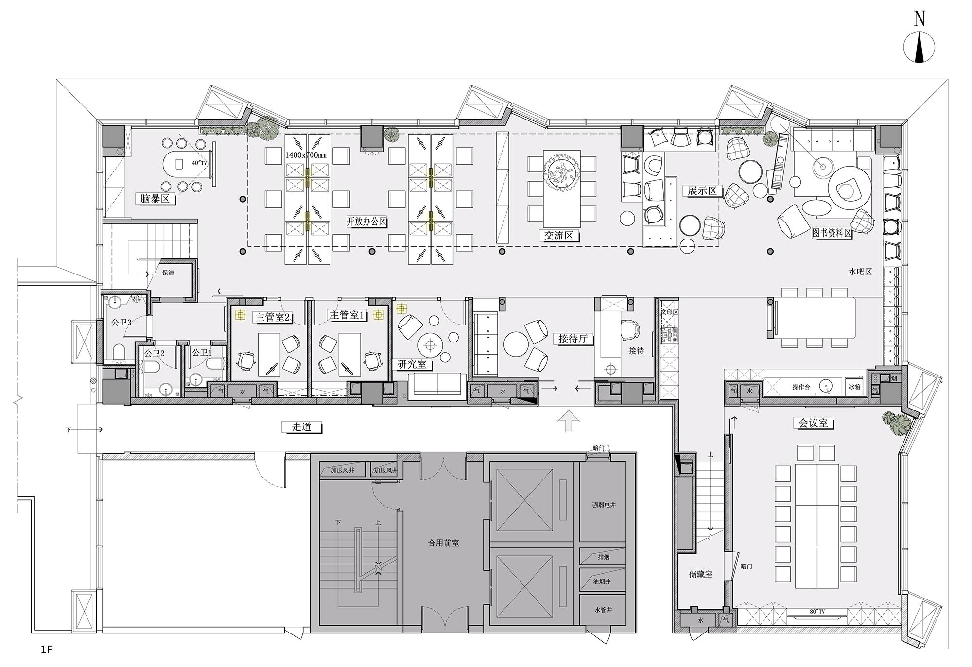
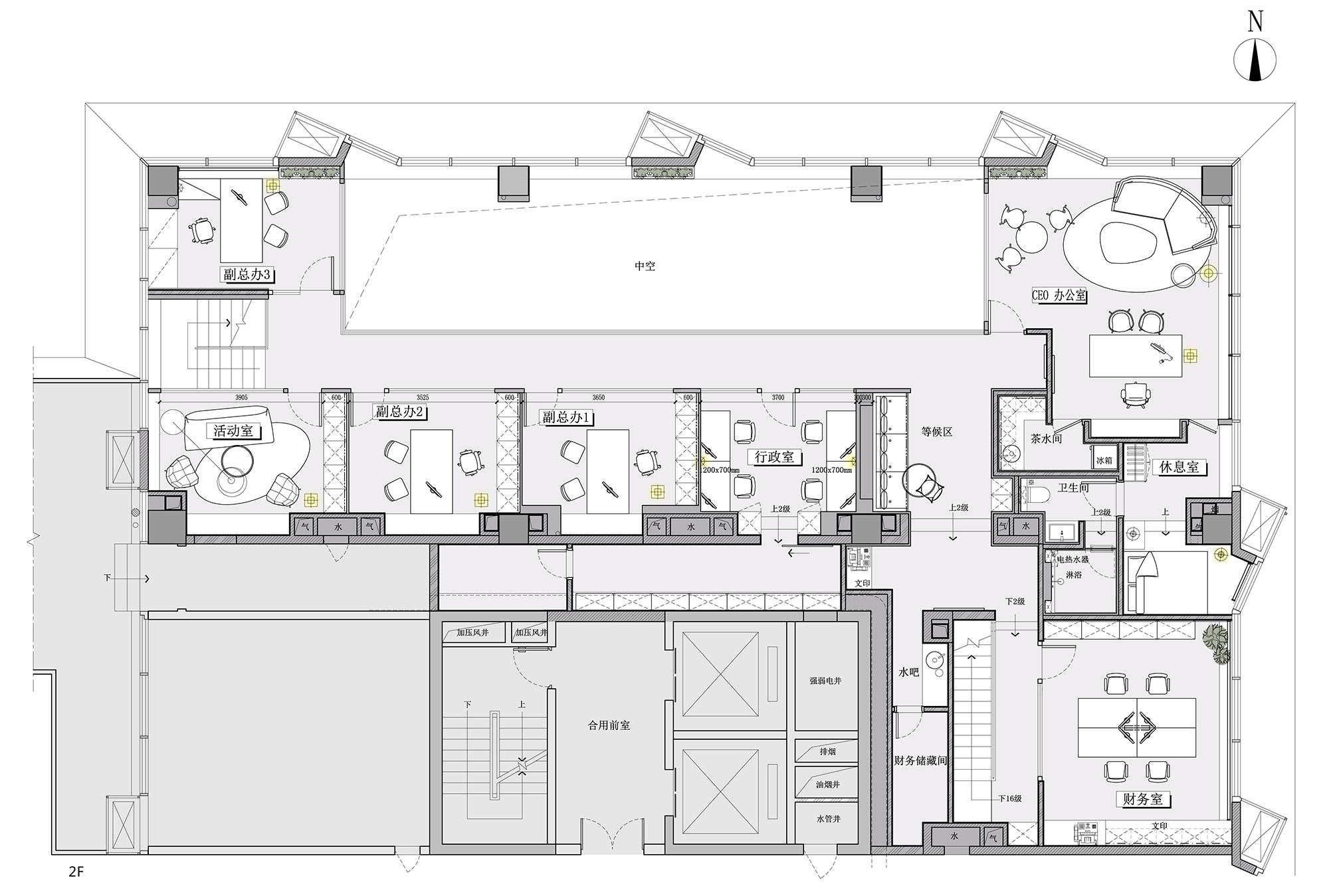
035洗手间.jpg036洗手间.jpg平面图1F.jpg平面图2F.jpg

登录查看全部
空间并非填充物体的容器是居所-洛伊办公室
素材ID号970复制ID号
131
  • 上传时间: 2023-03-30 13:54:33
  • 文件大小: 43.24M
  • 素材标签: 简约元素办公室
  • 高清原图下载
  • 收藏
  • 分享
  • 他上传的材料
    028-86628548
  • 关于我们 网站协议 关于我们 联系我们 加入我们 业务拓展
  • 常见问题 上传要求 下载问题 充值支付 提现收益 帮助中心
  • 免责声明 本网站内容由用户自由上传,如权利人发现存在误传其作品情形,请及时与本站客服联系
  • 友情链接
  • 关注我们

    了解更多