注册 | 登录
今日更新:100
已为你搜索到以下结果 /没有搜到相关素材请加qq群704148082索取
精细化的空间与整体气质的营造-燕屋工作室
2023-03-30 14:54:59
极简暖调办公室
以干净利落、具有整体性的设计表达,对原有劣势结构进行功能上的拆解与视觉整合,完成了空间建筑感的构造;以精细化的空间布局、材质与灯光的处理与整体气质的营造,为客户带来一个完整、平衡的解决方案与另一层次的空间感受。

办公室-金麦道设计素材网www.ycpic (11).jpg

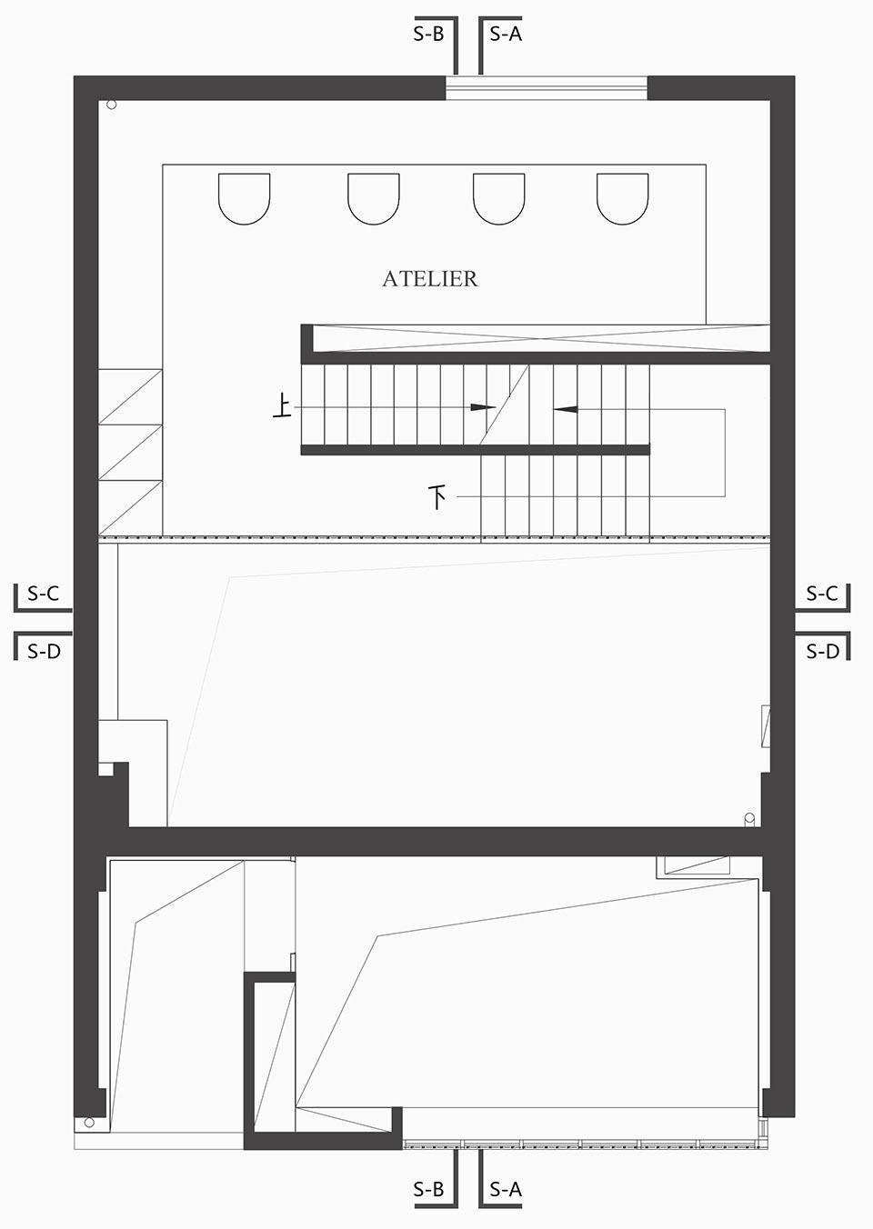
对于一个建筑面积60平米、高度9米的loft空间,设计师通过对于真实的现状的考量与理性思考,包括品牌自身的状态、客户对于空间的功能诉求、能够支撑的预算以及现有空间的劣势,提供一个整合性的解决方案:在空间外立面,设计师在合理范围内做了挑出部分的设计,使门廊部分的空间有所延展。由侧门而入的设计,保留了入口休息区的完整性,营造出小庭院的独立空间感。

办公室-金麦道设计素材网www.ycpic (1).jpg办公室-金麦道设计素材网www.ycpic (2).jpg办公室-金麦道设计素材网www.ycpic (3).jpg

门廊与中庭之间的拱门构造,解决了原有劣势结构,以利落的弧度带来内外兼修的张力与平衡;中庭由开放的吧台与舒适的餐桌划分为产品制作与体验两个区域,墙面嵌入产品陈列的部分,营造出品牌的秩序感与日常的仪式感。以干净利落、具有整体性的设计表达,对原有劣势结构进行功能上的拆解与视觉整合,完成了空间建筑感的构造;以精细化的空间布局、材质与灯光的处理与整体气质的营造,为客户带来一个完整、平衡的解决方案与另一层次的空间感受。

办公室-金麦道设计素材网www.ycpic (4).jpg办公室-金麦道设计素材网www.ycpic (5).jpg办公室-金麦道设计素材网www.ycpic (6).jpg

中庭层高与楼梯入口低矮的部分形成反差,形成错落有致的空间纵深感。通往二楼是一个狭长的楼道,二楼设计部沿通道路线而推展开,与一楼中庭上下贯通,形成既独立又开阔的视野。三楼办公室以落地窗户与户外区域的自然衔接,带来充足的阳光与通透的视觉感受。

办公室-金麦道设计素材网www.ycpic (7).jpg办公室-金麦道设计素材网www.ycpic (10).jpg

通过对于真实现状的考量、合理的空间布局与功能构造,进行设计的整合与表达,为客户提供一个不止于形式感,更注重实际运转中的可行性、人的有效参与及使用感受的空间解决方案。

办公室-金麦道设计素材网www.ycpic (8).jpg办公室-金麦道设计素材网www.ycpic (9).jpg办公室-金麦道设计素材网www.ycpic (12).jpg办公室-金麦道设计素材网www.ycpic (13).jpg办公室-金麦道设计素材网www.ycpic (14).jpg办公室-金麦道设计素材网www.ycpic (15).jpg办公室-金麦道设计素材网www.ycpic (16).jpg办公室-金麦道设计素材网www.ycpic (17).jpg

登录查看全部
精细化的空间与整体气质的营造-燕屋工作室
素材ID号974复制ID号
137
  • 上传时间: 2023-03-30 14:54:59
  • 文件大小: 2.88M
  • 素材标签: 极简暖调办公室
  • 高清原图下载
  • 收藏
  • 分享
  • 他上传的材料
    028-86628548
  • 关于我们 网站协议 关于我们 联系我们 加入我们 业务拓展
  • 常见问题 上传要求 下载问题 充值支付 提现收益 帮助中心
  • 免责声明 本网站内容由用户自由上传,如权利人发现存在误传其作品情形,请及时与本站客服联系
  • 友情链接
  • 关注我们

    了解更多