注册 | 登录
今日更新:100
已为你搜索到以下结果 /没有搜到相关素材请加qq群704148082索取
开敞通透具有时代感趣味性的-极简办公室
2023-03-30 15:26:44
极简开放工业室内办公室
本设计采用建筑设计方法处理室内空间,为使用者提供了多种空间模式及体验。如能让空间的标识性和趣味性汇聚于此,并被人们逐渐接受和喜爱,也就实现了设计的初衷。

办公室-金麦道设计素材网www.ycpic (1).jpg办公室-金麦道设计素材网www.ycpic (2).jpg办公室-金麦道设计素材网www.ycpic (3).jpg办公室-金麦道设计素材网www.ycpic (5).jpg

项目位于上海市西虹桥片区北斗产业技术园内,为独栋式办公楼顶层空间,原建筑格局为传统中廊式办公模式,建筑层高介于5至6米之间,四面墙面采用传统竖条窗设计。甲方希望在改善建筑的采光、通风等物理性能之外,还能创造一个开敞通透、具有时代感、带有面向未来的趣味性的办公场所。

办公室-金麦道设计素材网www.ycpic (6).jpg办公室-金麦道设计素材网www.ycpic (7).jpg办公室-金麦道设计素材网www.ycpic (8).jpg办公室-金麦道设计素材网www.ycpic (9).jpg

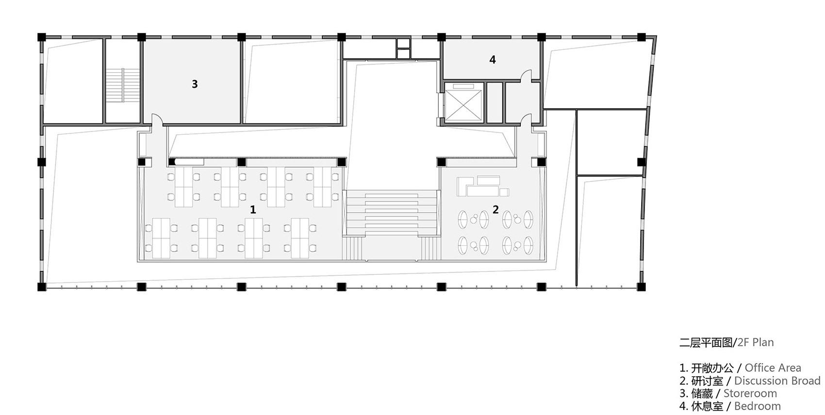
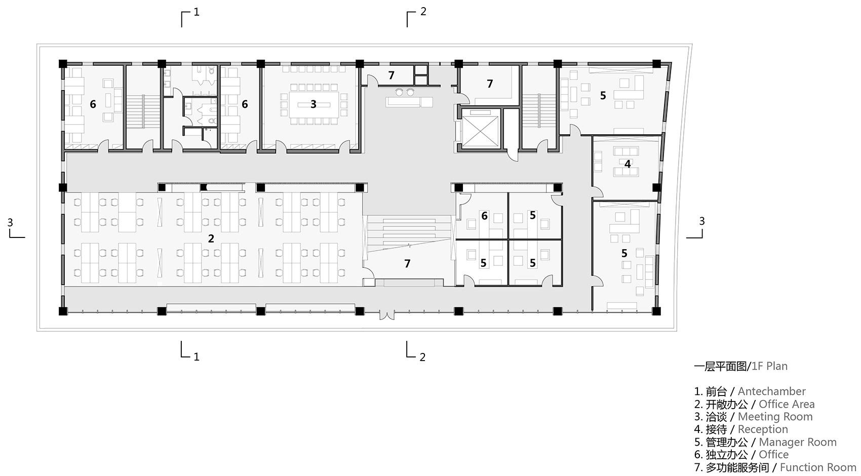
设计之初,首先将本层建筑朝南外墙整体改造为全落地玻璃幕墙窗,以此改善室内的采光及通风情况。室内改造设计概念从水平向空间整合和垂直向空间拓展出发,重新组织了水平十字形公共交通空间,同时也划分了开敞办公及独立办公之间的区域。地面材料以深浅区分不同使用功能,设计充分利用层高优势植入夹层空间,同时隐匿原建筑结构体系。

办公室-金麦道设计素材网www.ycpic (10).jpg办公室-金麦道设计素材网www.ycpic (11).jpg

经过对功能的整理,划分出水平和垂直两个不同的空间体验,并由一个硕大的木质感十字形态进行空间控制,所有的交通流线都围绕着十字形展开。这个十字横亘在通高空间之中,在隐藏结构的同时清晰表达出了空间的使用逻辑,最终希望能让空间的物质体验和精神感受达到统一与和谐,也给这个强调科技与创造力的场所引入了一个精神上的标识和图腾。

办公室-金麦道设计素材网www.ycpic (12).jpg办公室-金麦道设计素材网www.ycpic (13).jpg

为了消解巨大的木质十字带来的封闭感,也为了给空间增添一些活力和趣味性,设计中用竖向格栅增加墙体的通透性,南侧玻璃幕墙引入的光线穿过格栅空隙撒入公共走廊,人行其中可与开敞办公区增添些许互动。木质十字中还隐藏了一个滑梯,二楼办公的人员可以通过滑梯快捷地到达底层。穿过滑梯时,两侧的格栅所带来的朦胧光影变化和暧昧的视线联系,创造出了全新的体验。据悉,在使用过程中,十字中隐藏的滑梯很受欢迎,办公人员常经此下楼,在工作间隙里增添了不少乐趣。

办公室-金麦道设计素材网www.ycpic (14).jpg办公室-金麦道设计素材网www.ycpic (15).jpg办公室-金麦道设计素材网www.ycpic (16).jpg办公室-金麦道设计素材网www.ycpic (17).jpg办公室-金麦道设计素材网www.ycpic (18).jpg

办公室-金麦道设计素材网www.ycpic (19).jpg办公室-金麦道设计素材网www.ycpic (20).jpg办公室-金麦道设计素材网www.ycpic (21).jpg

登录查看全部
开敞通透具有时代感趣味性的-极简办公室
素材ID号976复制ID号
132
  • 上传时间: 2023-03-30 15:26:44
  • 文件大小: 7.61M
  • 素材标签: 极简开放工业室内办公室
  • 高清原图下载
  • 收藏
  • 分享
  • 他上传的材料
    028-86628548
  • 关于我们 网站协议 关于我们 联系我们 加入我们 业务拓展
  • 常见问题 上传要求 下载问题 充值支付 提现收益 帮助中心
  • 免责声明 本网站内容由用户自由上传,如权利人发现存在误传其作品情形,请及时与本站客服联系
  • 友情链接
  • 关注我们

    了解更多