注册 | 登录
今日更新:100
已为你搜索到以下结果 /没有搜到相关素材请加qq群704148082索取
简单的网格变为工业装饰元素-工业办公室
2023-03-31 10:39:41
极简工业办公室
钢格栅被拆解,形成一种新的模式,从一个简单的网格变为工业风格的花边装饰元素

办公室-金麦道设计素材网www.ycpic (2).jpg办公室-金麦道设计素材网www.ycpic (3).jpg

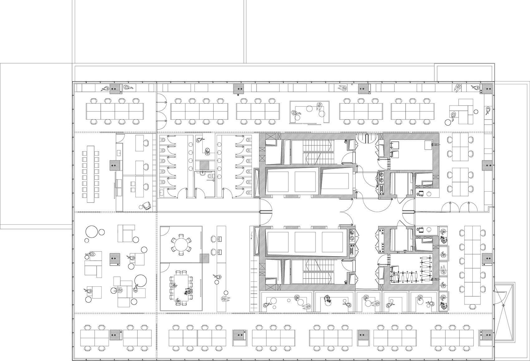
PerimeterX是一家年轻的高科技公司,专门从事预防和抵御恶性网络行为。公司在旧金山及以色列都设有办公室,它在以色列的新总部位于特拉维夫市中心一座新建高层建筑中,占据了整个22层。在办公空间内部,人们能够以360度的视野欣赏城市景观及海景。

办公室-金麦道设计素材网www.ycpic (4).jpg办公室-金麦道设计素材网www.ycpic (5).jpg

设计概念来自网格化的平面。空间划分为不同体块以及在封闭空间和独立元素之间的通道路径。几乎所有的员工都在一个开放式的空间中工作,封闭房间围绕着建筑核心,开放空间工作站作为独立元素布置在空间中心。因此,建筑边缘幕墙不受阻挡,整个空间都拥有绝佳的观景视野和光线。两个大型会议室是中央公共空间中,唯一设计成独立透明盒子的封闭体量。

办公室-金麦道设计素材网www.ycpic (6).jpg办公室-金麦道设计素材网www.ycpic (7).jpg

▼建筑边缘幕墙不受阻挡,整个空间都拥有绝佳的观景视野和光线

办公室-金麦道设计素材网www.ycpic (8).jpg办公室-金麦道设计素材网www.ycpic (9).jpg办公室-金麦道设计素材网www.ycpic (10).jpg

▼封闭房间围绕着建筑核心

办公室-金麦道设计素材网www.ycpic (11).jpg办公室-金麦道设计素材网www.ycpic (12).jpg办公室-金麦道设计素材网www.ycpic (13).jpg办公室-金麦道设计素材网www.ycpic (14).jpg办公室-金麦道设计素材网www.ycpic (15).jpg办公室-金麦道设计素材网www.ycpic (16).jpg办公室-金麦道设计素材网www.ycpic (17).jpg办公室-金麦道设计素材网www.ycpic (18).jpg


登录查看全部
简单的网格变为工业装饰元素-工业办公室
素材ID号991复制ID号
118
  • 上传时间: 2023-03-31 10:39:41
  • 文件大小: 5.09M
  • 素材标签: 极简工业办公室
  • 高清原图下载
  • 收藏
  • 分享
  • 他上传的材料
    028-86628548
  • 关于我们 网站协议 关于我们 联系我们 加入我们 业务拓展
  • 常见问题 上传要求 下载问题 充值支付 提现收益 帮助中心
  • 免责声明 本网站内容由用户自由上传,如权利人发现存在误传其作品情形,请及时与本站客服联系
  • 友情链接
  • 关注我们

    了解更多