注册 | 登录
今日更新:100
已为你搜索到以下结果 /没有搜到相关素材请加qq群704148082索取
带着憧憬找寻如同星辰一般的人生-现代办公室
2023-04-06 12:06:30
现代简约肌理室内办公室
过去、现在、未来,每个时期都有着不同的心境,带着憧憬找寻如星辰一般的人生。

设计研究的是人与空间的关系,但空间的时间性也同样值得关注。当人与人的关系趋于疏离而缺少安全感,过去的记忆线索就成为了潜在的情感共鸣触发器。对于在都市打拼的职场人,校园是人生路上走过的重要一站。无数次交叠编织过一个个“美好”,关于未来,关于希望,也关于遗憾和错过,都化为青春的记忆和人文的情怀。

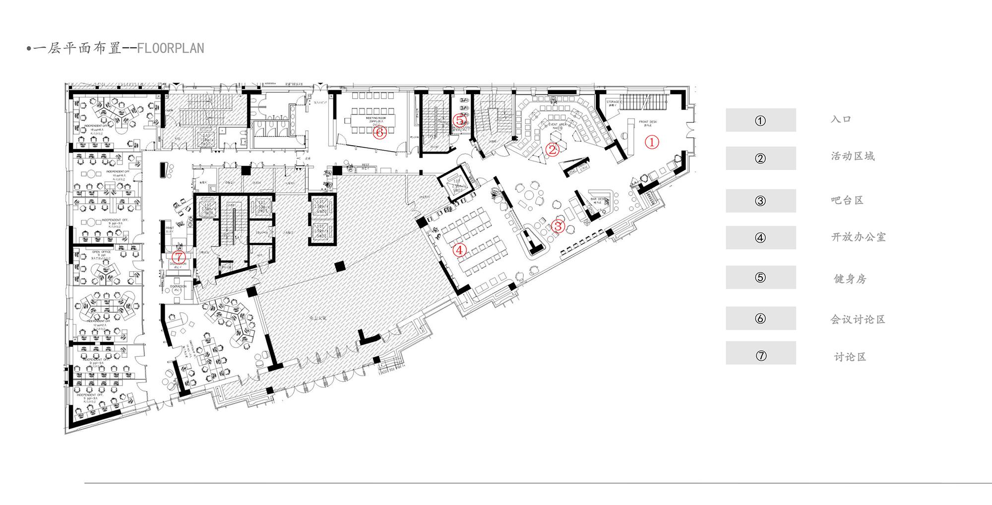
034 入户大门.jpg一层平面.jpg

芳华的年纪,知己为伴,窗外……只消闭上眼睛,那幅画面便携带着青春独有的穿透力渗入脑海,熟悉得就如在刚刚醒来的梦中。西堤红山联合办公项目位于北京西城区,由深圳千寻进行软装设计。

02 入户接待区1.jpg03 一楼前台.jpg

设计思路来源于充满青春与梦想的校园时代,针对80,90后的感受视角,让使用者基于空间材质、光影、感知的情境演绎而化身为“时光旅人”。情怀是每一个人心中的悸动,把记忆里的感触设计在“时光旅人”的场景中,当踏上这所空间里的长廊,视线所观的任何一个角落,都将勾勒出你曾青春洋溢的过往,和现在阳光普照的当下。

04 入户接待区2.jpg01 过道3.jpg

“时光旅人”将会是在漫长的旅途中,让人沉迷的一道光。共享式的办公空间将以自己的方式呈现出城市文化脉络的过去、现在和未来。新的空间传递出浓厚的时光底蕴,并巧妙结合充满青春活力的设计和搭配,将这里打造成面向未来世界的门户。

05 一层吧台区2.jpg06 一层吧台区.jpg07 一层吧台区1.jpg08 一层活动区.jpg

复式的设计,如演出的戏剧,一出方罢那方又起。这里让人感觉有趣的的地方,对于将发生的事情,旁观者没有感觉,它仅仅是对象物与主体两者间的“私事”。

09一层打印区.jpg010  一层小会议室.jpg011 一层办公区.jpg

稚真之气尚未经历沧桑,心智的羽翼却已渐丰,向上的生命力在这别具一格的设计里悄然绽放。当漫步在犹如时光隧道一样的长廊时,仿佛时间倒流,梦醒在刚踏入校园的那一刻。透过窗折射进来的光,映照在一行行溢出的书本上,呈现的不止是记忆,也是印入眼帘的情怀烙印。

012 一层过道.jpg013 一层休息区.jpg014 一层会议室过道3.jpg015 一层会议室过道2.jpg016 一层会议室过道.jpg

新+旧的空间碰撞,现在进行时和过去式的视觉冲击,创造出浓厚的情感氛围。无论是在工作还是偶尔的闲暇之际,弥漫在这空间里的气息,都将把你带入象牙塔一般的身临其境。

017 入户接待区.jpg018 大堂上方.jpg

在木质、金属、大理石构建的几何界面中,每一种肌理、色彩,让所见并不止于静态。

019 二层入口1.jpg020 二层讨论区 (3).jpg021 二层讨论区.jpg022 二层讨论区2.jpg

这是人生的过往,也是通往远方的旅途,而旅程上的风景,铸造了不同的灵魂,承载了过去和未来,在此时此刻与我们相见。

023 二层开放办公区.jpg024 二层开放办公区1.jpg025 过道.jpg

026 二层打印区.jpg027 二层打印区 (2).jpg

028 二层吧台区.jpg029 二层多功能区.jpg030 二层多功能区1.jpg031 二层过道2.jpg032 二层过道.jpg
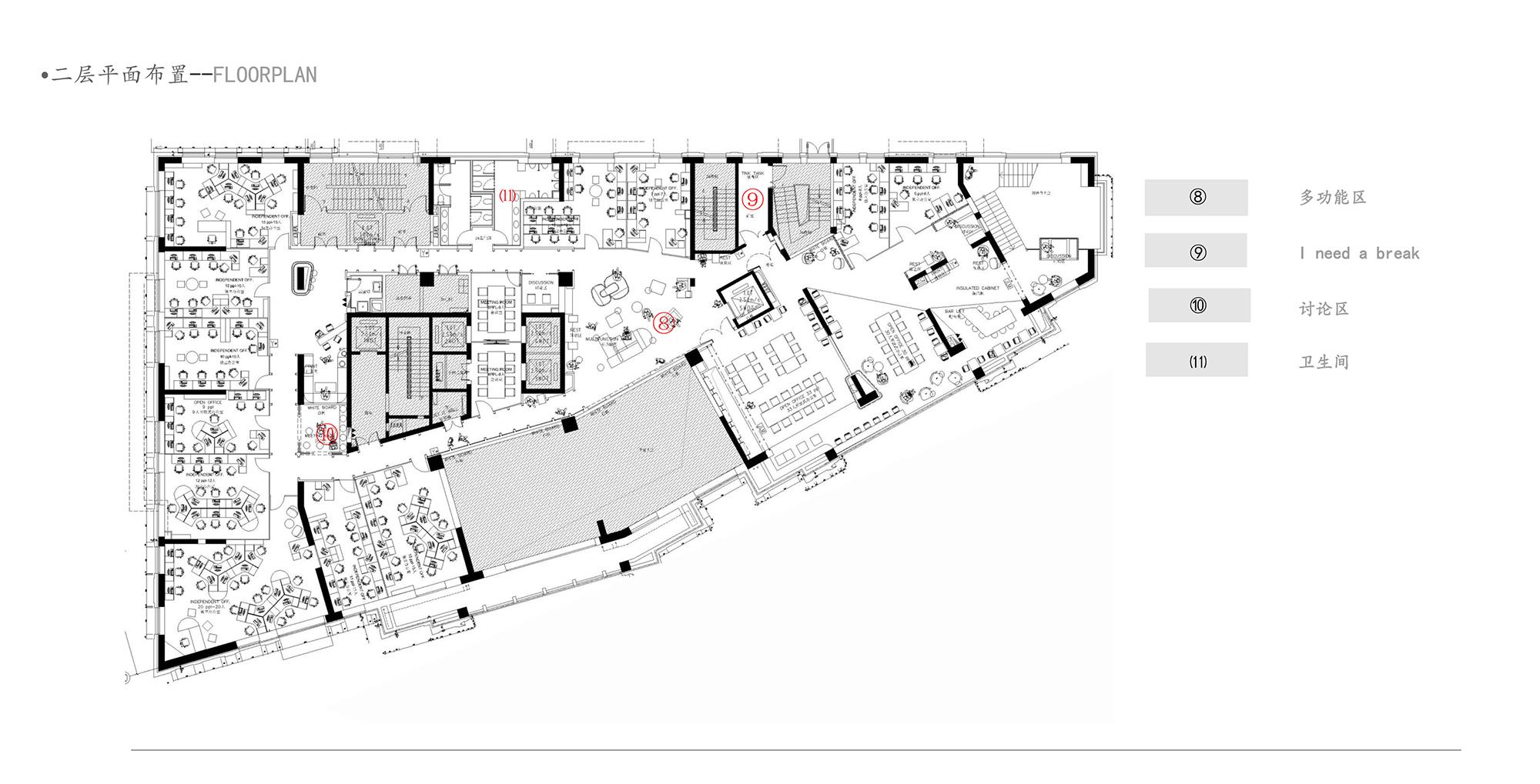
033 洗手间.jpg二层平面.jpg


登录查看全部
带着憧憬找寻如同星辰一般的人生-现代办公室
素材ID号1067复制ID号
275
  • 上传时间: 2023-04-06 12:06:30
  • 文件大小: 71.78M
  • 素材标签: 现代简约肌理室内办公室
  • 高清原图下载
  • 收藏
  • 分享
  • 他上传的材料
    028-86628548
  • 关于我们 网站协议 关于我们 联系我们 加入我们 业务拓展
  • 常见问题 上传要求 下载问题 充值支付 提现收益 帮助中心
  • 免责声明 本网站内容由用户自由上传,如权利人发现存在误传其作品情形,请及时与本站客服联系
  • 友情链接
  • 关注我们

    了解更多