注册 | 登录
今日更新:100
已为你搜索到以下结果 /没有搜到相关素材请加qq群704148082索取
开放的家庭空间便捷安逸舒适温馨-现代办公室
2023-04-06 13:34:27
现代工业办公室
空间内部的设计产生于主人深沉的爱和他对团队的关心以及整个团队共同的目标。因此,它拥有开放的家庭空间便捷安逸的特点。舒适温馨的厨房、浴室设施和休息区都是这一特点的体现。

办公室-金麦道设计素材网www.ycpic  (5).jpg办公室-金麦道设计素材网www.ycpic  (6).jpg

伴随着阁楼元素和乌克兰艺术的暖色调,极简派艺术在这间工作室里创造出了很特别的氛围,它就像一面镜子,反映出主人的内心世界。对于建筑师的办公环境设计的关键在于设计师制定出的方案要能和客户的需求相吻合。

办公室-金麦道设计素材网www.ycpic  (7).jpg办公室-金麦道设计素材网www.ycpic  (8).jpg

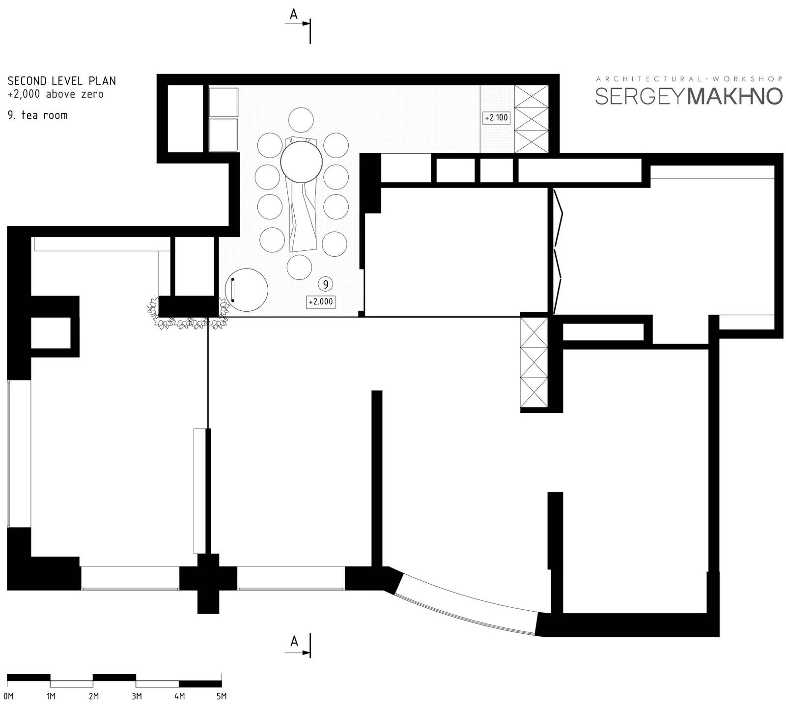
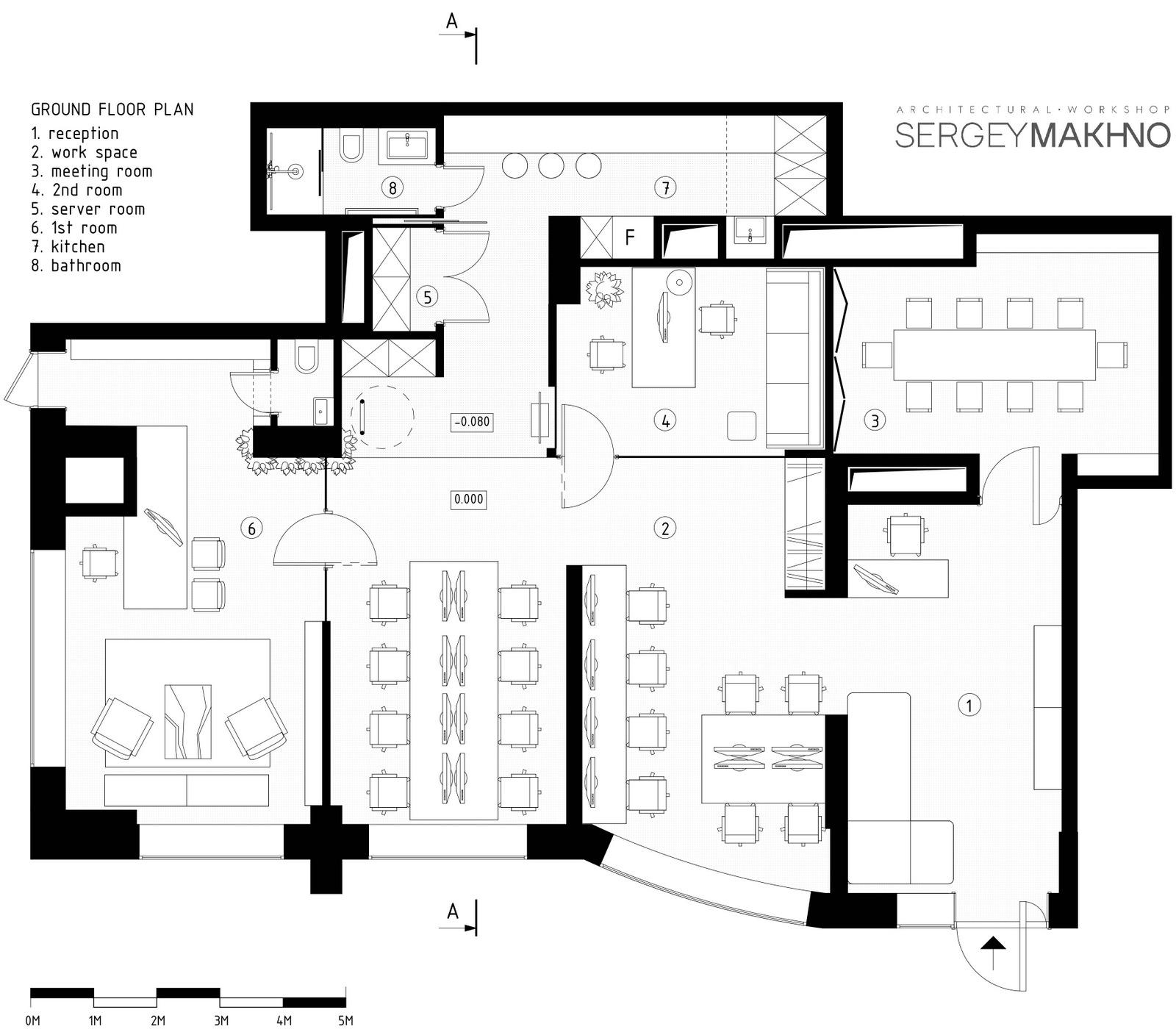
事务所的总面积有200平方米,整体分为两个区域:一个陈列室和一个办公休息区。Sergey说:“我想创造一个空间,它不仅能激发我的团队设计灵感,还要能带给我的客户启发。我们希望客户能够勇敢的接受挑战,大胆的尝试新颖的构思。”

办公室-金麦道设计素材网www.ycpic  (9).jpg办公室-金麦道设计素材网www.ycpic  (10).jpg办公室-金麦道设计素材网www.ycpic  (11).jpg

在设计事务所的时候,Makhno用了他最喜欢的一些材料,比如混凝土、石头、玻璃、金属铜、青铜制品、各个品种的木材、高品质日本东陶制成的卫生器具和设备以及德国美诺公司的厨房用具。

办公室-金麦道设计素材网www.ycpic  (12).jpg办公室-金麦道设计素材网www.ycpic  (13).jpg办公室-金麦道设计素材网www.ycpic  (14).jpg办公室-金麦道设计素材网www.ycpic  (15).jpg

乌克兰颇有天赋的雕刻家和艺术家的作品给具有极简抽象派艺术特色的工作室造就了一种特殊的气氛。极具文艺气息的装饰品和家具的混合使用完成了一个远远超过办公室的环境,它更像乌克兰设计产品和艺术品的独特陈列室。

办公室-金麦道设计素材网www.ycpic  (16).jpg办公室-金麦道设计素材网www.ycpic  (17).jpg办公室-金麦道设计素材网www.ycpic  (18).jpg办公室-金麦道设计素材网www.ycpic  (19).jpg办公室-金麦道设计素材网www.ycpic  (20).jpg办公室-金麦道设计素材网www.ycpic  (21).jpg

事务所里确实存在这样一间独特的陈列室,里面拥有乌克兰动物形陶器的丰富馆藏,它们和简洁的混凝土墙壁还有Marc Newson以整张钢板弯制而成的鲜明的“Auflet chairs”和谐的共处于一室。其实,乌克兰的陶器制造术从古时候就开始发展。一件件由多才多艺的大师们制造的陶器传播到了世界各地。乌克兰的陶瓷工艺揭露了这个国家技术和才能的历史。Makhno把从乌克兰各个不同的角落挑选出的独一无二的陶器成功得带回了事务所,这一件件琳琅满目的陶瓷制品就是他私人陶器收藏的荣誉象征。

办公室-金麦道设计素材网www.ycpic  (22).jpg办公室-金麦道设计素材网www.ycpic  (23).jpg办公室-金麦道设计素材网www.ycpic  (24).jpg办公室-金麦道设计素材网www.ycpic  (25).jpg办公室-金麦道设计素材网www.ycpic  (26).jpg



登录查看全部
开放的家庭空间便捷安逸舒适温馨-现代办公室
素材ID号1068复制ID号
270
  • 上传时间: 2023-04-06 13:34:27
  • 文件大小: 11.53M
  • 素材标签: 现代工业办公室
  • 高清原图下载
  • 收藏
  • 分享
  • 他上传的材料
    028-86628548
  • 关于我们 网站协议 关于我们 联系我们 加入我们 业务拓展
  • 常见问题 上传要求 下载问题 充值支付 提现收益 帮助中心
  • 免责声明 本网站内容由用户自由上传,如权利人发现存在误传其作品情形,请及时与本站客服联系
  • 友情链接
  • 关注我们

    了解更多