注册 | 登录
今日更新:100
已为你搜索到以下结果 /没有搜到相关素材请加qq群704148082索取
脉络传承艺术中心-场馆
2023-10-07 10:44:24
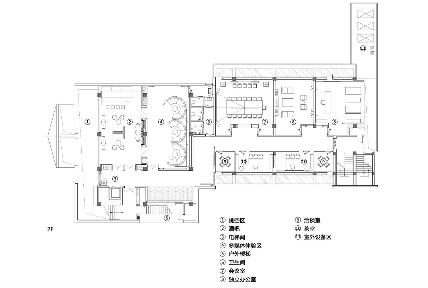
现代室内场馆
一个具有丰富文化记忆和历史精神的空间。

1.jpg2.jpg3.jpg4.jpg5.jpg


北京文化艺术中心是位于胡同里的一个独特建筑,通过将传统与现代相结合的设计手法,创造出一个具有丰富文化记忆和历史精神的空间。


6.jpg7.jpg8.jpg9.jpg10.jpg11.jpg12.jpg13.jpg14.jpg15.jpg16.jpg17.jpg18.jpg18.jpg

建筑外观采用法国高纤维水泥和风洞式参数化设计,白天展现光影效果,夜晚通过投影创造新的建筑空间。


21.jpg22.jpg23.jpg24.jpg25.jpg26.jpg27.jpg28.jpg29.jpg30.jpg31.jpg32.jpg33.jpg34.jpg35.jpg36.jpg37.jpg38.jpg40.jpg41.jpg42.jpg43.jpg44.jpg45.jpg46.jpg47.jpg48.jpg49.jpg

登录查看全部
脉络传承艺术中心-场馆
素材ID号1138复制ID号
156
  • 上传时间: 2023-10-07 10:44:24
  • 文件大小: 36.22M
  • 素材标签: 现代室内场馆
  • 高清原图下载
  • 收藏
  • 分享
  • 他上传的材料
    028-86628548
  • 关于我们 网站协议 关于我们 联系我们 加入我们 业务拓展
  • 常见问题 上传要求 下载问题 充值支付 提现收益 帮助中心
  • 免责声明 本网站内容由用户自由上传,如权利人发现存在误传其作品情形,请及时与本站客服联系
  • 友情链接
  • 关注我们

    了解更多