注册 | 登录
今日更新:100
已为你搜索到以下结果 /没有搜到相关素材请加qq群704148082索取
溧水山林驿站-场馆
2023-10-07 10:54:59
现代驿站场馆
与自然环境交织在一起。

1.jpg2.jpg


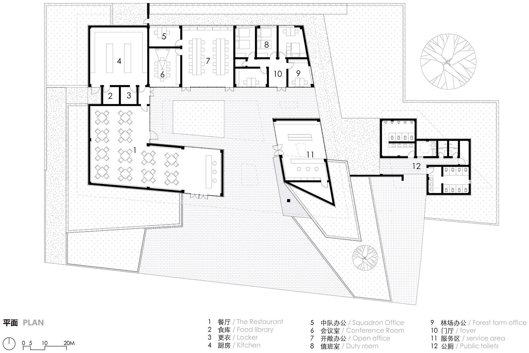
溧水山林驿站位于南京市溧水区无想山国家森林公园,场地环境优美,拥有丰富的植被和迷人的山林景色。该驿站是对原有林场中队办公场所的重建,同时拓展了小型售卖服务、游客咨询和休憩等功能,成为园区管理和游览的重要节点。


3.jpg4.jpg5.jpg


设计以合院为原型,将功能拆分成对内和对外空间,通过交错咬合的L型坡屋面和螺旋转折的檐廊,形成了具有传统山林意向的屋面体量。景观地台和屋面的交错折叠成为组织空间的主体,与后山相互错位,补足了场地山体的缺陷,实现了建筑与环境的融合。


6.jpg7.jpg8.jpg9.jpg10.jpg11.jpg12.jpg


青瓦和毛石等材料的选择在视线焦点上形成堆叠,突出材质肌理,与环境相协调。溧水山林驿站是一个融合传统氛围和现代空间体验的建筑,与自然环境交织在一起。


13.jpg14.jpg15.jpg16.jpg17.jpg18.jpg18.jpg19.jpg20.jpg21.jpg22.jpg23.jpg24.jpg

登录查看全部
溧水山林驿站-场馆
素材ID号1139复制ID号
166
  • 上传时间: 2023-10-07 10:54:59
  • 文件大小: 9.84M
  • 素材标签: 现代驿站场馆
  • 高清原图下载
  • 收藏
  • 分享
  • 他上传的材料
    028-86628548
  • 关于我们 网站协议 关于我们 联系我们 加入我们 业务拓展
  • 常见问题 上传要求 下载问题 充值支付 提现收益 帮助中心
  • 免责声明 本网站内容由用户自由上传,如权利人发现存在误传其作品情形,请及时与本站客服联系
  • 友情链接
  • 关注我们

    了解更多