注册 | 登录
今日更新:100
已为你搜索到以下结果 /没有搜到相关素材请加qq群704148082索取
海韵新居-民宿
2023-12-14 14:18:32
民宿室内度假
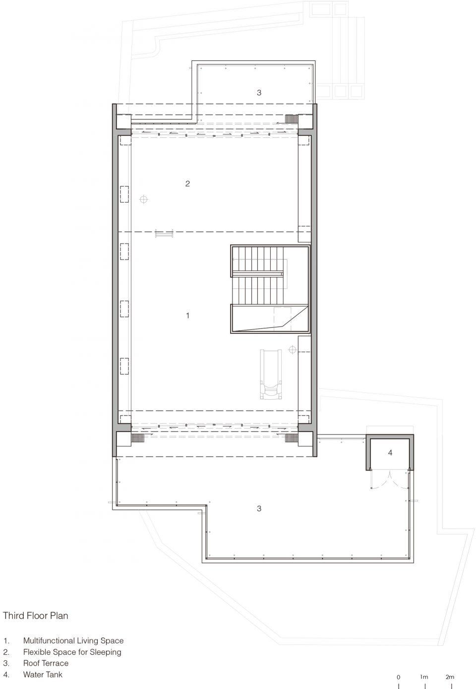
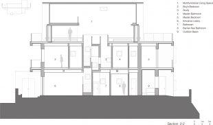
“融合与创新”。

保留原有砖墙结构的基础上,通过添加一层混凝土墙,实现了加固和加建的需求,同时也为改善空间品质提供了更多可能性。这种策略体现了“融合”的理念,即尊重和保留原有建筑的特点,同时注入新的元素和功能。

210345jdeadoyavovnohoa.jpg210549xyatynncx5ta5yzg.jpg210632jly32otty66rhtzh.jpg210634cb77q74wbq34w4gm.jpg210637y673e37e5lkl8mfg.jpg210639jvd9dy9fu4niqyiv.jpg210650ne2x4kekj44v6epl.jpg210653k1ujm03tvvoytncr.jpg210654vt04c4d7cuwiwtu5.jpg210701t2x4b2y1pjafjbe5.jpg210703h07hkenzrxkfq3kq.jpg210710tzo5zfd5xnxlx3q5.jpg210712ylpo2dkklyqpqpep.jpg210713xyfcxwynjjviuz8f.jpg210714n5kj647j6mjjjqtt.jpg210715tg3gi99gu3cgslgi.jpg210716plmio33qo1msisi3.jpg210717s2hh222aaas22494.jpg210718a5pla4ggttzaatz5.jpg210720znnzvr0sr9qmuqv4.jpg210723rw8iz2iwm8zowvyy.jpg210724lp70mqvvhh47qc37.jpg210725qtt1ghy1dsvtdst1.jpg210727q5soegxgsxexsbss.jpg210729zljyojs0lyszyyjt.jpg210730fwp7vunly2s0r50w.jpg210732xvu32ndd61e6ed38.jpg210747e2d2tjzdrch2d8uj.jpg210750emqo9xr41yzyko9m.jpg210752d7369quqq6uhj4y9.jpg210753hfa66da6shl5zmsl.jpg210755iq0vvrgs3r9acw0x.jpg210756ap42svp2ozpdpdbz.jpg210757bfjt9rdlrfj50z4z.jpg

登录查看全部
海韵新居-民宿
素材ID号1198复制ID号
172
  • 上传时间: 2023-12-14 14:18:32
  • 文件大小: 3.39M
  • 素材标签: 民宿室内度假
  • 高清原图下载
  • 收藏
  • 分享
  • 他上传的材料
    028-86628548
  • 关于我们 网站协议 关于我们 联系我们 加入我们 业务拓展
  • 常见问题 上传要求 下载问题 充值支付 提现收益 帮助中心
  • 免责声明 本网站内容由用户自由上传,如权利人发现存在误传其作品情形,请及时与本站客服联系
  • 友情链接
  • 关注我们

    了解更多