注册 | 登录
今日更新:100
已为你搜索到以下结果 /没有搜到相关素材请加qq群704148082索取
栖山漓景-民宿
2023-12-14 14:53:51
民宿室内度假
自然与历史的交织。

自然融合、历史传承、室内外交流。


1 (1).png1 (2).png1 (3).png1 (4).png1 (5).png1 (6).png

新餐厅除了采用一个低调的钢框架结构,玻璃主门和窗户,在与本地采购的粗磨石块,木炭的木制百叶窗和赤陶屋顶瓦片提供丰富的触觉体验。空间之间的对话和连续性在旧和新之间碰撞。

1 (7).png1 (8).png1 (9).png1 (10).png1 (11).png1 (12).png

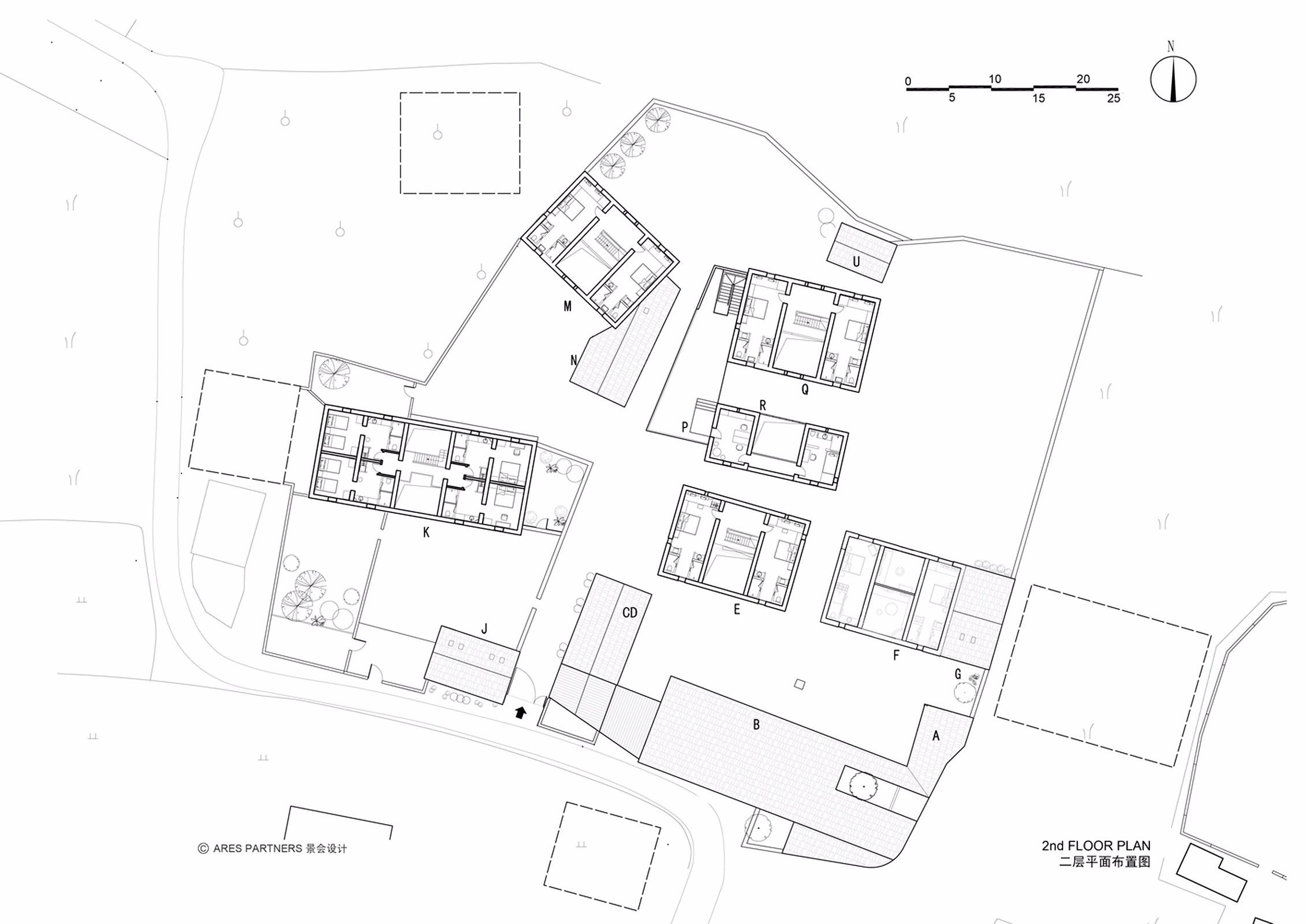
人与人之间的对话,光和景观空间交织引起客人的深思熟虑。典型的布局是由四个客房共有一个住所和生活空间的中心。竹子、木材、镀锌钢、混凝土和卵石主要用于室内空间。

1 (13).png1 (14).png1 (15).png1 (16).png1 (17).png1 (18).png

大部分的木梁和现有木门被翻新,在这个项目中重点运用。我们的目的是把自然中宁静的气氛进入室内空间,室内室外互相交流。

1 (19).png1 (20).png1 (21).png1 (22).png1 (23).png1 (24).png1 (25).png1 (26).png1 (27).png1 (28).png1 (29).png1 (30).png1 (31).png1 (32).png1 (33).png

登录查看全部
栖山漓景-民宿
素材ID号1199复制ID号
176
  • 上传时间: 2023-12-14 14:53:51
  • 文件大小: 16.58M
  • 素材标签: 民宿室内度假
  • 高清原图下载
  • 收藏
  • 分享
  • 他上传的材料
    028-86628548
  • 关于我们 网站协议 关于我们 联系我们 加入我们 业务拓展
  • 常见问题 上传要求 下载问题 充值支付 提现收益 帮助中心
  • 免责声明 本网站内容由用户自由上传,如权利人发现存在误传其作品情形,请及时与本站客服联系
  • 友情链接
  • 关注我们

    了解更多