注册 | 登录
今日更新:100
已为你搜索到以下结果 /没有搜到相关素材请加qq群704148082索取
山居魔方-民宿
2023-12-18 11:09:45
民宿室内建筑
尊重自然、追求简洁、开放互动。

1.jpg

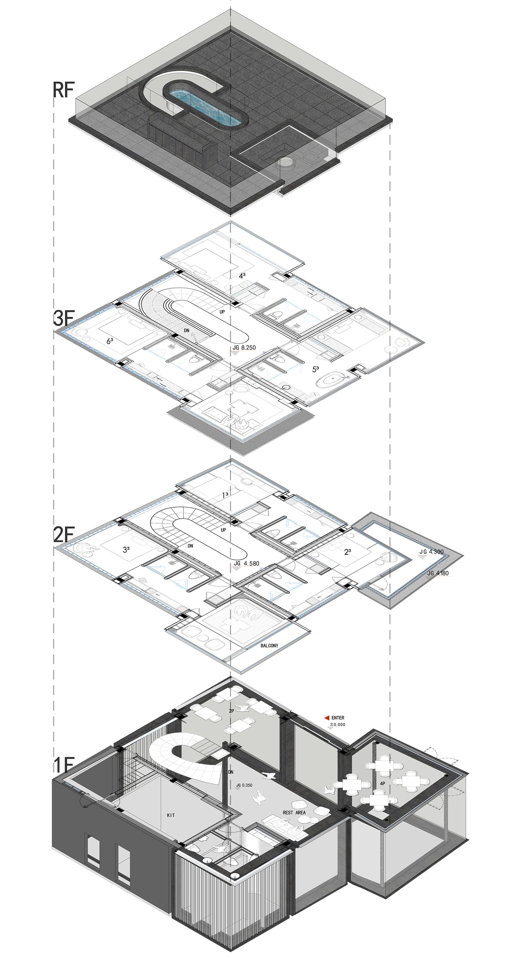
  1. 项目基地位于莫干山度假区,作为长江三角区著名的风景区,翠竹青山,自然风光,延绵不息。为了尽最大可能去糅合山间纯粹的自然景致,设计中考虑的重点在于建筑如何巧妙的与环境和融洽共处。


2.jpg3.gif4.jpg

建筑外立面的设计中根据不同房间的观景及空间的私密性要求,大面积运用了三种玻璃材料,透明玻璃,U型玻璃及玻璃砖作为“魔方”的九宫格,结构上通过加固钢结构来形成“魔方”九宫格的黑色骨架支撑,将整个建筑外立面割裂,形成强烈的戏剧冲突,同时也将理性与暧昧发挥到极致。

5.jpg6.jpg7.jpg8.jpg9.jpg

建筑与自然,建筑与人逐渐融合产生共情。山中天气,时而朦胧浊茫如雾,时而通透清澈如水。灼灼山影间,亭亭如盖也。

10.jpg11.jpg12.jpg13.jpg14.jpg15.jpg16.jpg17.jpg18.jpg18a.jpg19.jpg20.jpg21.jpg21a.jpg22.jpg22a.jpg22b.jpg23.jpg24.jpg25.jpg26.jpg27.jpg28.jpg

登录查看全部
山居魔方-民宿
素材ID号1209复制ID号
161
  • 上传时间: 2023-12-18 11:09:45
  • 文件大小: 12.30M
  • 素材标签: 民宿室内建筑
  • 高清原图下载
  • 收藏
  • 分享
  • 他上传的材料
    028-86628548
  • 关于我们 网站协议 关于我们 联系我们 加入我们 业务拓展
  • 常见问题 上传要求 下载问题 充值支付 提现收益 帮助中心
  • 免责声明 本网站内容由用户自由上传,如权利人发现存在误传其作品情形,请及时与本站客服联系
  • 友情链接
  • 关注我们

    了解更多