注册 | 登录
今日更新:100
已为你搜索到以下结果 /没有搜到相关素材请加qq群704148082索取
南禅观水-民宿
2023-12-18 11:28:02
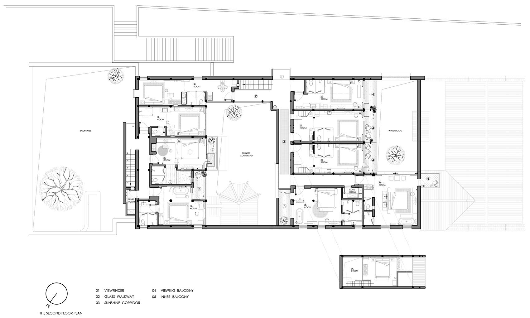
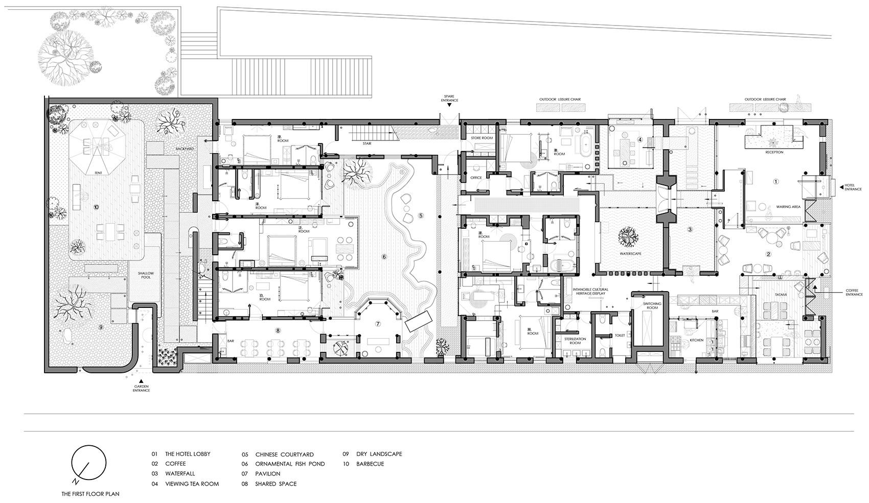
民宿室内建筑
新旧融合,自然与人文。

1.jpg

尊重传统建筑和文化,将现代设计理念与传统文化相融合,打造具有独特魅力的民宿。

2.jpg

保留传统建筑的白墙黛瓦、小桥流水的特点,同时增加现代设计元素,如铁锈板、简约的落地玻璃等,使建筑更加时尚、开放。

3.jpg4.jpg5.jpg

打破传统建筑的封闭性,增加开放空间,让建筑与自然、人与人之间形成互动,营造和谐的居住环境。

6.jpg

根据不同房间的风格和特色,进行个性化的室内设计,如复古怀旧、工业风等,提供舒适的住宿体验。

7.jpg8.jpg9.jpg10.jpg

采用简约的设计风格,注重细节和舒适度,让住宿者感受到家的温馨和舒适。

11.jpg

保留原有的荷花池,拓宽走道,增加嬉戏空间。同时,新造混凝土墙体及楼梯与原有山墙相衔接,营造禅意的后院。

12.jpg13.jpg14.jpg15.jpg16.jpg17.jpg18.jpg19.jpg20.jpg21.jpg22.jpg23.jpg24.jpg25.jpg26.jpg27.jpg28.jpg29.jpg30.jpg31.jpg32.jpg33.jpg

登录查看全部
南禅观水-民宿
素材ID号1210复制ID号
182
  • 上传时间: 2023-12-18 11:28:02
  • 文件大小: 11.30M
  • 素材标签: 民宿室内建筑
  • 高清原图下载
  • 收藏
  • 分享
  • 他上传的材料
    028-86628548
  • 关于我们 网站协议 关于我们 联系我们 加入我们 业务拓展
  • 常见问题 上传要求 下载问题 充值支付 提现收益 帮助中心
  • 免责声明 本网站内容由用户自由上传,如权利人发现存在误传其作品情形,请及时与本站客服联系
  • 友情链接
  • 关注我们

    了解更多