注册 | 登录
今日更新:100
已为你搜索到以下结果 /没有搜到相关素材请加qq群704148082索取
花间堂杭州酒店
2024-01-09 17:49:49
花间堂杭州酒店室内设计
花间堂杭州酒店 Hangzhou Blossom Hill Hotel

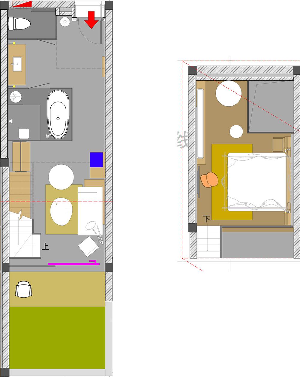
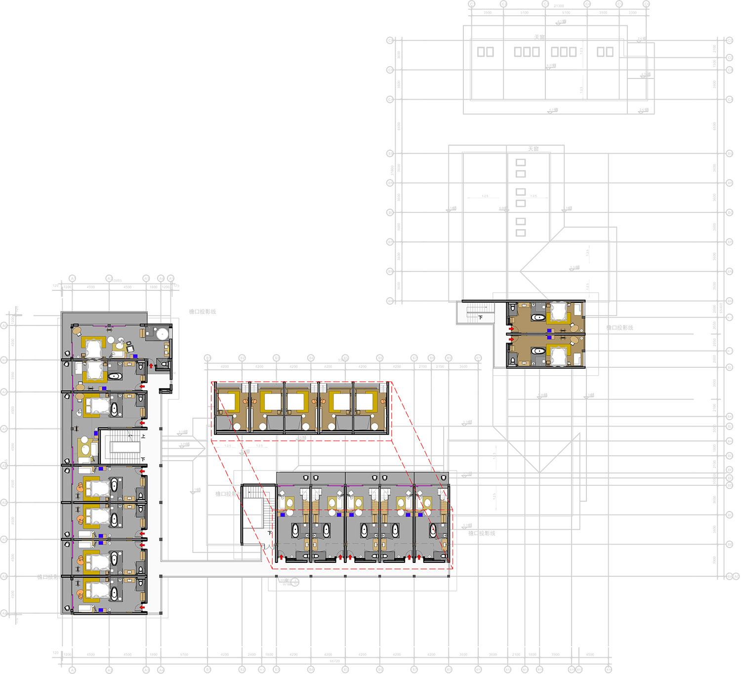
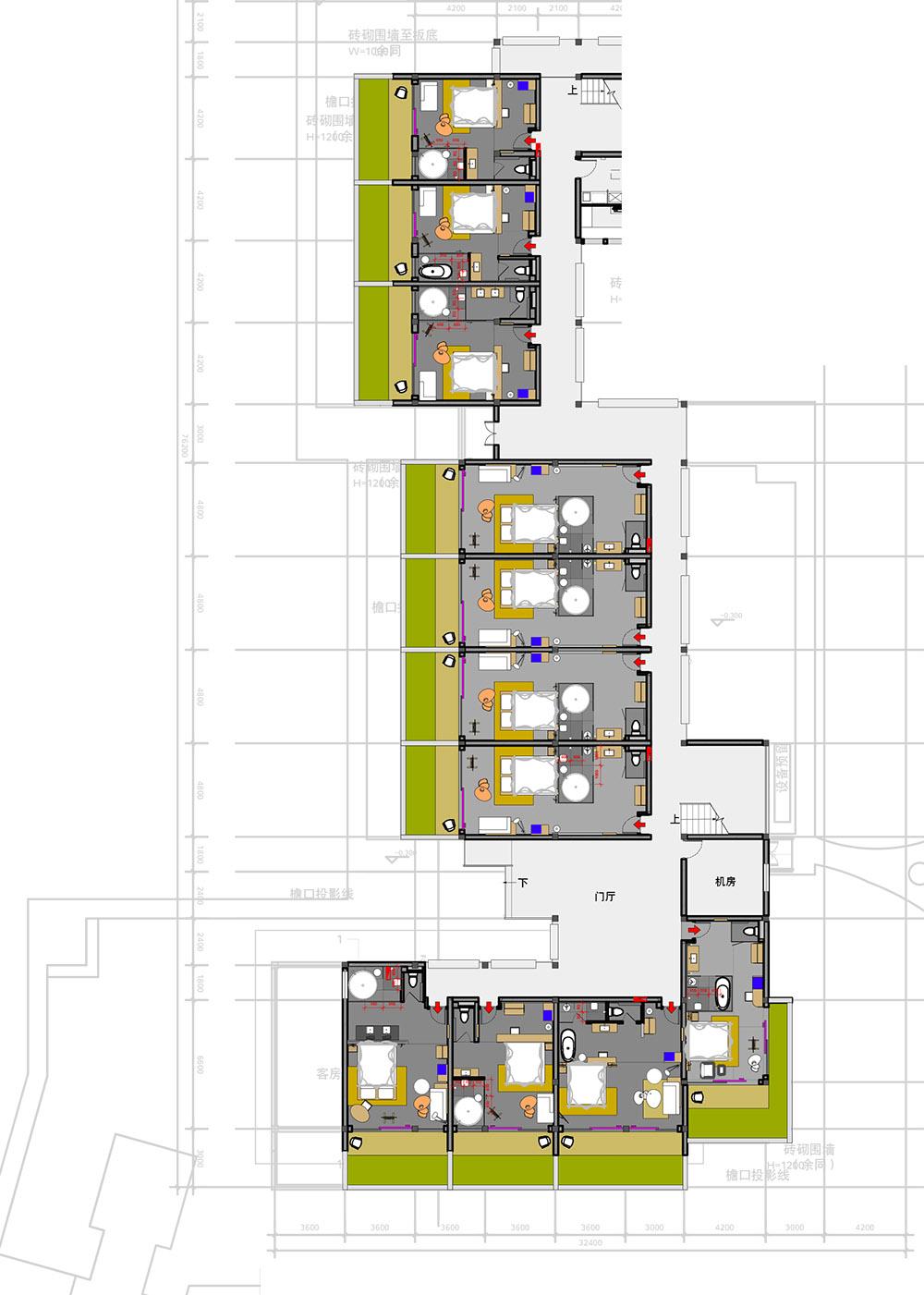
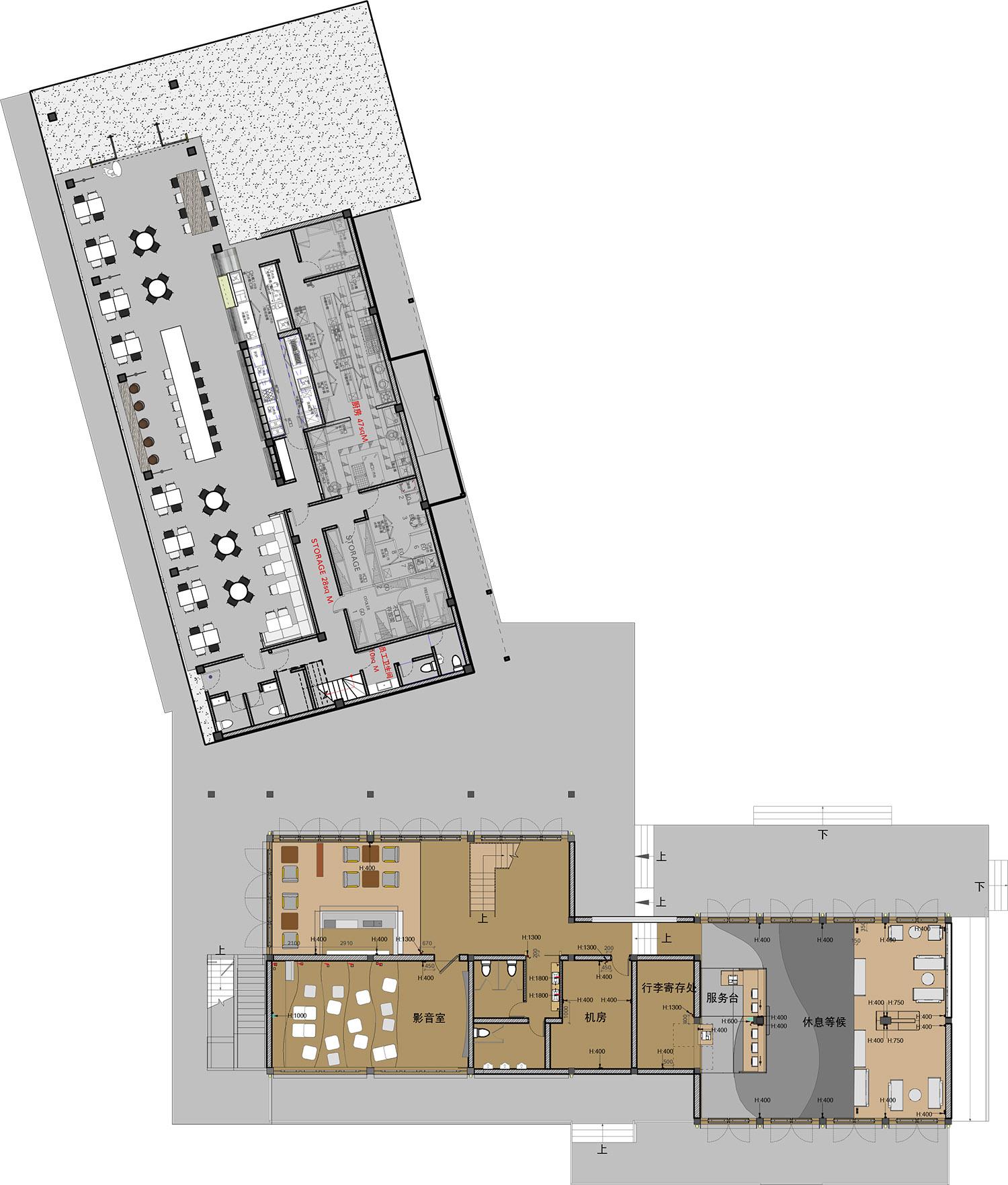
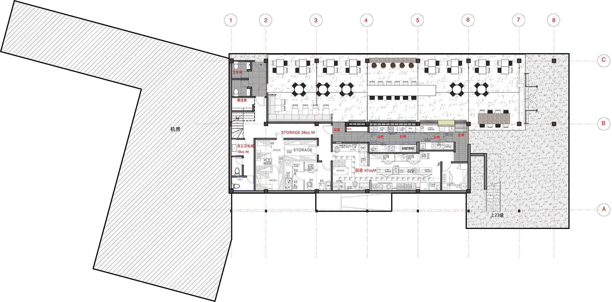
1 (1).jpg1 (2).jpg1 (3).jpg1 (4).jpg1 (5).jpg1 (6).jpg1 (7).jpg道路之间有植被和矮墙的隔离,项目的入口隐藏在了景观的后面,让住客进入的那个刹那,视觉上有一种曲径通幽的感受,印证了桃花源记的“初极狭,才通人。复行数十步,豁然开朗。”入口处是被格栅隐藏起来的,设计师不想把入口暴露在路边或是让人一目了然的地方。设计师保留了入口处歪斜的树,那棵树就是为了欢迎客人而生。

1 (8).jpg1 (9).jpg1 (10).jpg1 (11).jpg1 (12).jpg1 (13).jpg1 (14).jpg1 (15).jpg1 (16).jpg1 (17).jpg1 (18).jpg1 (19).jpg1 (20).jpg1 (21).jpg1 (22).jpg1 (23).jpg1 (24).jpg1 (25).jpg1 (26).jpg1 (27).jpg1 (28).jpg1 (29).jpg1 (30).jpg1 (31).jpg

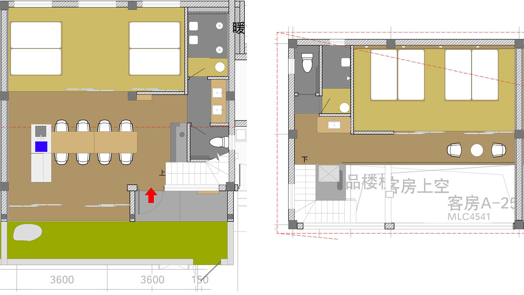
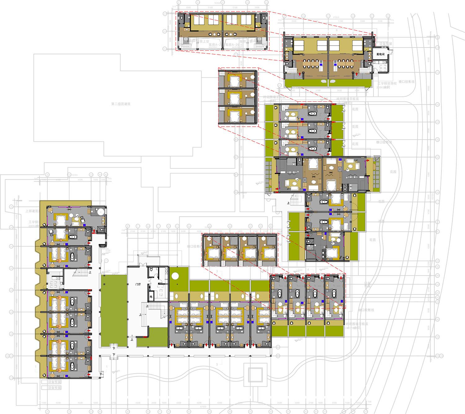
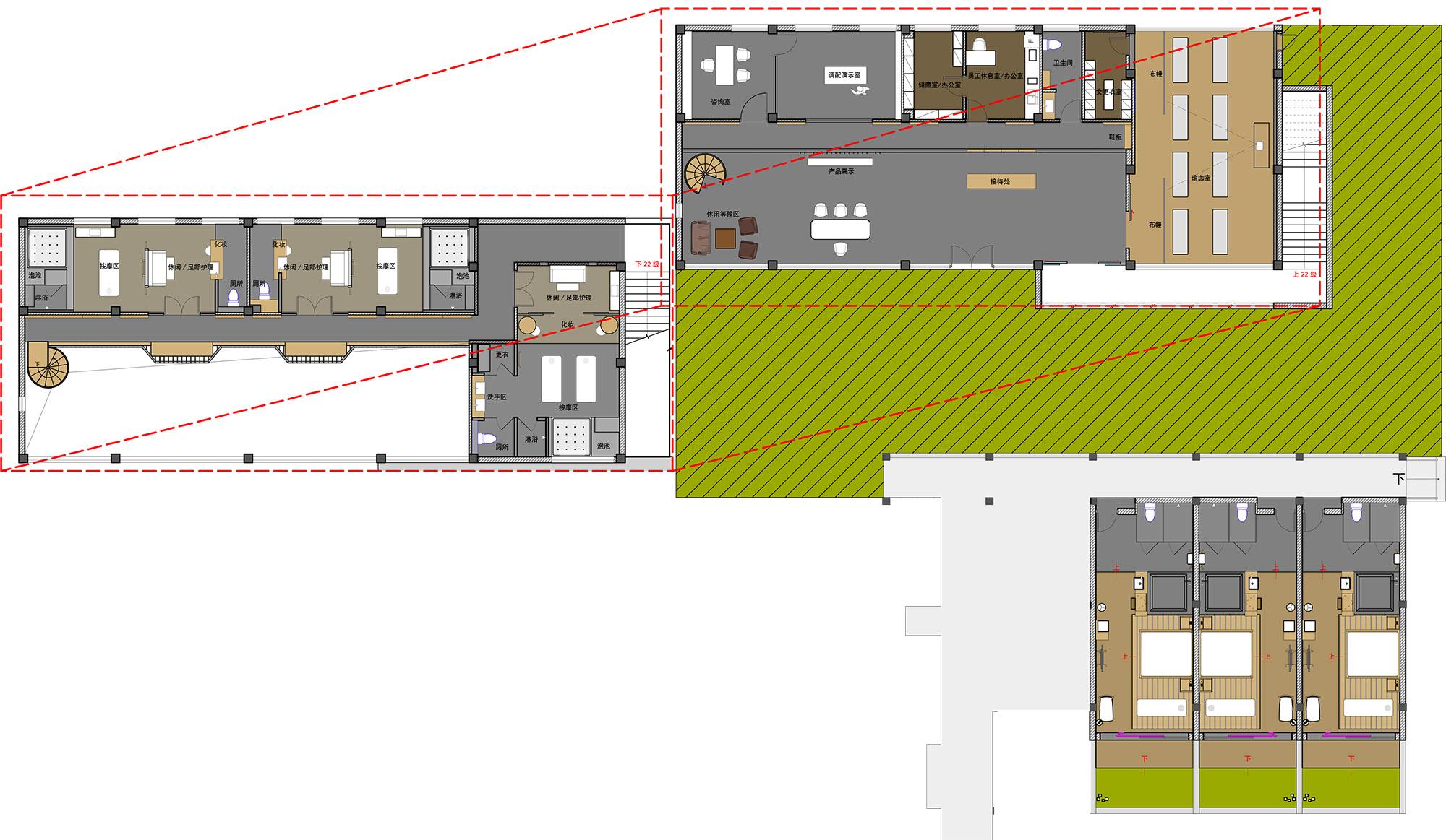
“都市山水”是人在都市中寻找自然的栖息之地,寻找与自然和谐相处的人生之道。就像诗人田禾所写:回到自然,我是一条快乐的鱼,游荡在生活的水流之中。而如何在城市之中构建山水生活美学,我们以“师法自然,山水之境”为脉,通过精巧的设计将都市山水独特生活方式赋予了崭新的诠释。1 (32).jpg1 (33).jpg1 (34).jpg1 (35).jpg1 (36).jpg1 (37).jpg1 (38).jpg1 (39).jpg1 (40).jpg1 (41).jpg1 (42).jpg1 (43).jpg1 (44).jpg1 (45).jpg1 (46).jpg1 (48).jpg1 (49).jpg1 (50).jpg1 (51).jpg1 (52).jpg1 (53).jpg1 (54).jpg1 (55).jpg1 (56).jpg1 (57).jpg1 (58).jpg1 (59).jpg1 (60).jpg1 (61).jpg1 (62).jpg1 (63).jpg1 (64).jpg1 (65).jpg1 (66).jpg1 (67).jpg1 (68).jpg1 (69).jpg1 (70).jpg1 (71).jpg1 (72).jpg1 (73).jpg1 (74).jpg1 (75).jpg1 (76).jpg1 (77).jpg1 (78).jpg1 (79).jpg1 (80).jpg1 (81).jpg1 (82).jpg1 (83).jpg1 (84).jpg1 (85).jpg1 (86).jpg1 (87).jpg1 (88).jpg1 (89).jpg1 (90).jpg1 (91).jpg1 (92).jpg1 (93).jpg1 (94).jpg1 (95).jpg1 (96).jpg1 (97).jpg1 (98).jpg1 (99).jpg1 (100).jpg1 (101).jpg1 (102).jpg1 (103).jpg1 (104).jpg1 (105).jpg

登录查看全部
花间堂杭州酒店
素材ID号1215复制ID号
165
  • 上传时间: 2024-01-09 17:49:49
  • 文件大小: 36.83M
  • 素材标签: 花间堂杭州酒店室内设计
  • 高清原图下载
  • 收藏
  • 分享
  • 他上传的材料
    028-86628548
  • 关于我们 网站协议 关于我们 联系我们 加入我们 业务拓展
  • 常见问题 上传要求 下载问题 充值支付 提现收益 帮助中心
  • 免责声明 本网站内容由用户自由上传,如权利人发现存在误传其作品情形,请及时与本站客服联系
  • 友情链接
  • 关注我们

    了解更多