注册 | 登录
今日更新:100
已为你搜索到以下结果 /没有搜到相关素材请加qq群704148082索取
本哲建筑渝舍印象-酒店
2024-01-09 17:58:05
本哲建筑渝舍印象酒店
本哲建筑渝舍印象-酒店

1.jpg2.jpg3.jpg4.jpg

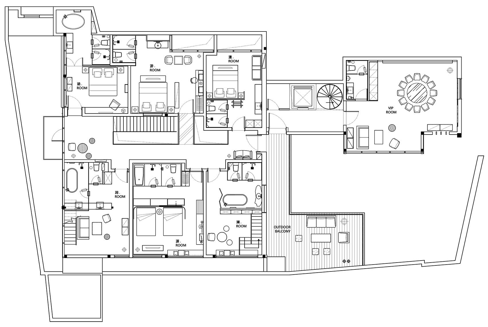
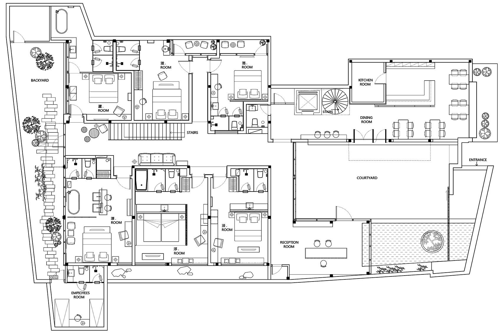
建筑的时间性,是极具挑战又极具思辨性的命题,在当今内卷焦虑的社会认知下更显现其独特的价值。正如哲学家卡斯滕·哈里斯 (Karsten Harries)所说的那样,“建筑不只是关于驯服空间,它也是人们对于时间恐惧的抵抗。美是永恒的超越时间的现实”。

5.jpg6.jpg7.jpg8.jpg9.jpg10.jpg11.jpg12.jpg13.jpg14.jpg15.jpg16.jpg建筑内部则焕然一新,功能空间的重新组织和建筑立面富有韵律的理性构建直接反映在形态大小各异的窗洞上,白色构架恰到好处得延伸了室内空间,放大了窗洞的纵深感。在光影微风和竹林山海的共同作用下,实现由室外到室内的景观渗透,人们身处其中感知时间和记忆的叙说。17.jpg18.jpg19.jpg20.jpg21.jpg22.jpg23.jpg24.jpg

登录查看全部
本哲建筑渝舍印象-酒店
素材ID号1216复制ID号
151
  • 上传时间: 2024-01-09 17:58:05
  • 文件大小: 19.07M
  • 素材标签: 本哲建筑渝舍印象酒店
  • 高清原图下载
  • 收藏
  • 分享
  • 他上传的材料
    028-86628548
  • 关于我们 网站协议 关于我们 联系我们 加入我们 业务拓展
  • 常见问题 上传要求 下载问题 充值支付 提现收益 帮助中心
  • 免责声明 本网站内容由用户自由上传,如权利人发现存在误传其作品情形,请及时与本站客服联系
  • 友情链接
  • 关注我们

    了解更多