注册 | 登录
今日更新:100
已为你搜索到以下结果 /没有搜到相关素材请加qq群704148082索取
睡眠研究所民宿
2024-01-10 17:35:31
睡眠研究所上海多么工作室酒店民宿
【酒店】睡眠研究所民宿,上海 多么工作室

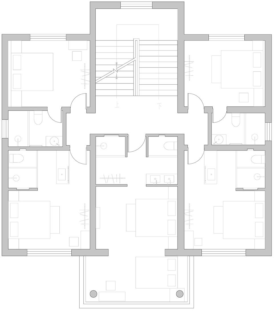
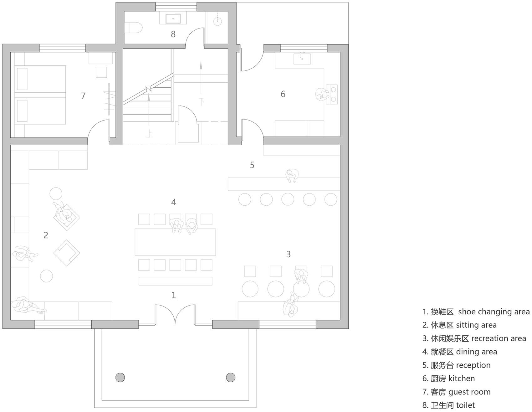
项目位于上海浦东迪士尼附近的一个村庄内,是睡眠研究所民宿的迪士尼店。业主委托多么工作室将一栋农村民宅改造成一个拥有10间客房的精品民宿。2.jpg1.jpg3.jpg4.jpg5.jpg民宿一层为接待大厅,设计初期我们先让施工对现场进行拆旧,来恢复空间原始的面貌。当拆掉原本的石膏板吊顶露出建筑本身混凝土楼板的那一刻,我们确定顶部已不需要再做过多装饰了。裸露的清水混凝土顶棚和温暖的木质家具呈现出的是温和质朴的原始气息。入口的欢迎鞋架、休息区的展示架子以及餐区的吧台,挑选了半透的材质,当光线穿透过其间,空间随之变得更加轻盈。在鞋架和展示架上,设计师精心设计了组装节点,从画图、打板、生产,直到亲手组装,在帮助业主减少成本的同时也完成了一次有趣的设计实践。6.jpg7.jpg8.jpg9.jpg10.jpg11.jpg12.jpg13.jpg14.jpg15.jpg16.jpg本项目在降低造价的基础上,对材料使用、施工手法进行了深入的研究,完成了一次低成本的建造实践。比起雕栏玉砌,我们更渴望营造一个素颜质朴的空间,让人卸下防备感,自然地在空间内体验和感受。成年人的童话世界,褪去了浮华的装饰,留下的是质朴的本真。17.jpg18.jpg19.jpg20.jpg21.jpg23.jpg


登录查看全部
睡眠研究所民宿
素材ID号1222复制ID号
156
  • 上传时间: 2024-01-10 17:35:31
  • 文件大小: 4.49M
  • 素材标签: 睡眠研究所上海多么工作室酒店民宿
  • 高清原图下载
  • 收藏
  • 分享
  • 他上传的材料
    028-86628548
  • 关于我们 网站协议 关于我们 联系我们 加入我们 业务拓展
  • 常见问题 上传要求 下载问题 充值支付 提现收益 帮助中心
  • 免责声明 本网站内容由用户自由上传,如权利人发现存在误传其作品情形,请及时与本站客服联系
  • 友情链接
  • 关注我们

    了解更多