注册 | 登录
今日更新:100
已为你搜索到以下结果 /没有搜到相关素材请加qq群704148082索取
素建筑设计
2024-01-10 17:41:06
素建筑设计酒店
【酒店】素建筑设计

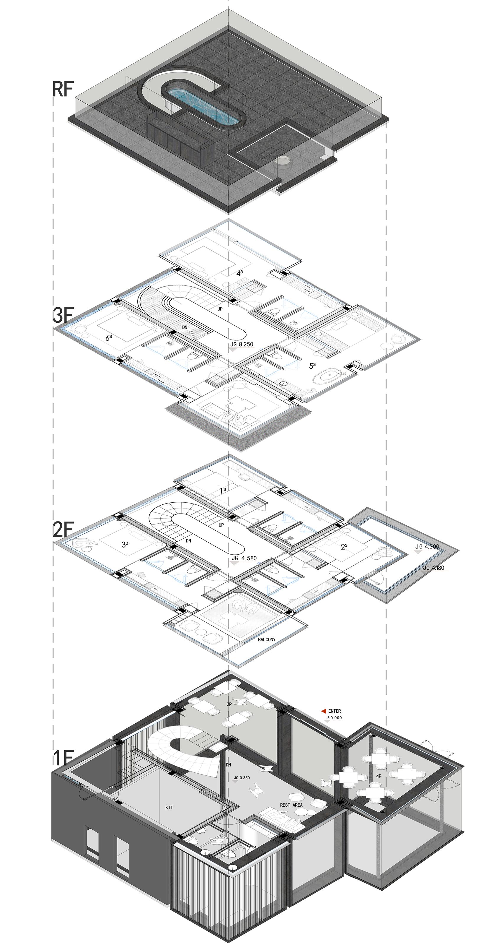
岩壁秘境酒店位于于宜兴市湖㳇镇邵东村,村落自然形成,位于两侧峡谷之间。设计任务是将其中一幢废弃的旧建筑重新利用,并改造其为酒店。1.jpg2.jpg4.jpg3.gif5.jpg

建筑的场地是当时挖山后平整形成,设计中思考如何缝合现状建筑与周边村落的关系,赋予场地新的生命。

希望对旧建筑做尽量少的改动,让建筑回归自然:遂用轻便的金属网“覆盖”旧建筑,金属网提供了藤蔓植物生长的“路径”,植物自由生长,建筑师离场,由时间赋予自然完成剩下的设计。6.jpg7.jpg8.jpg9.jpg建筑的时间性,是极具挑战又极具思辨性的命题,在当今内卷焦虑的社会认知下更显现其独特的价值。正如哲学家卡斯滕·哈里斯 (Karsten Harries)所说的那样,“建筑不只是关于驯服空间,它也是人们对于时间恐惧的抵抗。美是永恒的超越时间的现实”。为了阐释这一观点,设计团队从新旧的记忆入手,在材料的流转中展开,于序列的逻辑中推演,在人为策略与自然博弈中寻找共生,留下一件“未完成”等待时间续写的作品。10.jpg11.jpg12.jpg13.jpg14.jpg15.jpg白色金属网也为植物提供了攀爬路径,在一次次逝去和新生的交叠之中,建筑会慢慢与植物相融、拥抱自然、回归山野,建筑体量也逐渐消减到了合适的尺度。在一次次腐烂和新生中,白色金属网终将失去它的纯净朦胧,镌刻的锈迹隐匿在一片生生不息之后,在春去秋来中逐渐浮现,低调的承托着时间所带来的一切。16.jpg17.jpg18.jpg18a.jpg19.jpg20.jpg21.jpg21a.jpg22.jpg22a.jpg22b.jpg23.jpg24.jpg25.jpg26.jpg27.jpg28.jpg


登录查看全部
素建筑设计
素材ID号1223复制ID号
158
  • 上传时间: 2024-01-10 17:41:06
  • 文件大小: 12.32M
  • 素材标签: 素建筑设计酒店
  • 高清原图下载
  • 收藏
  • 分享
  • 他上传的材料
    028-86628548
  • 关于我们 网站协议 关于我们 联系我们 加入我们 业务拓展
  • 常见问题 上传要求 下载问题 充值支付 提现收益 帮助中心
  • 免责声明 本网站内容由用户自由上传,如权利人发现存在误传其作品情形,请及时与本站客服联系
  • 友情链接
  • 关注我们

    了解更多