注册 | 登录
今日更新:100
已为你搜索到以下结果 /没有搜到相关素材请加qq群704148082索取
挚舍南禅观水-酒店
2024-01-10 17:46:54
挚舍南禅观水酒店本哲建筑
【酒店】挚舍南禅观水酒店,无锡 本哲建筑

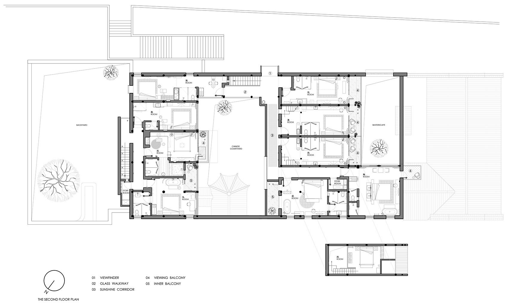
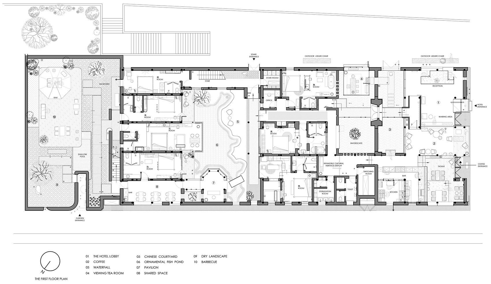
项目位于无锡南禅寺脚下,旧民居群中,清名桥古运河之滨,故取名为“南禅观水”。随着时代变迁和城市更新,本哲在解构民宿建筑新含义的同时,又传承了历史文化遗产的精髓。1.jpg2.jpg3.jpg4.jpg6.jpg7.jpg原址是典型的传统三进式院落,前低后高,较为保守。旧建筑四周封闭,室内光感不强,楼道狭窄,藏匿了许多安全隐患。改造后的建筑,依旧白墙黛瓦,小桥流水,保留了这座江南小院古朴典雅的气息,增加了更多的开放空间。铁锈板、简约的落地玻璃及独特的导向系统等现代设计元素,赋予了老宅新的活力。9.jpg8.jpg

项目在打造前台到房间的通道时,巧妙地设计了内外两条相互独立的路径。内路径由前台通向餐厅,再由餐厅绕道至房间,曲径通幽;外路径由前台直达二进房间,路径下沉于水面,仿佛人在水中走。漂浮在水面的茶室,别有一番“大隐隐于世”的低调与沉静。

10.jpg11.jpg12.jpg13.jpg14.jpg15.jpg16.jpg17.jpg18.jpg

房间“泛”和“泓”以工业风为基底,干净利落的线条,裸露的原色墙面和金属,传达克制冷艳的美感,几何性和构成性创造出中性、纯粹的空间体验,粗犷别致之中不乏细腻的笔触。

19.jpg20.jpg21.jpg22.jpg改造后的后院别有意趣,枯山水的禅意淡泊宁静。新造混凝土墙体及楼梯与原有山墙相衔接,赤裸冷冽。拾级而上,阳光透过圆孔,将光与影的虚实之美发挥到。23.jpg24.jpg25.jpg26.jpg27.jpg28.jpg29.jpg30.jpg31.jpg32.jpg33.jpg


登录查看全部
上一篇:素建筑设计 下一篇:“归去来”民宿
挚舍南禅观水-酒店
素材ID号1224复制ID号
160
  • 上传时间: 2024-01-10 17:46:54
  • 文件大小: 11.31M
  • 素材标签: 挚舍南禅观水酒店本哲建筑
  • 高清原图下载
  • 收藏
  • 分享
  • 他上传的材料
    028-86628548
  • 关于我们 网站协议 关于我们 联系我们 加入我们 业务拓展
  • 常见问题 上传要求 下载问题 充值支付 提现收益 帮助中心
  • 免责声明 本网站内容由用户自由上传,如权利人发现存在误传其作品情形,请及时与本站客服联系
  • 友情链接
  • 关注我们

    了解更多