注册 | 登录
今日更新:100
已为你搜索到以下结果 /没有搜到相关素材请加qq群704148082索取
“归去来”民宿
2024-01-10 17:51:16
归去来民宿 周鑫建筑设计酒店民宿
【酒店民宿】“归去来”民宿,浙江舟山 周鑫建筑设计工作室

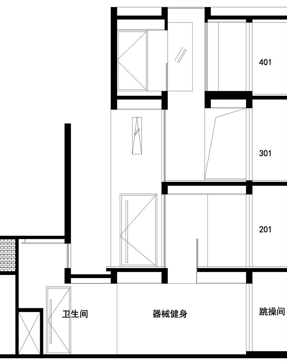
曾周木野 设计过程中,我会不停的从两个视角来着重考虑观看体验及空间体验,一是空中视角,一是各人行路径中行人视角;人在行走过程中的动为线,驻留为小停顿点,房间为大停顿点。1.jpg项目用地近邻等风来一期,设计之初,是按照等风来第三期同时兼顾可独栋运营来考虑,而原计划的第二期由于运营理念及方式存在差异终未能成功合作,进而这栋“归去来”则成了终的二期。2.jpg3.jpg用地四面均被道路环绕,且道路绕建筑盘旋上升,原始房屋的出入口设置在用地东面的广场侧。由于设计之初是准备三栋民宿联合运营,三期首层设置瑜伽健身类公共配套,二期纯客房,一期设门厅及餐厅,一期已有道路联通主楼及公共道路,因而如何组织项目三期的外部路径、二期背面预留的通道及一期内道路形成环路以便更好的资源共享在业态布局层面具有实际需求。5.jpg

设计过程中,我会不停的从两个视角来着重考虑观看体验及空间体验,一是空中视角,一是各人行路径中行人视角;人在行走过程中的动为线,驻留为小停顿点,房间为大停顿点,动停各自的时间长短,所观所感,之间的节奏关系,都在施工结束前通过多种形式无数次被反复推敲验证。

因为对摄影师观念想法有大致了解并有基本认同,加之我也想看看在毫无沟通的情况下,其他人来看这楼,能看出什么,所以拍摄前,并未做任何与设计有关的沟通。我尊重摄影师的拍摄想法自我表达,但是选片时候会期望成品与实物之间还是足够的保真度。22.jpg23.jpg24.jpg25.jpg26.jpg27.jpg28.jpg29.jpg30.jpg

6.jpg7.jpg8.jpg9.jpg10.jpg11.jpg12.jpg13.jpg14.jpg15.jpg16.jpg17.jpg18.jpg19.jpg20.jpg21.jpg

登录查看全部
“归去来”民宿
素材ID号1225复制ID号
167
  • 上传时间: 2024-01-10 17:51:16
  • 文件大小: 6.85M
  • 素材标签: 归去来民宿 周鑫建筑设计酒店民宿
  • 高清原图下载
  • 收藏
  • 分享
  • 他上传的材料
    028-86628548
  • 关于我们 网站协议 关于我们 联系我们 加入我们 业务拓展
  • 常见问题 上传要求 下载问题 充值支付 提现收益 帮助中心
  • 免责声明 本网站内容由用户自由上传,如权利人发现存在误传其作品情形,请及时与本站客服联系
  • 友情链接
  • 关注我们

    了解更多