注册 | 登录
今日更新:100
已为你搜索到以下结果 /没有搜到相关素材请加qq群704148082索取
Bjornson酒店度假屋-酒店民宿
2024-01-10 18:01:54
Bjornson酒店度假屋酒店民宿
【酒店民宿】Bjornson酒店度假屋

Ark-shelter事务所受邀为Bjornson酒店在斯洛伐克的森林中设计一组森林度假屋。投资方提出朝向一侧的成对小屋围绕酒店主体布置的明确想法,这使项目的设计方案相对简单。1.jpg2.jpg3.jpg4.jpg

小屋就位于森林中,四周环绕面向着不同的森林或滑雪坡道原始景色。和特色滑雪坡道相邻造就了度假村的独特氛围。住户可以在室内温暖的观赏雪景,也可以一时兴起的去滑雪运动,与大自然亲密接触。

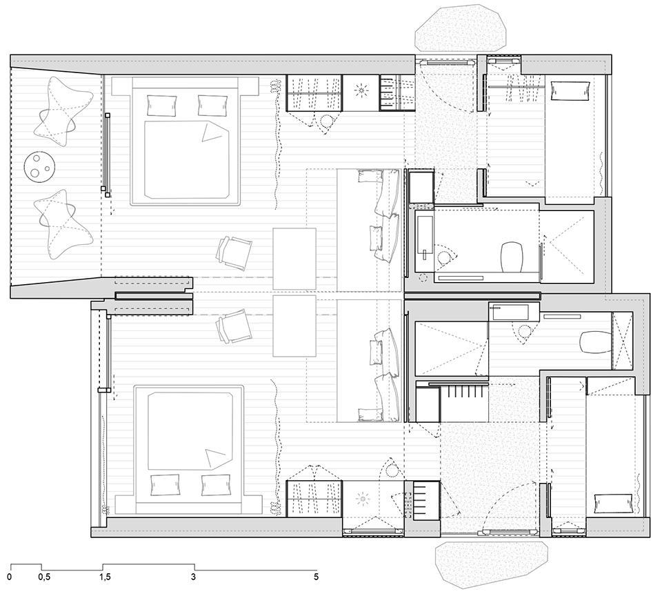
5.jpg6.jpg7.jpg8.jpg9.jpg10.jpg11.jpg14.jpg15.jpg16.jpg这两个独立的功能单元可以通过滑动客厅的隔墙连接成一体,创造了宽敞的中央空间,两个家庭可以在这里见面和社交。两套公寓的功能是镜像和移动模块使用的,偏移的模块形成微小的空间变化,如较大的浴室或额外的阳台,丰富了度假小屋的多样性。16a.gif16b.gif16c.jpg16d.jpg16e (1).jpg16e (2).jpg16e (3).jpg16f.jpg17.jpg18.jpg19.jpg21.jpg22.jpg26.jpg34.jpg35.jpg36.jpg37.jpg

登录查看全部
Bjornson酒店度假屋-酒店民宿
素材ID号1226复制ID号
149
  • 上传时间: 2024-01-10 18:01:54
  • 文件大小: 40.08M
  • 素材标签: Bjornson酒店度假屋酒店民宿
  • 高清原图下载
  • 收藏
  • 分享
  • 他上传的材料
    028-86628548
  • 关于我们 网站协议 关于我们 联系我们 加入我们 业务拓展
  • 常见问题 上传要求 下载问题 充值支付 提现收益 帮助中心
  • 免责声明 本网站内容由用户自由上传,如权利人发现存在误传其作品情形,请及时与本站客服联系
  • 友情链接
  • 关注我们

    了解更多