¥充值
VIP
注册 |
登录
今日更新:100
建筑案例
景观案例
室内案例
大师作品
民宿专篇
无数据
NO.3
首页/全球案列/GAD-LINE山居民宿
已为你搜索到以下结果
/没有搜到相关素材请加qq群704148082索取
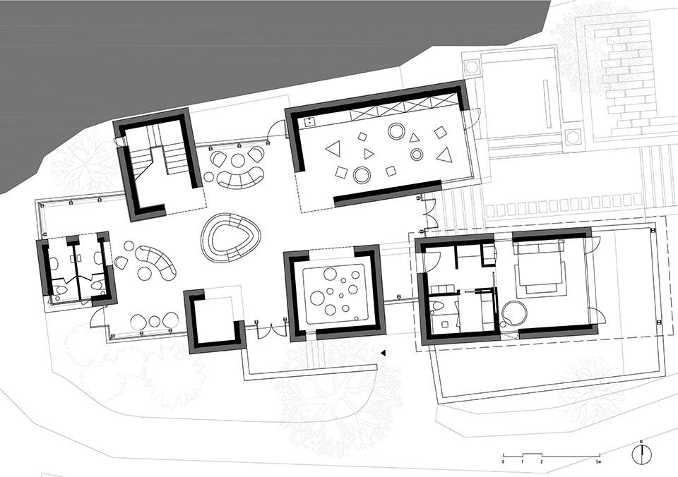
GAD-LINE山居民宿
2024-01-10 18:08:33
GADLINE
酒店民宿
【酒店民宿】gad·line
去冒险,去探索,去嗨玩,去爱
登录查看全部
上一篇:
Bjornson酒店度假屋-酒店民宿
下一篇:
阿那亚唐舍-酒店民宿
GAD-LINE山居民宿
素材ID号1227
复制ID号
关注他
144
上传时间:
2024-01-10 18:08:33
文件大小:
15.44M
素材标签:
GADLINE
酒店民宿
高清原图下载
收藏
分享
他上传的材料
更多
浅谈景观设计神经中枢—平面图绘制策略
德国历史博物馆-贝律铭大师作品
茂名保利天寰售楼部-白色的纯粹空间
FUTURE KALE办公空间
苏州金地浅山风华售楼部
模型
建筑SU模型
景观SU模型
室内SU模型
其他SU模型
图库
建筑图库
景观图库
室内图库
文本
建筑文本
景观文本
室内文本
设计资源
CAD图纸
PS分层图
材质贴图
案例
建筑案例
景观案例
室内案例
大师作品
民宿专篇
设计
材料研发
设施研发
装置研发
雕塑设计
民宿研发
设计服务
028-86628548
关于我们
网站协议
关于我们
联系我们
加入我们
业务拓展
常见问题
上传要求
下载问题
充值支付
提现收益
帮助中心
免责声明
本网站内容由用户自由上传,如权利人发现存在误传其作品情形,请及时与本站客服联系
友情链接
关注我们
了解更多
成都金麦道园林景观设计咨询有限公司 COPYRIGHT @ 2022 ALL RIGHTS RESERVED
蜀ICP备2021020856号
技术支持:诺比信