注册 | 登录
今日更新:100
已为你搜索到以下结果 /没有搜到相关素材请加qq群704148082索取
阿那亚唐舍-酒店民宿
2024-01-10 18:44:06
阿那亚唐舍酒店民宿
【酒店民宿】阿那亚唐舍酒店

项目位于秦皇岛阿那亚社区的文创小镇一角。酒店东侧面向黄金海岸线南岸,远离喧嚣,有着的观海视野。另外三面被5-6层高的欧洲风格住宅建筑群环绕,场地在其间形成六角形的轮廓,有着类似欧洲小镇里城市广场的尺度和空间形态。

1.jpg2.jpg3.jpg4.jpg5.jpg6.jpg7.jpg8.jpg

面对这个独特的场地,我们希望借此探索新时代的居住模式。这个出发点源于我们对当代城市和社会的观察。 如今,现代家庭趋于小型化和个体化,以婚姻或血缘关系的传统家庭结构在逐渐瓦解,我们正在走向一个个体的时代。 当每个人在城市中拥有的空间越来越小,人们开始厌倦强调⾃我的⽣活⽅式时,社群的重要性便凸显出来。同时,随着网络和虚拟空间的发展,实体空间的价值从提供特定的使用功能,逐渐转变为满足人的精神诉求。真正有价值的场所是能将生活空间、交流空间和文化空间结合在一起的,有综合体验感的空间。在这样的时代下,建筑需要成为一个平台,给人们提供相互交流的机会,重新找回情感的价值。

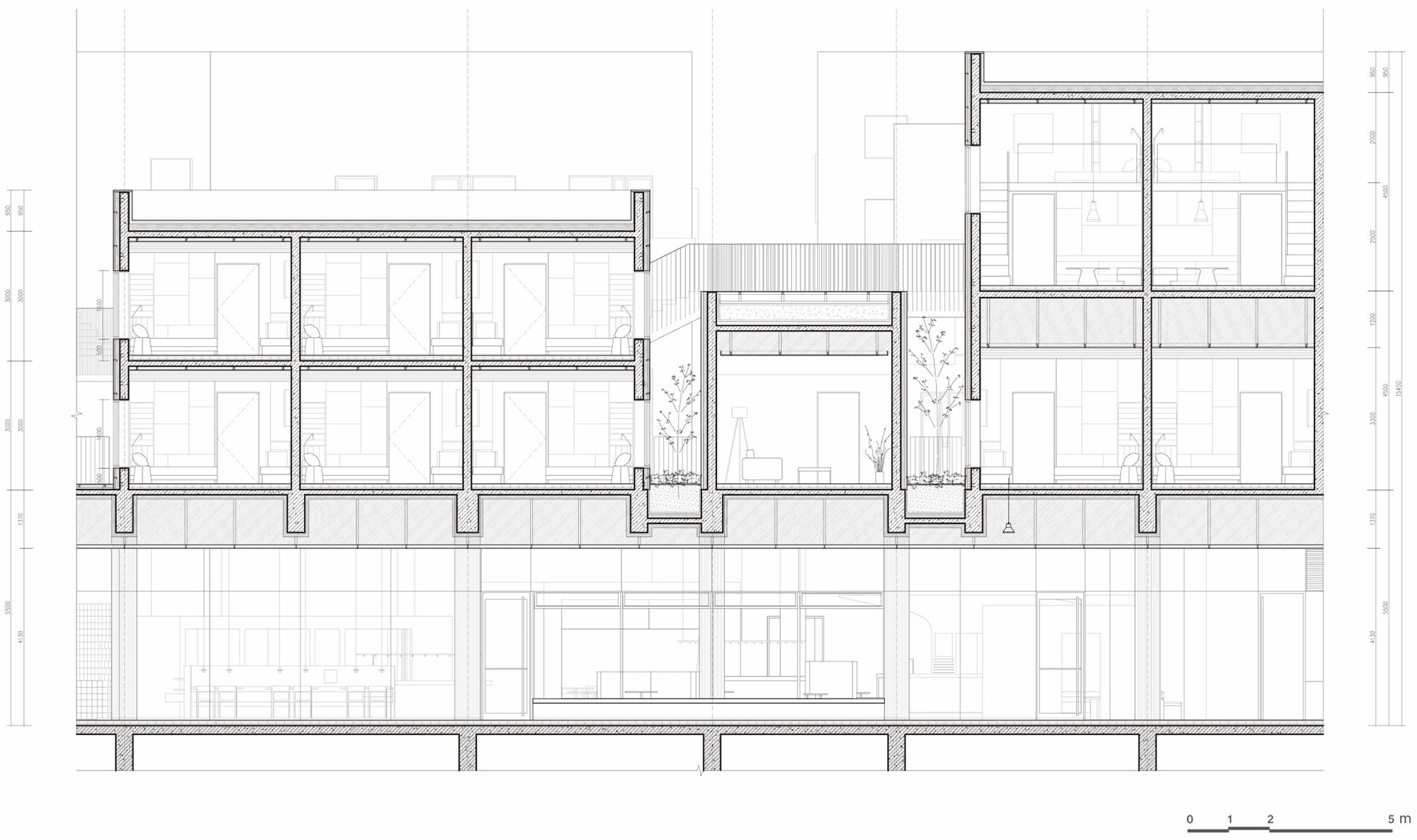
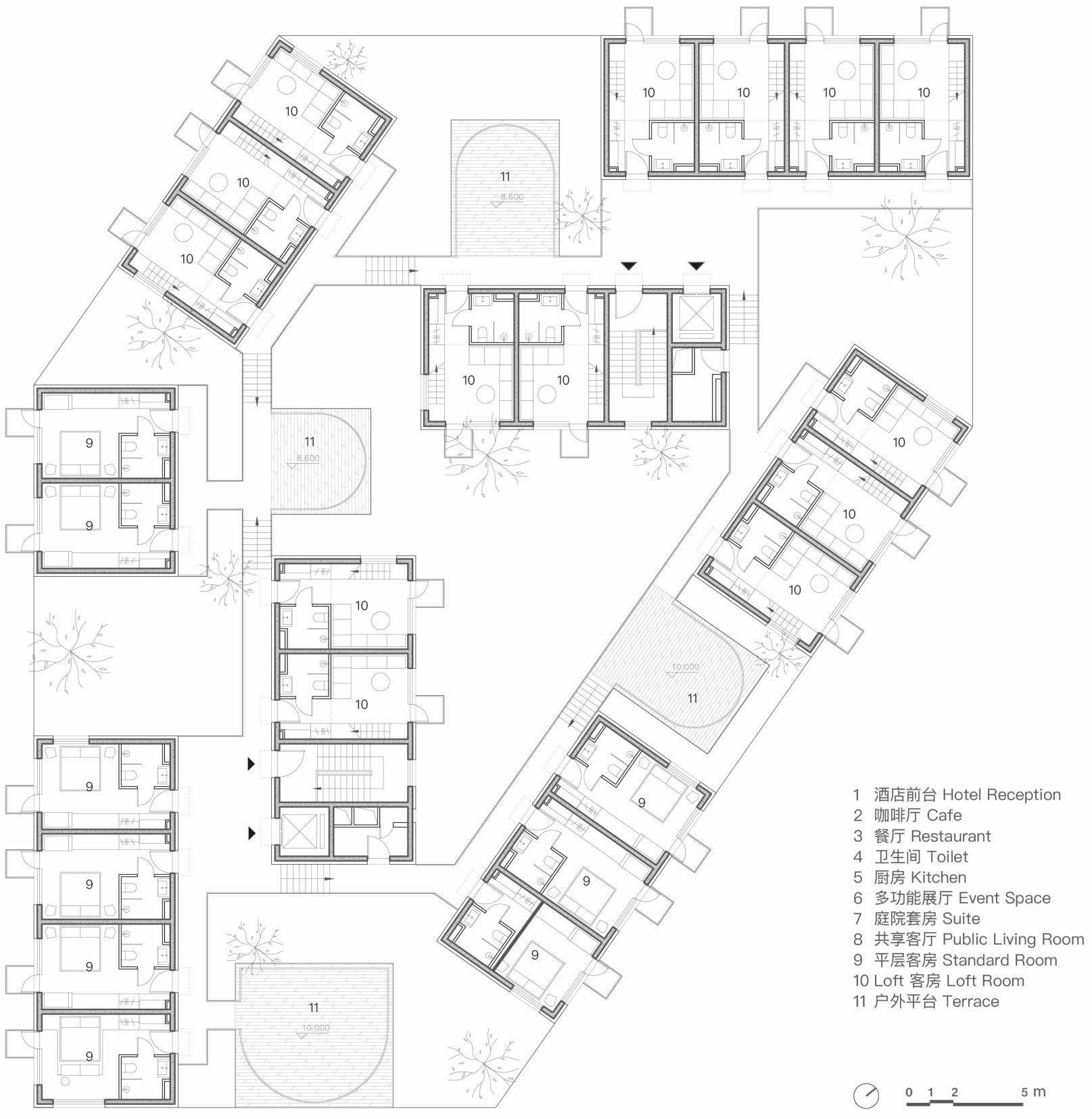
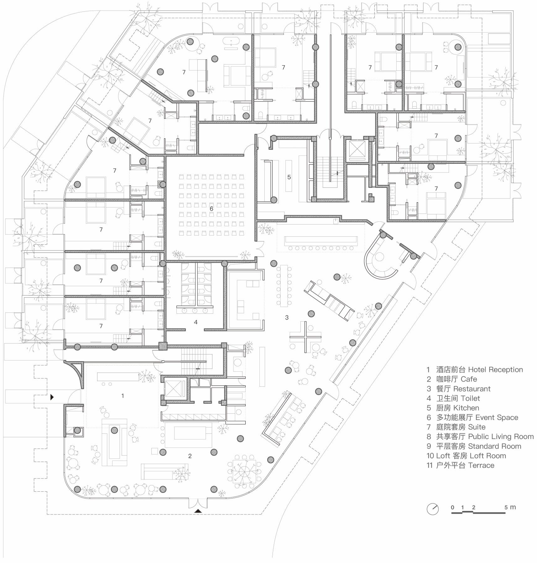
9.jpg10.jpg11.jpg12.jpg13.jpg14.jpg15.jpg16.jpg我们将建筑设计成一座围合式的小建筑群落。一层整体由通透的玻璃幕墙构成,创造开阔的视野和开放的氛围,主要作为酒店的公共空间。二三层由八栋高矮不一的小楼错落有致的聚合而成,坐落在玻璃幕墙之上的大平台上,主要是客房空间。稍微悬挑的平台轮廓让建筑仿佛一座漂浮在空中的小型社区。建筑外立面使用了三种不同规格的白色压型钢板,让“悬浮”的建筑体量显得更加轻盈。穿插其中的几个原色竹钢的小房子又给整体洁白纯净的建筑带来些许自然温暖的感受。此外,每个房间都有一个属于自己的小阳台,保留和场地周边环境互动的可能性。乱纹铝板饰面的的阳台造型现代而纯粹,给简洁的外立面增添了一丝动感和节奏。17.jpg18.jpg19.jpg20.jpg21.jpg室内设计分为公区和客房两个部分。首层的大堂、咖啡厅及酒吧彼此之间没有硬性分割,而是一个连续的流动空间,同时利用层高及玻璃幕墙的优势,形成一个整体开放通透的公共区域。设计上也尽可能减少装饰性的语言,而是让灵动变化的光影,海边的空气,树木等自然元素成为空间的主角,空间开阔明亮的特质得到了的发挥,同时也展现出极简的艺术风格 。22.jpg23.jpg24.jpg25.jpg26.jpg27.jpg28.jpg29.jpg30.jpg31.jpg32.jpg33.jpg34.jpg35.jpg36.jpg37.jpg39.jpg40.jpg41.jpg42.jpg43.jpg44.jpg45.jpg

登录查看全部
阿那亚唐舍-酒店民宿
素材ID号1228复制ID号
155
  • 上传时间: 2024-01-10 18:44:06
  • 文件大小: 14.40M
  • 素材标签: 阿那亚唐舍酒店民宿
  • 高清原图下载
  • 收藏
  • 分享
  • 他上传的材料
    028-86628548
  • 关于我们 网站协议 关于我们 联系我们 加入我们 业务拓展
  • 常见问题 上传要求 下载问题 充值支付 提现收益 帮助中心
  • 免责声明 本网站内容由用户自由上传,如权利人发现存在误传其作品情形,请及时与本站客服联系
  • 友情链接
  • 关注我们

    了解更多