注册 | 登录
今日更新:100
已为你搜索到以下结果 /没有搜到相关素材请加qq群704148082索取
十片间-酒店民宿
2024-01-13 00:18:11
酒店民宿来建筑设计十片间浙江
【酒店民宿】来建筑设计-十片间,浙江

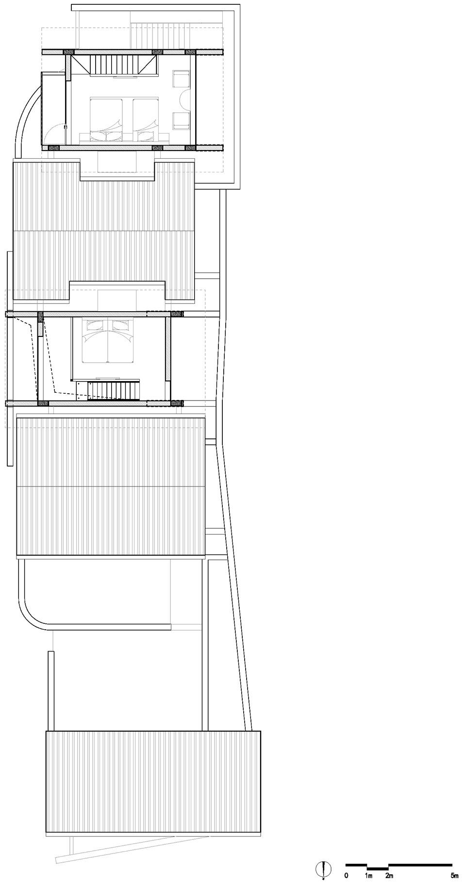
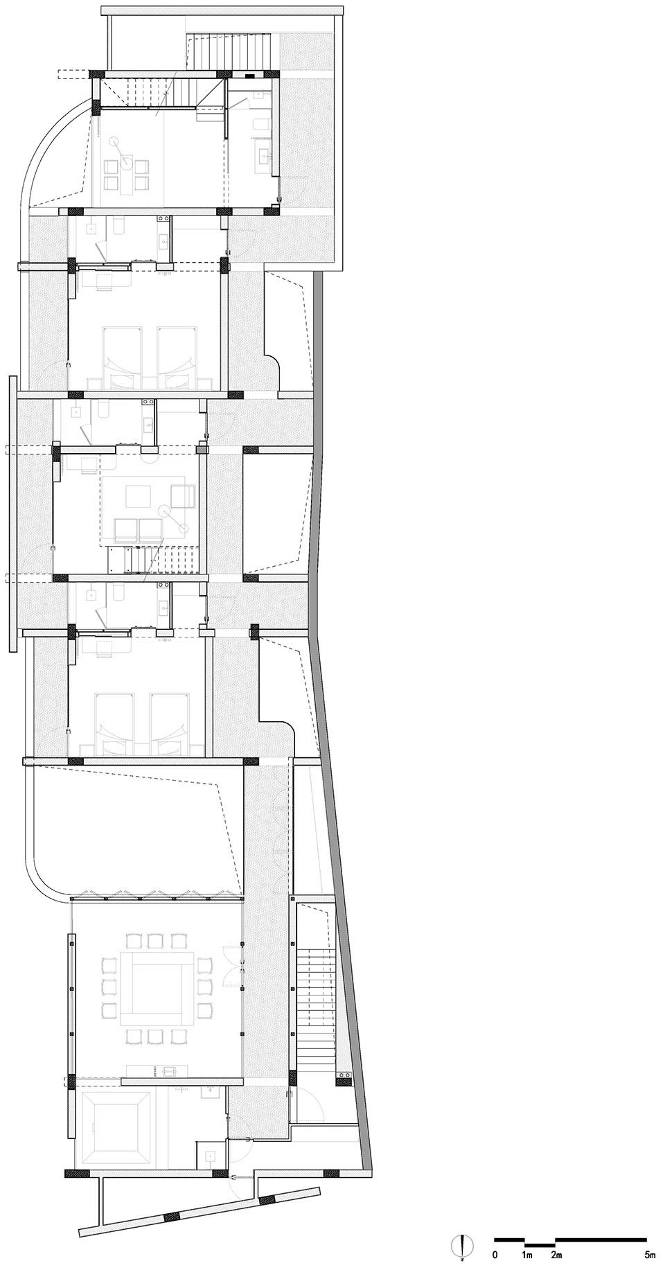
项目地处江南集镇,位于浙江省德清市乾元镇里的一个老街之中。老街的空间尺度维持了近代的狭路窄巷,仅供步行进入。基地位于老街上一处宽10米,深40米的旧宅基,老屋已塌,空留老墙一面。1.jpg2.jpg3.jpg4.jpg5.jpg6.jpg7.jpg8.jpg横向的十片墙,将狭长的基地隔成了十一个不等比例的空间,或为房间,或为庭院,或为设备平台。空间切分的节奏源自于对内部需求的重新组织,管线较为集中的卫生间和设备平台夹杂在大的使用空间之中,重复三次。头有内庭,尾有楼梯,形成一种张弛有度、气韵生动的节奏关系。9.jpg10.jpg11.jpg12.jpg13.jpg14.jpg15.jpg16.jpg17.jpg18.jpg19.jpg20.jpg21.jpg22.jpg23.jpg24.jpg25.jpg建筑作为人的庇护所,通常需以一种刚毅的姿态立于周边的环境之中,内部的空间与身体的感应和触碰,又需要柔软下来。26.jpg27.jpg28.jpg29.jpg30.jpg31.jpg32.jpg33.jpg34.jpg35.jpg36.jpg37.jpg38.jpg39.jpg40.jpg41.jpg42.jpg43.jpg44.jpg45.jpg46.jpg47.jpg


登录查看全部
十片间-酒店民宿
素材ID号1244复制ID号
168
  • 上传时间: 2024-01-13 00:18:11
  • 文件大小: 11.41M
  • 素材标签: 酒店民宿来建筑设计十片间浙江
  • 高清原图下载
  • 收藏
  • 分享
  • 他上传的材料
    028-86628548
  • 关于我们 网站协议 关于我们 联系我们 加入我们 业务拓展
  • 常见问题 上传要求 下载问题 充值支付 提现收益 帮助中心
  • 免责声明 本网站内容由用户自由上传,如权利人发现存在误传其作品情形,请及时与本站客服联系
  • 友情链接
  • 关注我们

    了解更多